Запчасти Case IH DH362 (20.01.16) - LIFT ARM AND TILT CYLINDER ATTACHMENT PINS (15) - CROP CONDITIONING

Схема запчастей Case IH DH362 - (20.01.16) - LIFT ARM AND TILT CYLINDER ATTACHMENT PINS (15) - CROP CONDITIONING
1
1
4
9
3
4
7
5
10
8
2
3
5
9
6
2
FIT
1:1
100%

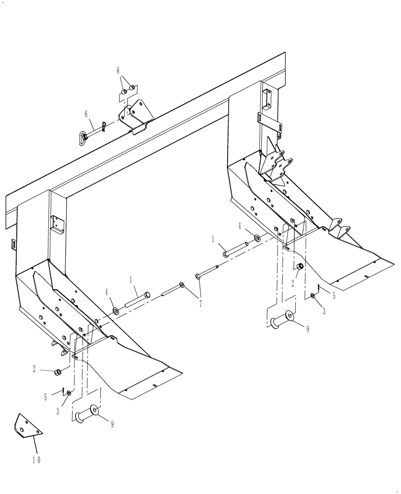
Артикул

Название

Примечание

Количество

1

18682

BOLT,Hex, 1" - 8 x 8", Gr 5

2шт.

2

9672526

LOCK NUT

1"-8

2шт.

3

87365

WASHER,0.66" ID x 1.31" OD x 0.1" Thk

2шт.

4

87367

WASHER,1.06" ID x 2" OD x 0.13" Thk

2шт.

5

87397

COTTER PIN,3/16" OD x 1" L

2шт.

6

87051531

HITCH PIN

3/4" x 6-1/2" W/Cotter Pin

2шт.

7

87387825

PIN

5/8" x 8"

2шт.

8

87713493

SPACER

2шт.

9

87701553

PIN

Bushing, Lift Arm

2шт.

10

87058188

PLATE

Component of 6 Cylinder Windrower Adapter Kit 87532169

4шт.

See Instructions Attached to 87532169 for placement, page 59

1шт.

Выбрано товаров: 11