Запчасти Case IH 8840 (9-22) - CROP DIVIDER KIT, (HK60809 CROP DIVIDER KIT COMPLETE - TO BE (88) - ACCESSORIES

Схема запчастей Case IH 8840 - (9-22) - CROP DIVIDER KIT, (HK60809 CROP DIVIDER KIT COMPLETE - TO BE (88) - ACCESSORIES
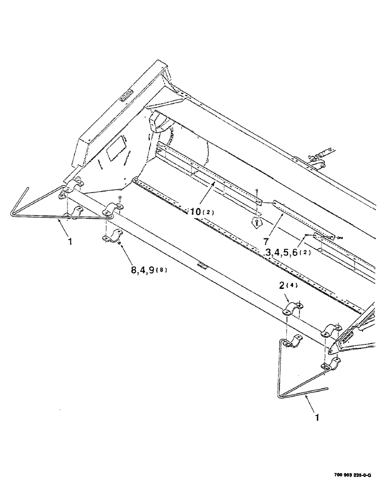
1
7
4
4
3
9
1
5
2
10
6
8
FIT
1:1
100%

Артикул

Название

Примечание

Количество

HK60809

DIODE ELEMENT

CROP DIVIDER KIT COMPLETE

1шт.

1

700111547

ROD

- divider

2шт.

2

700111549

CLAMP

- half

4шт.

3

111-237

CARRIAGE BOLT,Short NK, 5/16"-18 x 1", G5

BOLT, CARRIAGE, Short NK, 5/16"-18 x 1", G5

2шт.

4

496-21034

WASHER,11/32" x 11/16" x 0.89", HDN

10шт.

5

492-11031

LOCK WASHER,5/16"

WASHER, LOCK, 5/16"

2шт.

6

425-105

NUT,5/16"-18, G5

2шт.

7

700111550

STRIPPER

- center

1шт.

8

111-274

CARRIAGE BOLT,Short NK, 5/16"-18 x 1 3/4", G5

5/16-18 X 1-3/4 RHSNB

8шт.

9

231-5145

SERRATED NUT,Flg, USR, 5/16"-18

NUT, Flg, USR, 5/16"-18

8шт.

10

700129385

STRIPPER

16 foot

2шт.

Выбрано товаров: 11