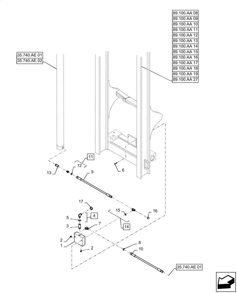
Запчасти Case IH 586H (35.740.AH[01]) - 6000 LB MAST HYDRAULIC SYSTEM (35) - HYDRAULIC SYSTEMS

Схема запчастей Case IH 586H - (35.740.AH[01]) - 6000 LB MAST HYDRAULIC SYSTEM (35) - HYDRAULIC SYSTEMS
89.100.aa 16
7
89.100.aa 12
4
89.100.aa 08
35.740.ae 01
16
89.100.aa 09
89.100.aa 10
89.100.aa 14
89.100.aa 11
1
2
3
10
2
6
9
5
89.100.aa 27
8
35.740.ae 01
89.100.aa 13
89.100.aa 18
13
89.100.aa 19
17
11
89.100.aa 15
35.740.ae 02
12
14
15
89.100.aa 17
FIT
1:1
100%

Артикул

Название

Примечание

Количество

1

337776A1

BLOCK

Manifold

1шт.

2

339834A1

PLUG

Manifold

2шт.

3

353019A1

VALVE

Flow Limiter

1шт.

4

218-5119

ELBOW,90 Degree Elbow, 7/8" - 14 Male JIC x 1-1/16" - 12 Male ORB

Incl 5

1шт.

5

237-6002

O-RING,0.064" Thk x 0.239" ID, -902, Cl 6, 90 Duro

Incl in 4

1шт.

6

61-33832

HEX SOC SCREW,3/8 - 16 x 2"

1шт.

7

218-5101

90 ELBOW,90 Degree Elbow, 5/16" - 24 Male JIC x 5/16" - 24 Male ORB

1шт.

8

237-6002

O-RING,0.064" Thk x 0.239" ID, -902, Cl 6, 90 Duro

1шт.

9

337777A1

HOSE

Right Hand Assembly

1шт.

10

337778A1

HOSE

Left Hand Assembly

1шт.

11

218-5060

HYD CONNECTOR,3/4" - 16 Male JIC x 7/8" - 14 Male ORB

Straight Incl 12

1шт.

12

237-6010

O-RING,0.097" Thk x 0.755" ID, -910, Cl 6, 90 Duro

Incl in 11

1шт.

13

352952A1

VALVE

Flow

1шт.

14

218-5183

TEE,3/4" - 16 Male JIC x 3/4" - 16 Male JIC x 3/4" - 16 Male ORB

Incl 15

1шт.

15

237-6008

O-RING,0.087" Thk x 0.644" ID, -908, Cl 6, 90 Duro

Incl in 14

1шт.

16

218-755

CAP,37 Degree, 3/4"-16

1шт.

17

218-756

CAP,37 Degree, 7/8"-14

1шт.

Выбрано товаров: 0