Запчасти Case IH L725 (39.101.010) - LOADER ARM FRAME - MSL (39) - FRAMES AND BALLASTING

Схема запчастей Case IH L725 - (39.101.010) - LOADER ARM FRAME - MSL (39) - FRAMES AND BALLASTING
35.723.010 01
2
22
23
27
12
25
3
31
14
1
16
13
28
8
26
16
20
11
1
22
24
10
15
17
22
21
30
5
7
29
19
6
18
9
4
23
82.100.020
35.723.020 01
35.701.010 01
35.701.020 01
39.129.010
82.100.010
FIT
1:1
100%

Артикул

Название

Примечание

Количество

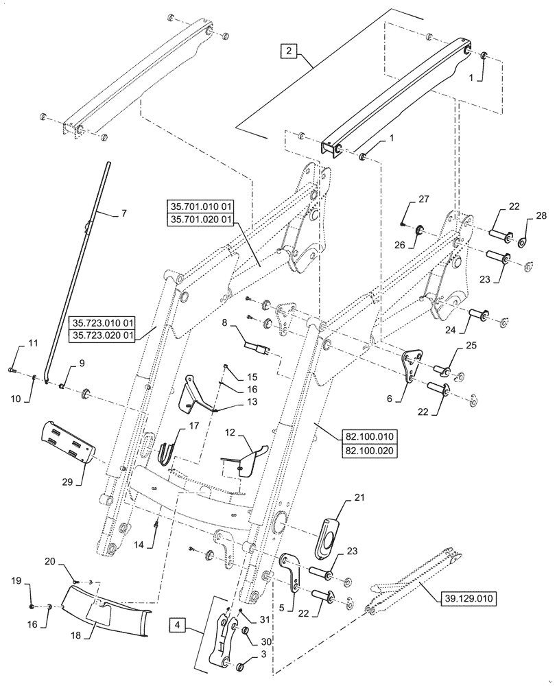
1

LDR5018515

BUSHING,30mm L

4шт.

2

LDR5213531C

ROD

Parallel, Incl 1

2шт.

3

LDR5018513

BUSHING,40mm ID x 44mm OD x 20mm L

2шт.

4

LDR5214831

LINK

Lower Bucket Cylinder, Incl 3, 30, 31

2шт.

5

LDR5214111C

LINK

Lower Support

4шт.

6

LDR5214126C

LINK

Upper Bucket Cylinder

2шт.

7

LDR5215219

ROD

Indicator

1шт.

7

LDR5215216

ROD

Indicator

1шт.

8

LDR5215208

HOLDER

Indicator Rod

1шт.

9

LDR5215227

SPACER

Indicator Rod

1шт.

10

LDR5013110

WASHER,10.50mm ID x 22mm OD x 2mm

1шт.

11

LDR5004920

SCREW

M10 x 50mm L

1шт.

12

LDR5211255

BRACKET

LH

1шт.

13

LDR5211256

BRACKET

RH

1шт.

14

LDR5006001

SCREW

M8 x 20mm L

4шт.

15

LDR5011553

NUT,M8

4шт.

16

LDR5013101

WASHER,8.40mm ID x 16mm OD x 1.50mm Thk

5шт.

17

LDR5215101

PROTECTIVE COVER

Loader Arm Hydraulic Hose

2шт.

18

LDR5215021

VALVE COVER

Mid Mount

1шт.

19

LDR5011910

NUT

4шт.

20

LDR5002058

SCREW

M8 x 16mm L

1шт.

21

LDR5215191

COVER

Outer, Loader Arm

2шт.

22

LDR9020034

PIVOT PIN,30mm OD x 127mm L

Lower, Lower Arm

10шт.

23

LDR9020035

PIVOT PIN,35mm OD x 127mm L

Upper, Bucket

4шт.

24

LDR9020037

PIVOT PIN,30mm OD x 96mm L

Lower, Bearing Box

2шт.

25

LDR9020039

PIVOT PIN

Front, Lift Arm Cylinder

2шт.

26

LDR5215131

CAP,Locking Cover

22шт.

27

LDR5004917

SCREW,MC6S

22шт.

28

LDR5215121

CAP COVER

Pivot Pin

22шт.

29

LDR5215181

BOX

Loader Arm

1шт.

30

LDR5018514

BUSHING,35mm L

2шт.

31

LDR5023005

LUBE NIPPLE

Greaser

2шт.

Выбрано товаров: 32