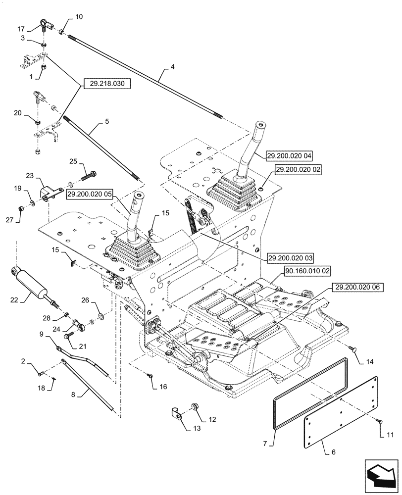
Запчасти Case IH SR270 (29.200.010[02]) - HAND & FOOT CONTROLS ASSY (29) - HYDROSTATIC DRIVE

Схема запчастей Case IH SR270 - (29.200.010[02]) - HAND & FOOT CONTROLS ASSY (29) - HYDROSTATIC DRIVE
90.160.010 02
18
13
7
14
15
27
5
20
17
16
22
21
15
10
12
28
26
25
2
3
8
4
6
24
23
1
11
9
19
29.200.020 03
29.218.030
29.200.020 04
29.200.020 02
29.200.020 06
29.200.020 05
FIT
1:1
100%

Артикул

Название

Примечание

Количество

1

80855

NUT,Hex, 3/8" - 24

2шт.

2

234726

CLEVIS PIN,6.29mm OD x 20mm L

2шт.

3

694371

SPACER,9.77mm ID x 15.87mm OD x 5.03mm Thk

2шт.

4

47645575

ROD,9.53mm - 24 x 756mm L

1шт.

5

47645576

ROD,3/8" - 24 x 470mm L

1шт.

6

47921024

PLATE,140mm W x 378mm L x 2.67mm Thk

Heel Cover, Gray

1шт.

7

47874049

Cut to Length, 1015mm L

SEALING STRIP,Bulk, Vinyl Foam Tape, 6.4mm Thk

1шт.

8

84317959

ROD,M10 x 1.25 x 278mm L

Loader Valve Boom

1шт.

9

84317960

ROD,M10 x 1.25 x 233.3mm L

Loader Valve Bucket

1шт.

10

86509310

NUT,3/8" - 24, Gr 5

2шт.

11

86511830

SCREW,Phillips Drive, Pan HD, M6 x 20mm, Cl 4.8

6шт.

12

86512497

FLANGE NUT,M12 x 1.75, Cl 10

1шт.

13

86598598

CLAMP,19mm, Insulated, 13.5mm Bolt Hole - P Type

1шт.

14

86620930

FASTENER,Push-In, 1.10" L, Nylon

2шт.

15

86625073

SPRING NUT,M6 x 1

4шт.

16

87682398

SCREW,Torx, Round HD, M6 x 16mm, Cl 10.9

4шт.

17

230425A1

BALL JOINT,3/8" - 24 x 1-3/5"

Rod End

2шт.

18

D131983

COTTER PIN,1.04mm OD x 21.4mm L, Ring

2шт.

19

87016

WASHER,0.41" ID x 0.81" OD x 0.07" Thk

2шт.

20

694371

SPACER,9.77mm ID x 15.87mm OD x 5.03mm Thk

2шт.

21

9804260

BOLT,Hex, M8 x 1.25 x 30mm, Full Thd, Cl 8.8

2шт.

22

9826723

DAMPER

Self Centering

2шт.

23

47925640

BRACKET

Damper Mounting, Gray

2шт.

24

86500348

BALL JOINT HEAD,3/8" - 24

Rod End

2шт.

25

86533830

BOLT,Hex, 3/8" - 16 x 2", Gr 5

2шт.

26

86625263

WASHER,9mm ID x 20mm OD x 1.6mm Thk

2шт.

27

87034524

NUT,Prevailing Torque, 3/8” - 16, Gr A

2шт.

28

87319446

JAM NUT,Hex, 3/8" - 24, Gr 5

2шт.

Выбрано товаров: 28