Запчасти Case IH 1835 (018) - VALVE MECHANISM, 148B SPARK IGNITION ENGINE (02) - ENGINE

Схема запчастей Case IH 1835 - (018) - VALVE MECHANISM, 148B SPARK IGNITION ENGINE (02) - ENGINE
FIT
1:1
100%

Артикул

Название

Примечание

Количество

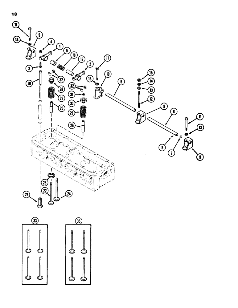
1

G45234

ARM

ASSEMBLY, rocker, RH, Includes: Ref. 3, 4 and 5

4шт.

2

G45235

ARM

ASSEMBLY, rocker, LH, Includes: Ref. 3, 4, and 5

4шт.

3

A31056

ADJUSTMENT SCREW,5/16" - 24 x 1 11/32"

SCREW adjusting

1шт.

4

25-155

JAM NUT,Jam, 5/16"-24, G5

hex jam, 5/16 inch, NF

1шт.

5

A31055

BUSHING

rocker, shaft

1шт.

6

A37197

SHAFT

ASSEMBLY rocker, Includes: Ref. 7

2шт.

7

A26796

PLUG

shaft end

2шт.

8

138-57

LOCK PIN,1/8" x 3/4", Slotted

PIN, 1/8" x 3/4", Slotted

2шт.

9

G46250

BRACKET

rocker shaft

4шт.

10

G2107

BRACKET

center, rocker shaft

1шт.

11

13-644

BOLT,Hex, 3/8" - 16 x 2-3/4", Gr 5

hex, 3/8 NC x 2-3/4 inch

3шт.

12

G49505

STUD

bracket, 3/8 NC

2шт.

13

D41740

WASHER

flat, hardened

4шт.

14

92-6

LOCK WASHER,3/8"

2шт.

15

25-106

NUT,3/8"-16, G5

hex, 3/8 inch, NC

2шт.

16

A30007

SPRING

shaft, rocker

4шт.

17

A30008

SPACER

shaft, rocker

2шт.

20

G11086

ROD

push

8шт.

21

A30006

TAPPET

LIFTER push rod

8шт.

22

NSS

NOT SOLD SEPARAT

VALVE exhaust, order: Ref. 33

4шт.

23

G2106

INSERT

exhaust, valve, seat

4шт.

24

NSS

NOT SOLD SEPARAT

VALVE intake, order Ref. 35

4шт.

25

A29954

GUIDE

exhaust, valve

4шт.

26

A29955

GUIDE

intake, valve

4шт.

27

G10004

SPRING

exhaust, valve, 2-3/16 inch (56 mm) free length

4шт.

28

G10072

CAP

ROTATOR exhaust, valve

4шт.

29

A30025

SPRING

intake, valve, 2-3/8 inch (60 mm) free length

4шт.

30

G11717

RETAINER

intake, valve

4шт.

31

G46851

SEAL

intake, valve, stem

4шт.

32

A30004

RETAINER

LOCK retainer, valve

16шт.

33

G11962

VALVE, ENG EXHAUST,

VALVES exhaust, Set of 4

1шт.

35

G11961

VALVE

S intake, Set of 4

1шт.

Выбрано товаров: 32