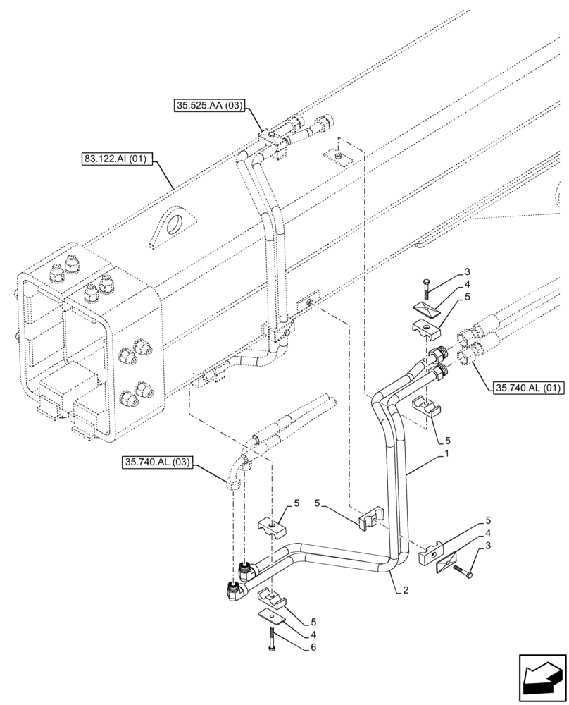
Запчасти Case IH FARMLIFT 632 (35.740.AL[02]) - TILT CYLINDER, TUBE (6 - 7M) (35) - HYDRAULIC SYSTEMS

Схема запчастей Case IH FARMLIFT 632 - (35.740.AL[02]) - TILT CYLINDER, TUBE (6 - 7M) (35) - HYDRAULIC SYSTEMS
5
3
3
5
6
35.740.al (01)
5
5
2
5
4
1
4
5
4
35.525.aa (03)
83.122.ai (01)
35.740.al (03)
FIT
1:1
100%

Артикул

Название

Примечание

Количество

1

47522221

TUBE

Tilt Cylinder

1шт.

2

47522223

TUBE

Tilt Cylinder

1шт.

3

86625003

BOLT,Hex, M8 x 50mm, Cl 10.9

2шт.

4

84545714

COVER PLATE

3шт.

5

84545712

CLAMP

3шт.

6

86625005

BOLT,Hex, M8 x 60mm, Cl 10.9

1шт.

Выбрано товаров: 6