Запчасти Case IH FARMLIFT 742 (35.525.AD[04]) - VAR - 749733 - AUXILIARY HYDRAULIC, PRESSURE REDUCING VALVE (35) - HYDRAULIC SYSTEMS

Схема запчастей Case IH FARMLIFT 742 - (35.525.AD[04]) - VAR - 749733 - AUXILIARY HYDRAULIC, PRESSURE REDUCING VALVE (35) - HYDRAULIC SYSTEMS
10
24
17
1
11
41.200.cn
35.359.ae (07)
20
8
19
35.701.bq (02)
13
16
4
21
2
35.106.ao (01)
26
4
5
5
35.525.aa (02)
6
15
35.359.ab
25
18
1
35.106.ao (01)
21
7
26
35.359.aj (05)
3
5
24
23
10
6
14
22
25
22
23
9
39.100.ab
3
12
11
FIT
1:1
100%

Артикул

Название

Примечание

Количество

1

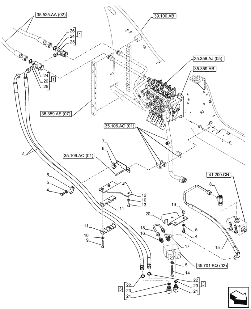
47134291

HYD CONNECTOR

ASSY, Incl 24 - 26

2шт.

2

47876023

HYDRAULIC HOSE

2шт.

3

83971549

90 ELBOW,13/16"-16 ORFS x 3/4"-16 ORB

ASSY, Incl 21 - 23

2шт.

4

9861444

BOLT,Hex, M10 x 1.5 x 20mm, Cl 10.9

3шт.

5

86624176

WASHER,11mm ID x 20mm OD x 2mm Thk

4шт.

6

86639000

CLAMP,23.8mm, Coat, 11.9mm Bolt Hole, P Type

2шт.

7

47825565

BRACKET

1шт.

8

86514261

TEE,13/16" - 16 JIC x 13/16" - 16 ORFS x 13/16" - 16 ORFS

1шт.

9

86625003

BOLT,Hex, M8 x 50mm, Cl 10.9

2шт.

10

86625263

WASHER,9mm ID x 20mm OD x 1.6mm Thk

4шт.

11

84241384

CLAMP,124mm L x 30mm W

2шт.

12

47825563

BRACKET

1шт.

13

43233

BOLT,Hex, M8 x 1.25 x 20mm, Full Thd, Cl 10.9

2шт.

14

43252

BOLT,Hex, M10 x 1.5 x 80mm, Cl 10.9

1шт.

15

47825569

TUBE

1шт.

16

87672176

HYD CONNECTOR

1шт.

17

85805502

TEE,11/16-16 ORS x 13/16-16 ORS x 3/4-16 SAE

1шт.

18

47825567

HYD TUBE

1шт.

19

412141

NUT,M10 x 1.5, Cl 8

2шт.

20

47823257

BRACKET

1шт.

21

NSS

NOT SOLD SEPARAT

Elbow, Incl in 3

1шт.

22

80128825

O-RING,0.087" Thk x 0.644" ID, -908, Cl 6, 90 Duro

1шт.

23

89992298

O-RING,0.07" Thk x 0.489" ID, -14, Cl 6, 90 Duro

1шт.

24

NSS

NOT SOLD SEPARAT

Tee, Incl in 1

1шт.

25

5185511

O-RING,1.78mm Thk x 12.42mm ID, 85 Duro

1шт.

26

5185513

O-RING,1.78mm Thk x 18.77mm ID, 85 Duro

1шт.

Выбрано товаров: 26