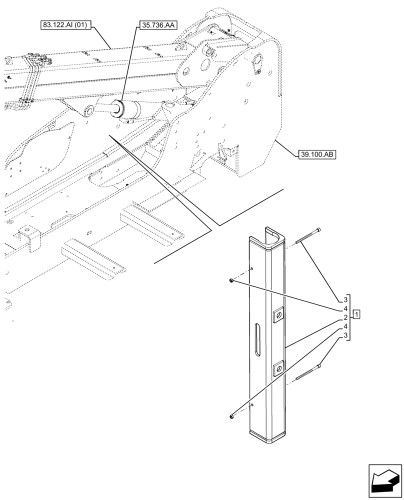
Запчасти Case IH FARMLIFT 935 (88.130.AB[02]) - VAR - 749489 - LOCKING BAR, BOOM, COMPONENTS (88) - ACCESSORIES

Схема запчастей Case IH FARMLIFT 935 - (88.130.AB[02]) - VAR - 749489 - LOCKING BAR, BOOM, COMPONENTS (88) - ACCESSORIES
3
3
39.100.ab
4
2
1
83.122.ai (01)
4
35.736.aa
FIT
1:1
100%

Артикул

Название

Примечание

Количество

1

47587742

BOOM

ASSY, Incl 2 - 4

1шт.

2

NSS

NOT SOLD SEPARAT

Bar, Incl in 1

1шт.

3

86528452

SCREW,M8 x 120mm, Cl 12.9

2шт.

4

16102211

NUT,M8, Cl 10

2шт.

Выбрано товаров: 4