Запчасти Case IH 1270 (470) - CAB, GLASS (09) - CHASSIS/ATTACHMENTS

Схема запчастей Case IH 1270 - (470) - CAB, GLASS (09) - CHASSIS/ATTACHMENTS
5
1
2
4
3
7
8
6
FIT
1:1
100%

Артикул

Название

Примечание

Количество

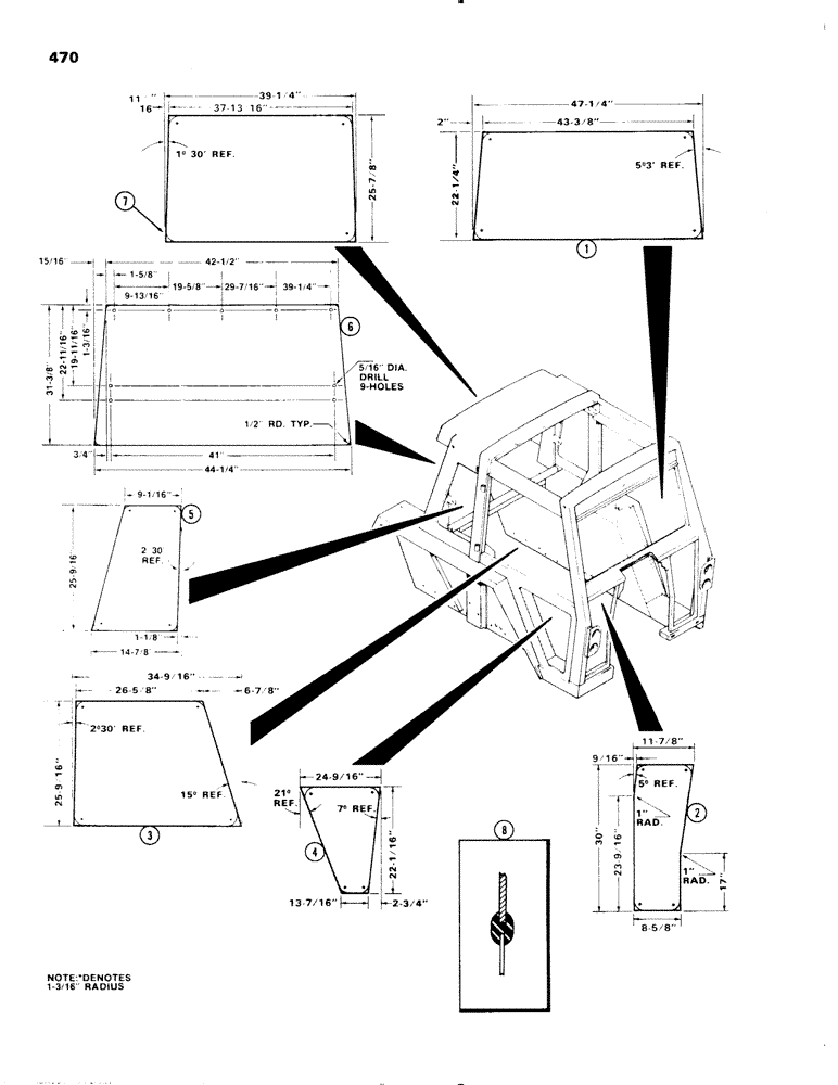
1

NSS

NOT SOLD SEPARAT

GLASS - windshield

1шт.

2

NSS

NOT SOLD SEPARAT

GLASS - front, lower

2шт.

3

NSS

NOT SOLD SEPARAT

GLASS - right hand window and door, upper

2шт.

4

NSS

NOT SOLD SEPARAT

GLASS - right hand window and door, lower

2шт.

5

NSS

NOT SOLD SEPARAT

GLASS - sides, rear

2шт.

6

F64202

GLASS

- rear window (1st used cab serial no. 7878400)

1шт.

7

NSS

NOT SOLD SEPARAT

GLASS - rear window (Used prior to cab serial no. 7878400)

1шт.

8

A42677

MOLDING

- glass (50 foot roll)

1шт.

Выбрано товаров: 8