Запчасти Case IH B414 (061) - ELECTRICAL SYSTEM, STARTING AND LIGHTING, CARBURETED ENGINE TRACTORS (06) - ELECTRICAL SYSTEMS

Схема запчастей Case IH B414 - (061) - ELECTRICAL SYSTEM, STARTING AND LIGHTING, CARBURETED ENGINE TRACTORS (06) - ELECTRICAL SYSTEMS
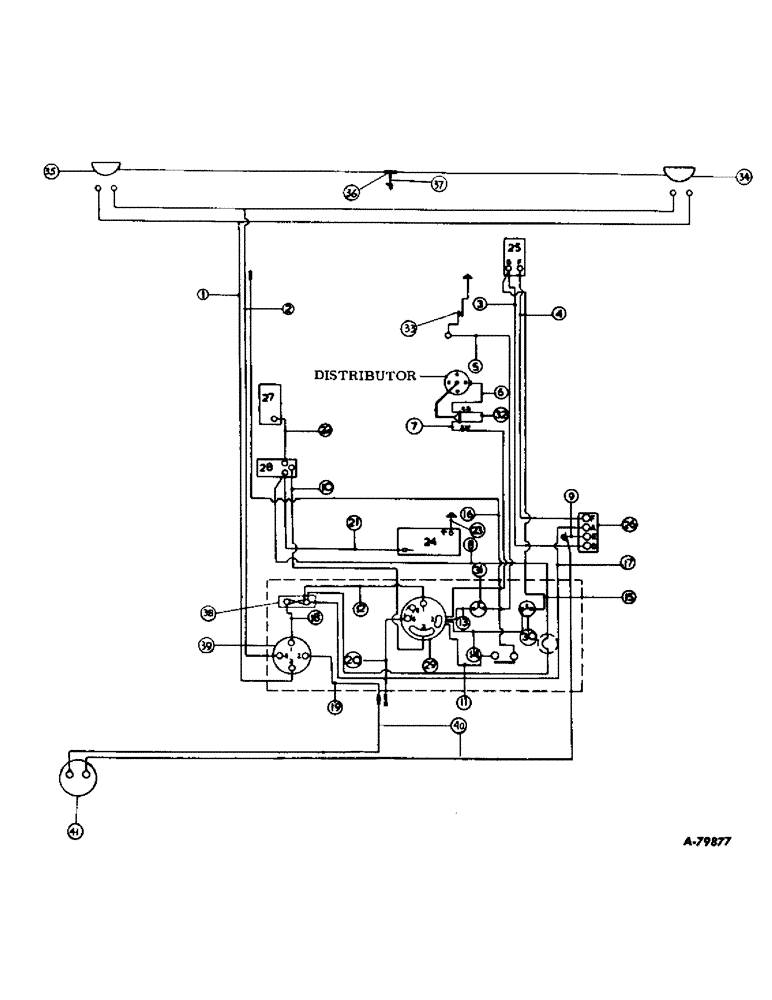
35
38
8
17
15
22
18
19
16
40
12
27
41
14
39
30
33
3
36
1
21
4
2
9
1
31
7
2
6
24
11
28
37
32
4
29
23
3
10
13
20
34
25
26
5
FIT
1:1
100%

Артикул

Название

Примечание

Количество

3044088R92

HARNESS, MAIN CABLE, CONSISTS OF REF. NOS. 1 - 23

1шт.

1

CABLE, LIGHT SWITCH TERMINAL-3 TO HEADLIGHT, BLUE/WHITE

1шт.

2

CABLE, LIGHT SWITCH TERMINAL-4 TO HEADLIGHT, BLUE/YELLOW

1шт.

3

CABLE, REGULATOR D-TERMINAL TO GENERATOR D-TERMINAL TO GENERATOR D-TERMINAL, YELLOW

1шт.

4

CABLE, REGULATOR F-TERMINAL TO GENERATOR F-TERMINAL, YELLOW/GREEN

1шт.

5

CABLE, OIL PRESSURE SWITCH TO OIL PRESSURE LIGHT, GREEN/YELLOW

1шт.

6

CABLE, IGNITION COIL TERMINAL-CB TO DISTRIBUTOR, WHITE/BLACK

1шт.

7

CABLE, IGNITION SWITCH TERMINAL-2 TO IGNITION COIL TERMINAL-SW, BROWN/GREEN

1шт.

8

CABLE, FUSE HOUSING TO SOLENOID SWITCH, BROWN

1шт.

9

CABLE, REGULATOR E-TERMINAL TO GROUND, BLACK

1шт.

10

CABLE, SOLENOID SWITCH TO IGNITION SWITCH TERMINAL-3, BROWN/RED SLEEVE

1шт.

11

CABLE, HORN PUSH BUTTON TO IGNITION SWITCH TERMINAL-3, BROWN/BLACK

1шт.

12

CABLE, IGNITION SWITCH TERMINAL-3 TO FUSE HOUSING, BROWN/WHITE

1шт.

13

CABLE, IGNITION SWITCH TERMINAL-2 TO OIL PRESSURE LIGHT, WHITE/GREEN

1шт.

14

CABLE, IGNITION SWITCH TERMINAL-2 TO IGNITION LIGHT, WHITE/GREEN

1шт.

15

CABLE, IGNITION LIGHT TO GENERATOR TERMINAL-D, YELLOW

1шт.

16

CABLE, HORN PUSH BUTTON TO HORN, BROWN/BLACK

1шт.

17

CABLE, FUSE HOUSING TO REGULATOR TERMINAL A, BROWN/WHITE

1шт.

18

CABLE, FUSE HOUSING TO LIGHT SWITCH TERMINAL-1, WHITE

1шт.

19

CABLE, LIGHT SWITCH TERMINAL-2 TO SIDE LIGHT AND TAIL LIGHT, RED

1шт.

20

CABLE, IGNITION SWITCH TERMINAL-4 TO PLOW LIGHT, RED/WHITE

1шт.

21

3044089R91

CABLE, BATTERY TO SOLENOID SWITCH, BLACK

1шт.

22

3047632R91

CABLE, SOLENOID SWITCH TO CRANKING MOTOR, BLACK

1шт.

23

3044090R92

STRAP, BATTERY TO GROUND

1шт.

24

368879R91

BATTERY

AUTO-LITE 11-HS-50, 12 VOLT

1шт.

25

700725R92

GENERATOR

ASSY, 12 VOLT, FOR COMPONENTS SEE LIST OF PARTS UNDER DETAILS OF GENERATOR, Serial Range: -B-414/2100

1шт.

25

3049871R91

GENERATOR

ASSY, 12 VOLT, FOR COMPONENTS SEE LIST OF PARTS UNDER DETAILS OF GENERATOR, Start Serial: B-414/2101

1шт.

26

708969R92

REGULATOR

ASSY, VOLTAGE, 12 VOLT, FOR COMPONENTS SEE LIST OF PARTS UNDER DETAILS OF VOLTAGE REGULATOR, Serial Range: -B-414/19473

1шт.

26

3064234R91

GOVERNOR

REGULATOR ASSY, VOLTAGE, 12 VOLT, FOR COMPONENTS SEE LIST OF PARTS UNDER DETAILS OF VOLTAGE REGULATOR, Start Serial: B-414/19474

1шт.

27

3045322R91

STARTER MOTOR

MOTOR, CRANKING, 12 VOLT, FOR COMPONENTS SEE LIST OF PARTS UNDER DETAILS OF CRANKING MOTOR

1шт.

28

704668R94

SWITCH

CRANKING MOTOR SOLENOID, 12 VOLT, REFER TO ENGINE CONTROLS, INSTRUMENTS, AND INSTRUMENT PANEL

1шт.

29

3062964R1

SWITCH

IGNITION AND STARTER, REFER TO ENGINE CONTROLS, INSTRUMENTS, AND INSTRUMENT PANEL

1шт.

3062961R1

X

LOCK, SWITCH

1шт.

3062962R1

KEY

SWITCH

2шт.

3063384R1

SEALING RING

RING, SEALING

1шт.

30

LIGHT ASSY, IGNITION WARNING, PART OF MAIN CABLE HARNESS

1шт.

3048831R91

LAMP

IGNITION WARNING LIGHT

1шт.

3048829R91

LENS, IGNITION WARNING LIGHT, RED

1шт.

31

LIGHT ASSY, OIL PRESSURE WARNING, PART OF MAIN CABLE HARNESS

1шт.

3048831R91

LAMP

IGNITION WARNING LIGHT

1шт.

3048830R91

LENS, OIL PRESSURE WARNING, GREEN

1шт.

32

3063671R91

COIL

IGNITION, REFER TO IGNITION SYSTEM

1шт.

33

3041100R91

PRESSURE SWITCH

SWITCH, OIL PRESSURE

1шт.

34

707891R91

LAMP BASE

HEADLIGHT, RH, 12 VOLT, FOR COMPONENTS SEE LIST OF PARTS UNDER DETAILS OF HEADLIGHT, Start Serial: B-414/25083

1шт.

114498

JAM NUT,Jam, 5/8"-18, G5

1шт.

115553

LOCK WASHER,Int Tooth, 5/8"

WASHER, LOCK, Int Tooth, 5/8"

1шт.

35

707890R91

HEADLAMP

HEADLIGHT, LH, 12 VOLT, FOR COMPONENTS SEE LIST OF PARTS UNDER DETAILS OF HEADLIGHT, Serial Range: -B-414/25082

1шт.

35

3065302R91

LAMP

HEADLIGHT, LH, 12 VOLT, FOR COMPONENTS SEE LIST OF PARTS UNDER DETAILS OF HEADLIGHT, Start Serial: B-414/25083

1шт.

114498

JAM NUT,Jam, 5/8"-18, G5

1шт.

115553

LOCK WASHER,Int Tooth, 5/8"

WASHER, LOCK, Int Tooth, 5/8"

1шт.

36

705896R1

CONNECTOR, ELEC

CONNECTOR, TWO-WAY

1шт.

37

706130R91

CABLE, HEADLIGHT TO GROUND

1шт.

38

707481R92

HOLDER

HOUSING, FUSE, REFER TO ENGINE CONTROLS, INSTRUMENTS, AND INSTRUMENT PANEL

1шт.

455844

FUSE,25 Amp, Type 3AG

25 AMP

1шт.

39

709489R92

LIGHT SWITCH

SWITCH, LIGHTING, REFER TO ENGINE CONTROLS, INSTRUMENTS, AND INSTRUMENT PANEL

1шт.

40

CABLE, MAIN HARNESS TO LH COMBINATION SIDE LIGHT AND TAIL LIGHT

1шт.

41

708348R91

LIGHT ASSY.

LIGHT, COMBINATION SIDE LIGHT AND TAIL, 12 VOLT, FOR COMPONENTS SEE LIST OF PARTS UNDER DETAILS OF SIDE AND REAR LIGHT, BUTLERS

1шт.

41

705267R92

INTERIOR LIGHT

LIGHT, COMBINATION SIDE LIGHT AND TAIL, 12 VOLT, FOR COMPONENTS SEE LIST OF PARTS UNDER DETAILS OF SIDE AND REAR LIGHT, LUCAS

1шт.

3047696R11

BRACKET ASSY, HEADLIGHT

2шт.

9635082

NUT,5/16" - 18, Gr 5

2шт.

179814

SPACER

2шт.

103320

LOCK WASHER,5/16"

WASHER, LOCK, 5/16"

4шт.

3040886R91

CONDUIT ASSY, FRONT CABLE

1шт.

704137R2

COVER, LH HEADLIGHT BRACKET

1шт.

704138R2

COVER, RH HEADLIGHT BRACKET

1шт.

3061346R91

CABLE, GROUND, STARTER TO CRANKCASE

1шт.

Выбрано товаров: 66