Запчасти Case IH DV-SERIES (170) - DRAW BAR, PLATFORM AND TOOL BOX, FOR "D" - "DO" - "DV" TRACTORS NO. 4800000 AND AFTER, DRAWBAR (09) - CHASSIS

Схема запчастей Case IH DV-SERIES - (170) - DRAW BAR, PLATFORM AND TOOL BOX, FOR "D" - "DO" - "DV" TRACTORS NO. 4800000 AND AFTER, DRAWBAR (09) - CHASSIS
FIT
1:1
100%

Артикул

Название

Примечание

Количество

5579A

X

BRACKET, draw bar pivot

1шт.

SCREW, 3/4" x 3-1/2" hexagon head cap, N.F. thread

2шт.

NUT, 3/4" hexagon, light, N.F. thread

2шт.

WASHER, 3/4" standard lock

2шт.

O3857AB

BUSHING, draw bar support

4шт.

SCREW, 3/4" x 2" hexagon head cap, N.C. thread

4шт.

WASHER, 3/4" standard lock

4шт.

O6088AB

X

ROLLER, draw bar

1шт.

O6089AB1

X

BOLT, draw bar roller

1шт.

FITTING, 1/8" - 45 degree Lincoln no. 5400 (Used with 3277AA)

1шт.

FITTING, 1/8" - straight Lincoln no. 5000 (Used with A2831AA) (DO)

1шт.

NUT, 1-1/8" hexagon, light, N.F. thread

1шт.

WASHER, 1-1/8" standard lock

1шт.

O6090AB

X

RING, snap, draw bar roller bolt

1шт.

O6407AB

WASHER, draw bar spring

1шт.

O7075AB

X

BOLT, draw bar pivot

1шт.

NUT, 3/4" hexagon, light, N.F. thread

1шт.

WASHER, 3/4" standard lock

1шт.

2826AA

GUIDE ANGLE WITH SUPPORT FOR DRAW BAR. Replaces 3264AA when power take-off with motor lift and raising bail are installed (DO)

1шт.

A2831AA

BAR, draw, complete with roller and bolt. Replaces 3277AA when power take-off with motor lift and raising bail are installed (Use 4429AA)

1шт.

SCREW, 5/8" x 1-3/4" standard hexagon head cap screw, N.F. thread (DO)

1шт.

NUT, 5/8" hexagon, light, N.F. thread (DO)

1шт.

WASHER, 5/8" standard lock (DO)

1шт.

3264AA

GUIDE ANGLE WITH SUPPORT FOR DRAW BAR. See 2826AA, 3737AA (D, DO)

1шт.

3277AA

BAR, draw, complete with roller and bolt. See A2831AA

1шт.

SCREW, 5/8" x 1-3/4" hex. hd. cap, N.F. thread (With hexagon nut) (DV)

1шт.

3737AA

GUIDE ANGLE, with support for draw bar. See 2826AA, 3264AA (DV)

1шт.

4429AA

BAR - draw, complete (DO)

1шт.

O5472AB

ANGLE, fender rear support, R.H.

1шт.

O5473AB

ANGLE, fender rear support, L.H.

1шт.

O5475AB

SHEET, fender apron

1шт.

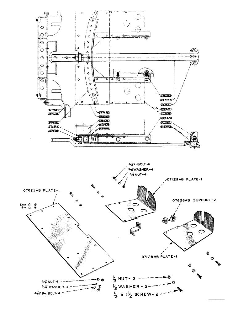
O7128AB

PLATE, platform, front, R.H. See O8113AB (D, DO)

1шт.

BOLT, 1/4" x 5/8" machine (D, DO)

2шт.

BOLT, 3/8" x 1" machine (Hex. nut) (D, DO)

2шт.

WASHER, 1/4" standard lock (D, DO)

2шт.

WASHER, 3/8" standard lock (D, DO)

2шт.

O7129AB

PLATE, platform, front, L.H. See O8113AB (D, DO)

1шт.

BOLT, 1/4" x 5/8" machine (D, DO)

2шт.

BOLT, 3/8" x 1" machine (Hex. nut) (D, DO)

2шт.

WASHER, 1/4" standard lock (D, DO)

2шт.

WASHER, 3/8" standard lock (D, DO)

2шт.

O7258AB

PLATE, platform, front, R.H. (DV)

1шт.

BOLT, 1/4" x 5/8" machine (Hex. nut) (DV)

2шт.

BOLT, 3/8" x 1" machine (Hex. nut) (DV)

2шт.

WASHER, 1/4" standard lock (DV)

2шт.

WASHER, 3/8" standard lock (DV)

2шт.

O7259AB

PLATE, platform, front, L.H. (DV)

1шт.

BOLT, 1/4" x 5/8" machine (Hex. nut) (DV)

2шт.

BOLT, 3/8" x 1" machine (Hex. nut) (DV)

2шт.

WASHER, 1/4" standard lock (DV)

2шт.

WASHER, 3/8" standrad lock (DV)

2шт.

O7625AB

PLATE, platform (D, DO)

1шт.

BOLT, 3/8" x 1-1/4" machine with hexagon nut (D, DO)

4шт.

WASHER, 3/8" standard lock (D, DO)

4шт.

WASHER, 3/8" standard plain (D, DO)

4шт.

O7626AB

SUPPORT, platform, outer. See A2549AA (D, DO)

2шт.

SCREW, 1/2" x 1-1/2" hexagon head cap, N.F. thread (D, DO)

2шт.

NUT, 1/2" hexagon, light, N.F. thread (D, DO)

2шт.

WASHER, 1/2" standard lock (D, DO)

2шт.

O8113AB

PLATE, platform. Replacess O7128AB and O7129AB when power take-off with motor lift and raising bail are installed (DO)

2шт.

BOLT, 3/8" x 1" carriage bolt (Hex. nut) (DO)

4шт.

BOLT, 3/8" x 1-1/2" carriage bolt (Hex. nut) (DO)

4шт.

WASHER, 3/8" standard lock (DO)

8шт.

O8331AB

PLATE, platform (DV)

1шт.

BOLT, 3/8" x 1-1/4" machine (Hex. nut) (DV)

4шт.

WASHER, 3/8" standard lock (DV)

4шт.

O8476AB

REST, foot (DV)

2шт.

D182AA

PLATFORM ASSEMBLY (D, DO)

1шт.

A2549AA

BRACE, platform, with gusset. Replaces O7626AB when power take-off with motor lift and raising bail are installed (DO)

1шт.

SCREW, 1/2" x 1-1/2" hexagon head cap, N.C. thread (DO)

2шт.

A28434

BOX, TOOL

(Replaces 2884AA)

1шт.

SCREW, 5/16" x 5/8" hexagon head cap, N.F. thread

1шт.

WASHER, 5/16" standard lock

2шт.

3264AA

SUPPORT, draw bar, assembly (D, DO)

1шт.

Выбрано товаров: 74