Запчасти Case IH SO-SERIES (059) - DIFFERENTIAL SHAFT WITH BRAKE ASSEMBLY, S, SC, SO (06) - POWER TRAIN

Схема запчастей Case IH SO-SERIES - (059) - DIFFERENTIAL SHAFT WITH BRAKE ASSEMBLY, S, SC, SO (06) - POWER TRAIN
FIT
1:1
100%

Артикул

Название

Примечание

Количество

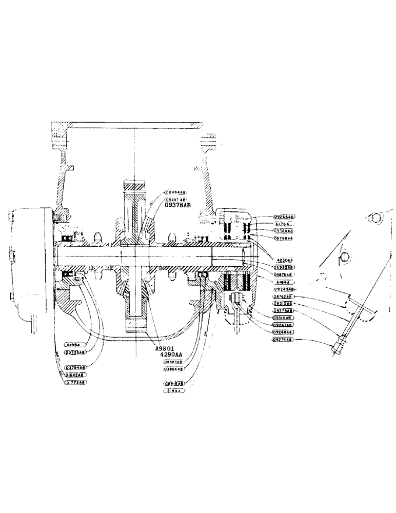
6176A

X

DISC - actuating

4шт.

6184A

COVER - differential brake

2шт.

SCREW - 1/2" x 3-1/2" hex. hd. cap, N.C. thread

8шт.

WASHER - 1/2" std. lock

8шт.

O8762AB

X

CAP - dust

2шт.

O8788AB

X

RIVET - brake lining

48шт.

O9245AB

PIN - torque

2шт.

O9266AB

X

SPRING - actuating disc

4шт.

O9267AB

X

LINK - actuating disc single

2шт.

O9268AB

X

LINK - actuating disc straddle

2шт.

O9269AB

X

BOLT - actuating disc link

4шт.

NUT - 5/16" hex. jam, light, N.F. thread

4шт.

O9274AB

X

NUT - brake rod

2шт.

O9313AB

ROD

- brake, Serial Range: link-pedals

2шт.

O9314AB

X

PIN - brake rod end

2шт.

PIN - 3/32" x 3/4" cotter

2шт.

O9384AB

X

BALL - 7/8" dia. steel

8шт.

4230AA

DISC

- middle, with brake lining

4шт.

4298AA

KIT

LINING - set of two, with rivets, for 4230AA

4шт.

Выбрано товаров: 19