Запчасти Case IH 2090 (9-570) - CAB, GLASS, METRIC VALUE (09) - CHASSIS/ATTACHMENTS

Схема запчастей Case IH 2090 - (9-570) - CAB, GLASS, METRIC VALUE (09) - CHASSIS/ATTACHMENTS
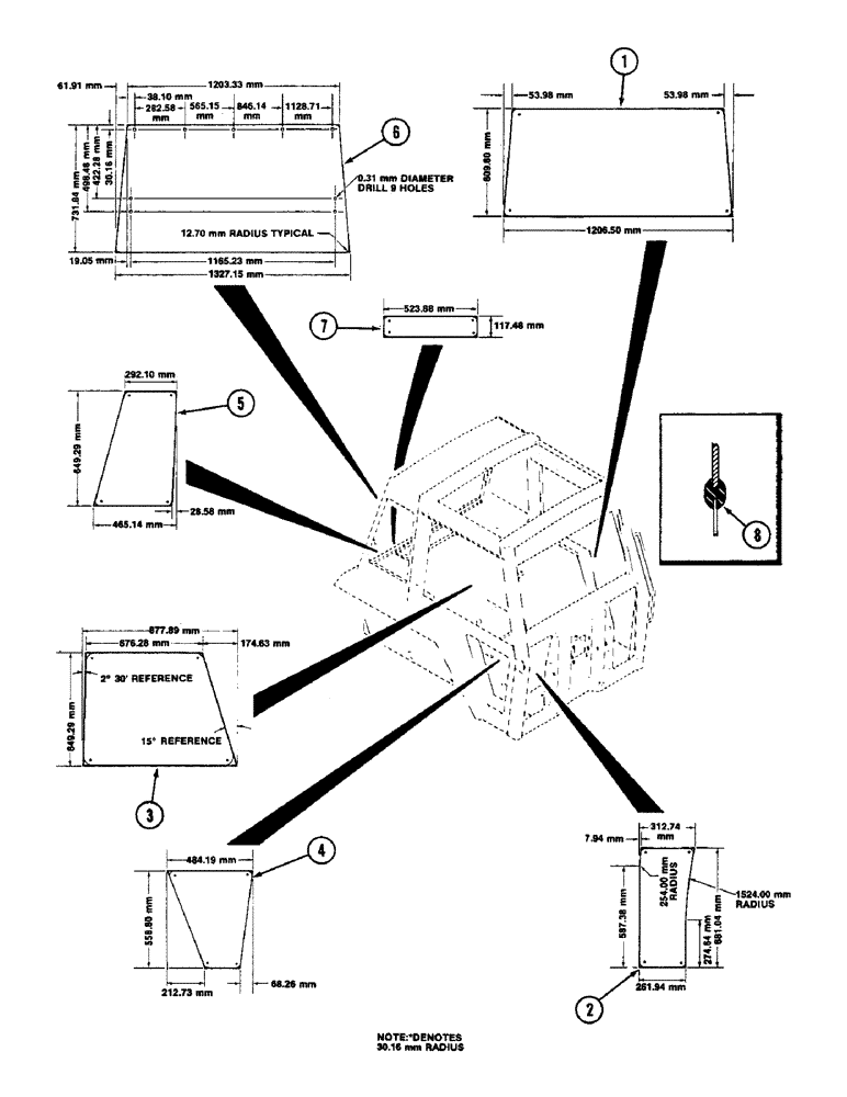
4
3
8
7
6
5
2
1
FIT
1:1
100%

Артикул

Название

Примечание

Количество

1

NSS

NOT SOLD SEPARAT

GLASS - windshield

1шт.

2

NSS

NOT SOLD SEPARAT

GLASS - front lower

2шт.

3

NSS

NOT SOLD SEPARAT

GLASS - right window and door, upper

2шт.

4

NSS

NOT SOLD SEPARAT

GLASS - right window and door, lower

2шт.

5

NSS

NOT SOLD SEPARAT

GLASS - rear sides

2шт.

6

F64517

GLASS

- rear window

1шт.

7

NSS

NOT SOLD SEPARAT

GLASS - rear horizontal

1шт.

8

A42677

MOLDING

SEAL - glass, roll (15 m)

1шт.

Выбрано товаров: 8