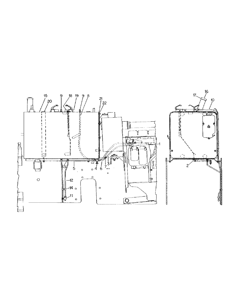
Запчасти Case IH 3588 (12-05) - POWER, FUEL TANK, SUPPORT AND FUEL LINES Power

Схема запчастей Case IH 3588 - (12-05) - POWER, FUEL TANK, SUPPORT AND FUEL LINES Power
19
12
11
22
7
17
9
3
20
18
4
9
5
15
6
13
8
14
10
2
16
21
FIT
1:1
100%

Артикул

Название

Примечание

Количество

1

104469C1

ELBOW

male 90 deg. 1/2 tube, 1/4 pipe thread, tank to filter filler end

1шт.

2

138955C2

ELBOW

ASSY, fuel supply

1шт.

3

HOSE, tank to filter, tube, Use 458MM (18.03 in.) of 1/2 O.D. nylon tube from a bulk roll 74814C1

1шт.

4

138979C1

VALVE

ASSY, fuel supply shut-off 5/8 str thd, tank to fuel filter

1шт.

5

138972C2

FUEL TUBE

TUBE ASSY, fuel supply

1шт.

6

138966C3

FUEL TUBE,0.375" OD, 50 mm Length

TUBE, fuel supply

1шт.

NLS

NO LONGER SERVICED

NUT, 3/8 pln 45D flared tube

1шт.

7

137597C1

ADAPTER,11/16" - 20

fuel line

1шт.

8

HOSE, fuel return line, tube, Use 1501MM (59.10 in.) of 3/8 nylon tube from a bulk roll 74813C1

1шт.

9

182960H1

ELBOW

male 90 deg. 3/8 tube 1/4 pipe thread

2шт.

10

HOSE, fuel line vent, Use 1430MM (56.30 in.) of 3/8 OD nylon tube from a bulk roll 74813C1

1шт.

11

138979C1

VALVE

fuel tank drain 3/8 tube 1/4 male pipe thread

1шт.

12

138945C1

FUEL TUBE

TUBE ASSY, fuel drain

1шт.

13

442323

CONNECTOR, ELEC

CONNECTOR, 3/8 tube brass inverted flare

1шт.

14

299404C1

CLAMP

3/8 tube closed

2шт.

180122

BOLT,Hex, 3/8" - 16 x 1", Gr 5

3/8 x 1 type 5

1шт.

120377

NUT,3/8" - 16, Gr 5

1шт.

15

TANK ASSY, fuel 89 gal.

1шт.

Order Tank Assy, 142108C1 and Package, 1268918C1.

1шт.

444600

BUSHING

1 NPT sq-hd

1шт.

16

104781C1

CAP

fuel tank filler

1шт.

17

23977DD

GASKET,47.5mm ID x 65.89mm OD x 2.39mm Thk

fuel tank filler cap

1шт.

18

121810C1

ELECTRICAL GAUGE

GAUGE, electric fuel, sending unit

1шт.

1310675C1

CAPTIVE WASHER SCREW,Sl Truss Hd, #10 - 24 x 0.75"

SCREW, 10-24 x 1/2 mach

5шт.

19

104812C1

GASKET

sending unit

1шт.

20

134861C1

STRAP

ASSY, fuel tank hold down, 1/2-13 thread

2шт.

STRIP, fuel tank strap, padding, Use 163MM (6.42 in.) from bulk roll marked, 990543R1

2шт.

120378

NUT,Hex, 1/2" - 13, Gr 5

NUT, 1/2"-13, G5

4шт.

20

143627C2

STRAP

ASSY, fuel tank hold down, 5/8-11 thread

2шт.

STRIP, fuel tank strap, padding, Use 163MM (6.42 in.) from bulk roll marked, 990543R1

2шт.

19508R1

LOCK NUT,5/8"-11, GB

NUT, 5/8 pln p/t lock type 5

4шт.

21

138834C3

SHIELD

ASSY, heat

1шт.

179812

GEAR

5/16 x 1/2 pln type 5

4шт.

615031R1

WASHER

.375 x .875 x .064 pln

4шт.

22

138678C1

PLATE

fuel tank insulation

1шт.

179816

BOLT,Hex, 5/16" - 18 x 3/4", Gr 5

4шт.

95-11034

WASHER,1/4"

.344 x .688 x .051 pln

2шт.

142108C1

TANK

ASSY, fuel

1шт.

1268918C91

STRIPPER PACKAGE

PACKAGE, fuel tank completing service, See group 2 for breakdown

1шт.

Выбрано товаров: 39