Запчасти Case IH 7488 (08-03) - ELECTRICAL, FUSE HOLDER AND MOUNTING (06) - ELECTRICAL

Схема запчастей Case IH 7488 - (08-03) - ELECTRICAL, FUSE HOLDER AND MOUNTING (06) - ELECTRICAL
2
10
10
1
10
9
6
3
10
5
3
4
7
8
10
10
8
FIT
1:1
100%

Артикул

Название

Примечание

Количество

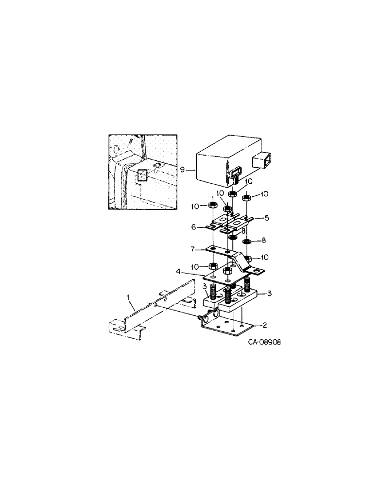
1

BRACKET ASSY, battery hold down, Refer to battery tray listing, this group

1шт.

2

1269286C1

SUPPORT

ASSY, fuse holder

1шт.

120361

NUT,Hex Mach Screw, #10 - 24

2шт.

3

245159C1

BLOCK

limiter fuse mounting

1шт.

181004

BOLT,Hex, 5/16" - 24 x 1 1/8", Gr 5

5/16-NF x 1-1/8 type 5

4шт.

120393

BEARING WASHER,5/16", SAE

WASHER, .344 x .688 x .051

4шт.

179389

SCREW

no. 1 x 3/4 phc f/hdcr mach, block, Serial Range: mounting-support

4шт.

4

148604C2

PANEL

fuse identification

1шт.

5

1265486C1

FUSE

150 amp

1шт.

6

1265485C1

FUSE

80 amp

1шт.

7

1269292C1

STRIP

fuse junction

1шт.

8

446363

WASHER,5/16"

.375 x .875 x .064, spacer

2шт.

9

1269303C2

COVER

fuse holder

1шт.

10

120368

NUT,5/16"-24, G5

8шт.

Выбрано товаров: 14