Запчасти Case IH SM-325 (10-01) - 3-POINT HITCH AND MOUNTING Options & Miscellaneous

Схема запчастей Case IH SM-325 - (10-01) - 3-POINT HITCH AND MOUNTING Options & Miscellaneous
10
29
15
5
7
18
9
22
3
13
6
9
5
6
25
5
17
8
14
20
28
12
21
24
1
26
1
16
6
11
5
2
10
4
23
18
27
19
8
6
19
FIT
1:1
100%

Артикул

Название

Примечание

Количество

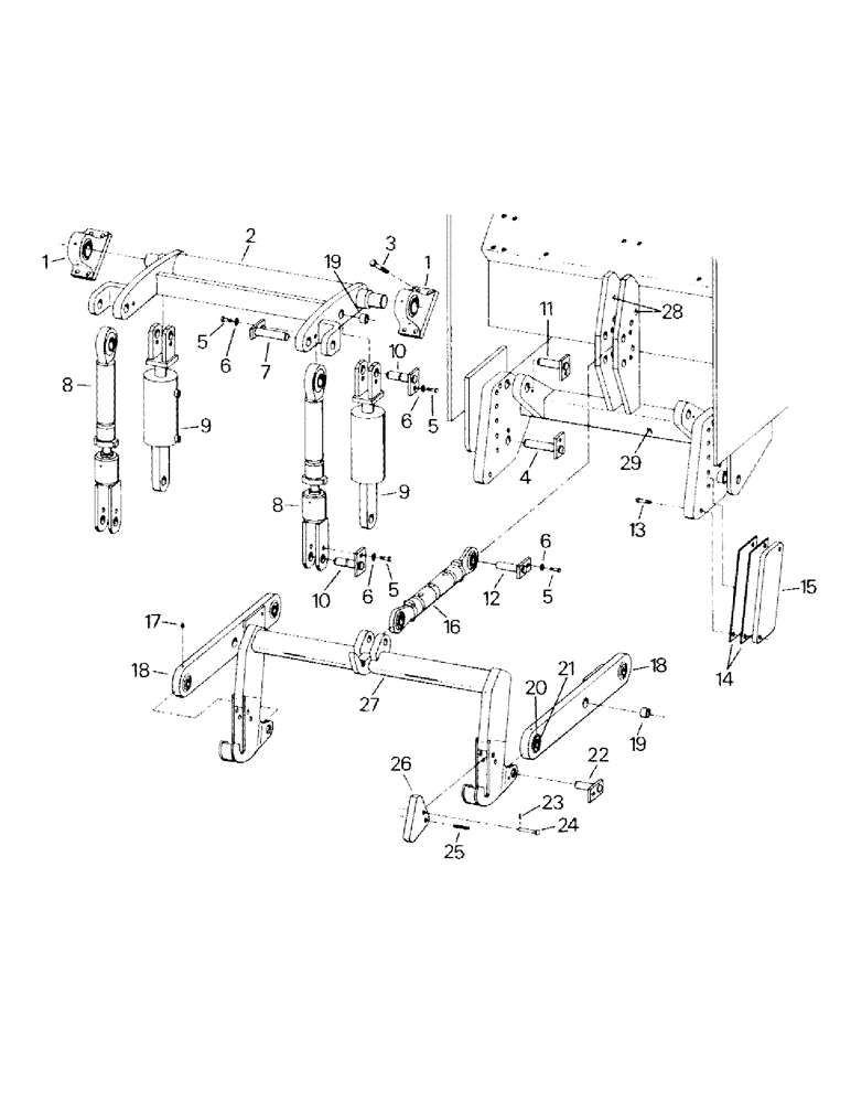
1

1-4855T2

BLOCK

Pillow Block (01-4855T1)

2шт.

2

70-1850T91

SHAFT

Rockershaft Assy (incl Ref. 19)

1шт.

3

19-5426

SCREW,Hex, 7/8" - 9 x 2 3/4", Gr 8

Capscrew

8шт.

4

40-382

PIN

2шт.

5

19-675

BOLT,Hex, 5/8" - 11 x 1 1/4", Gr 5

Capscrew

14шт.

6

19-111

WASHER,5/8"

14шт.

7

40-440

PIN

2шт.

8

Adjusting Arm Assy (Fig. 10-3)

2шт.

9

Cylinder Assy (Fig. 10-3)

2шт.

10

40-430

PIN

4шт.

11

40-380

PIN

2шт.

12

40-432

PIN

2шт.

13

19-42

BOLT,1/2" - 13 x 2 1/4", Gr 5

Capscrew

4шт.

14

40-521

MOUNTING PARTS

Wear Shim (thin)

4шт.

15

40-519

MOUNTING PARTS

Wear Plate (thick)

2шт.

16

Center Link Assy (Fig. 10-3)

1шт.

17

80710

LUBE NIPPLE,1/8” – 27 Dryseal PTF

NIPPLE, LUBE, (Used on Refs. 1 & 8) 1/8"-27 x .66 lg

10шт.

31-95

FITTING

Grease Fitting (used on Ref. 10)

4шт.

31-96

FITTING

Grease Fitting (used on Ref. 18)

4шт.

18

50-38

LINK

Lower Link (incl Refs. 19-21)

2шт.

19

15-21

RING RACE

Bushing

4шт.

20

40-106

HOUSING

Uniball Housing

4шт.

21

40-302

LINK

Uniball

2шт.

22

40-438

PIN

4шт.

23

19-358

PIN

Hair Pin

2шт.

24

19-257

CLEVIS PIN,1/2" x 3"

Cornpicker Pin

2шт.

25

9411887

PIN,1/2" x 2 1/2", Coiled

2шт.

26

40-504

HANDLE

Quick Hitch Latch

2шт.

27

40-330T1

HITCH ASSY, TRAILER

Quick Hitch

1шт.

28

70-2997T1

HITCH ASSY, TRAILER

Upper Hitch

2шт.

29

50-31T1

ANCHOR

Lower Link Mount

1шт.

Выбрано товаров: 31