Запчасти Case IH STEIGER (10-06) - QUICK HITCH AND MOUNTING Options & Miscellaneous

Схема запчастей Case IH STEIGER - (10-06) - QUICK HITCH AND MOUNTING Options & Miscellaneous
20
4
5a
2
12
9
10
4
3
8
7
14
17
19
5
16
1a
2
17
7
18
14
21
1
15
15
6
13
11
8
FIT
1:1
100%

Артикул

Название

Примечание

Количество

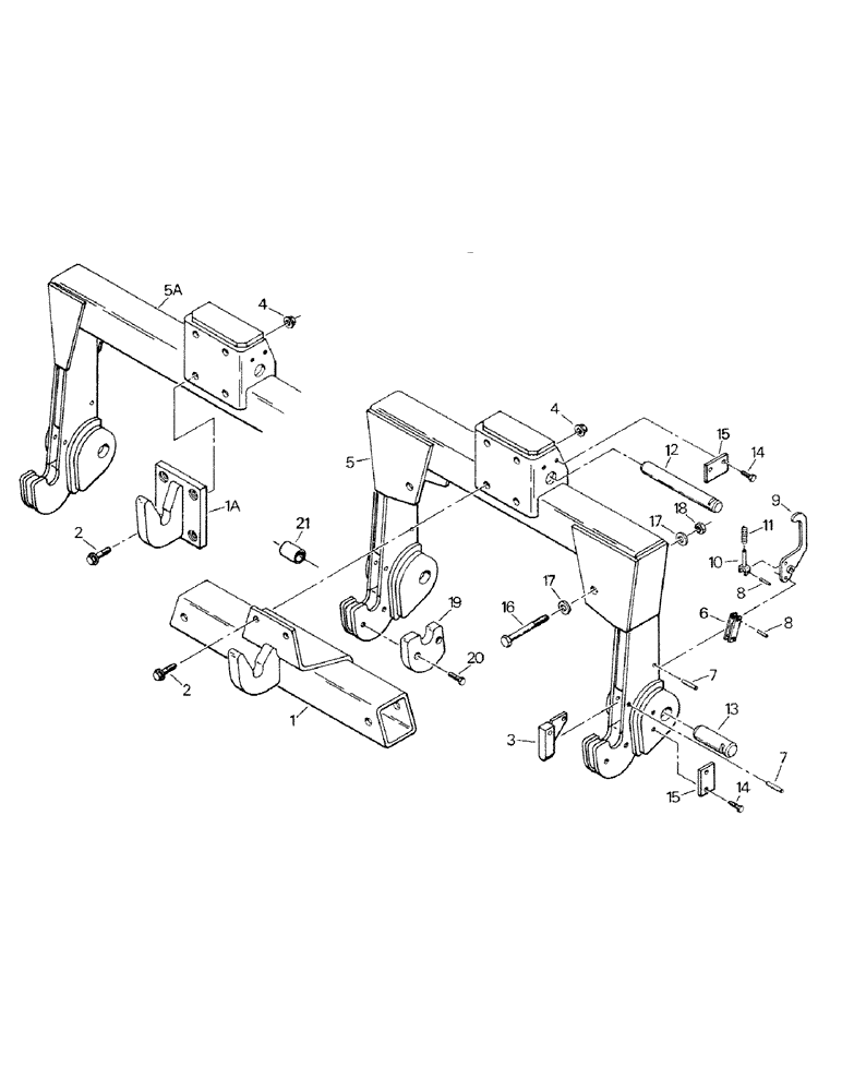
1

70-1913T1

HOOK

Cat III

1шт.

Part of P/N 35-1376T91 Quick Hitch Kit

1шт.

1a

70-1869T1

HOOK

Cat IV and Cat IV N

1шт.

2

19-5787

BOLT,Hex, 3/4" - 10 x 2 1/2", Gr 8

FLANGED CAPSCREW, qty. 4 with Cat IV and Cat IV N

2шт.

3

70-1890T2

STOP

PIN

2шт.

4

19-5727

NUT,Flg, 3/4"-10, G8

FLANGED LOCK NUT, qty. 4 with Cat IV and Cat IV N

2шт.

5

70-1919T2

HITCH ASSY, TRAILER

QUICK HITCH, Cat III and Cat IV N, Replaces70-1919T1

1шт.

Superseded - old P/N can be used up on all models prior to S/N break only. New P/N must be used after S/N break. Order new P/N when old stock is depleted as it will work for all.

1шт.

5a

70-1863T2

TRAILER HITCH

QUICK HITCH, Cat IV, Replaces70-1863T1

1шт.

Superseded - old P/N can be used up on all models prior to S/N break only. New P/N must be used after S/N break. Order new P/N when old stock is depleted as it will work for all.

1шт.

Ref. 5 and 5A will supersede as shown, but the 1/2" mounting refs. will also be needed. The 3/8" mounting refs. will still be used on early models

1шт.

6

70-1887T1

PITMAN

CONNECTOR

2шт.

7

9411887

PIN,1/2" x 2 1/2", Coiled

2шт.

8

9416325

LOCK PIN,5/16" x 1 1/8", Slotted

Pin, 5/16" x 1 1/8", Slotted

6шт.

9

70-1880T1

LATCH

HANDLE

2шт.

10

70-1884T1

PITMAN

GUIDE PIN

2шт.

11

2-4345T1

SPRING

2шт.

12

70-1895T1

PIN

1шт.

13

70-1894T1

PIN

2шт.

14

19-17

BOLT,Hex, 3/8" - 16 x 1", Gr 5, Full Thd

CAPSCREW, 3/8", no S/N available, approx 10-1-84

6шт.

Superseded - old P/N must be used on models prior to S/N break. New P/N will fit models after the S/N break only.

1шт.

19-1108

BOLT,Hex, 1/2" - 13 x 1", Gr 8

CAPSCREW, 1/2", no S/N available, approx 10-1-84

6шт.

Superseded - old P/N must be used on models prior to S/N break. New P/N will fit models after the S/N break only.

1шт.

15

70-2318T1

RETAINER BLOCK, 3/8" holes, no S/N available, approx 10-1-84

3шт.

Superseded - old P/N must be used on models prior to S/N break. New P/N will fit models after the S/N break only.

1шт.

70-3082T1

BLOCK

RETAINER BLOCK, 1/2" holes, no S/N available, approx 10-1-84

3шт.

Superseded - old P/N must be used on models prior to S/N break. New P/N will fit models after the S/N break only.

1шт.

16

9430344

BOLT,Hex, 1" - 8 x 7 1/2", Gr 8

CAPSCREW

2шт.

Part of P/N 35-1376T91 Quick Hitch Kit

1шт.

17

19-5739

WASHER

4шт.

Part of P/N 35-1376T91 Quick Hitch Kit

1шт.

18

19-610

NUT,1"-8, G5

2шт.

Part of P/N 35-1376T91 Quick Hitch Kit

1шт.

19

70-1921T1

CAP

left

1шт.

70-1920T1

CAP

right

1шт.

20

19-221

BOLT,Hex, 1/2" - 13 x 1 1/2", Gr 5

CAPSCREW

4шт.

21

2-5306T1

SPACER

2шт.

Part of P/N 35-1376T91 Quick Hitch Kit

1шт.

35-1376T91

HOOK

QUICK HITCH KIT, consists of ref. 1, 16 - 18 and 21

1шт.

35-1470T91

FAST HITCH

QUICK HITCH KIT, Cat IV N

1шт.

35-1471T91

KIT

QUICK HITCH KIT, Cat IV

1шт.

Выбрано товаров: 0