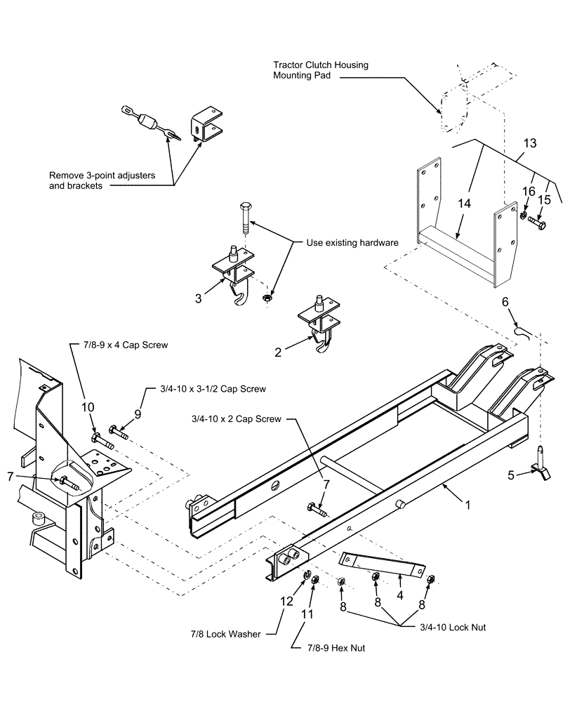
Запчасти Case IH BHX172 (05) - SUBFRAME, 715651016 - DX21 & DX24

Схема запчастей Case IH BHX172 - (05) - SUBFRAME, 715651016 - DX21 & DX24
4
16
13
3/4-10 x 2 cap screw
use existing hardware
14
and brackets
mounting pad
6
7
5
3/4-10 lock nut
1
3/4-10 x 3-1/2 cap screw
8
remove 3-point adjusters
7/8-9 x 4 cap screw
tractor clutch housing
15
7/8 lock washer
11
10
8
8
12
7
3
2
9
7/8-9 hex nut
FIT
1:1
100%

Артикул

Название

Примечание

Количество

1

SML46010

FRAME

Subframe

1шт.

2

SML464582

BRACKET

Rear Axle, Right

1шт.

3

SML464581

BRACKET

Rear Axle, Left

1шт.

4

SML44836

SUPPORT

Brace, Rear

2шт.

5

SML44892

PIN,3.25" L

Clevis, 3/4"x3"

2шт.

6

PL

PROCURE LOCALLY

Pin, Hair, Cotter

2шт.

7

PL

PROCURE LOCALLY

Screw, Cap, 3/4"-10 x 2 Grade 8

4шт.

8

231-41412

NUT,3/4"-10, GB

Nut, Lock, GC, 3/4"-10

6шт.

9

413-1256

BOLT,Hex, 3/4" - 10 x 3-1/2", Gr 5

2шт.

10

PL

PROCURE LOCALLY

Screw, Cap, 7/8"-9x4"

2шт.

11

9849647

NUT,7/8"-9, G5

G5, 7/8"-9

2шт.

12

87341

LOCK WASHER,7/8"

7/8"

2шт.

13

716963006

Center Mounting Adapter Kit (BHX172 only ) when equipped with LX112 Loader

1шт.

Order thru Wholegoods

1шт.

14

NSS

NOT SOLD SEPARAT

Bracket, Mounting

1шт.

15

PL

PROCURE LOCALLY

Screw, Cap, 16mm-2.0x40mm

8шт.

16

86729275

LOCK WASHER,5/8 0.634 CST ZND

WASHER, LOCK, 5/8"

8шт.

Выбрано товаров: 17