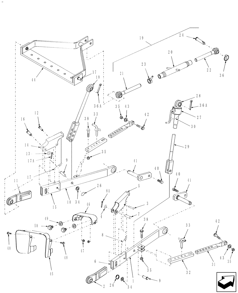
Запчасти Case IH DX45 (09.02) - DELUXE 3PT HITCH, REAR COUNTERWEIGHT BRACKET & PTO SHIELD (09) - IMPLEMENT LIFT

Схема запчастей Case IH DX45 - (09.02) - DELUXE 3PT HITCH, REAR COUNTERWEIGHT BRACKET & PTO SHIELD (09) - IMPLEMENT LIFT
23
41
47
21
46
31
17a
27
11
36a
17
12
42
9
4
26
36a
8
35
2
29
3
49
40
10
1
20
37
8a
38
40
35
48
34
30
5
24
18
15
28
6
35
13
22
38
50
44
33
48
41
43
45
9
43
36
7
42
19
34
32
26
14
35
33
16
FIT
1:1
100%

Артикул

Название

Примечание

Количество

1

87381822

LIFT LINK

Lower Assy., RH, Includes: Ref. 2-8A

1шт.

2

87381826

LIFT LINK

LINK, LIFT, R.H.

1шт.

3

14610270

LOCK PIN,M10 x 45, Slotted

1шт.

4

140020

WASHER,17.5mm ID x 30mm OD x 3mm Thk

1шт.

5

86402627

COVER

1шт.

6

87381823

LIFT LINK

LINK, LIFT, Lower

1шт.

7

86400412

CLEVIS PIN,15.88mm OD x 63mm L

(5/8"), Uses 87398 Cotter Pin

1шт.

8

86532826

SPRING,Extension, 60.7mm L

1шт.

8a

87398

COTTER PIN,3/16" OD x 1-1/4" OAL

2шт.

9

86400412

CLEVIS PIN,15.88mm OD x 63mm L

(5/8"), Uses 87398 Cotter Pin

2шт.

10

87381821

LIFT LINK

LINK, LIFT, Lower Assy., LH, Includes: Ref. 11-17A

1шт.

11

87381825

LIFT LINK

LINK, LIFT, L.H.

1шт.

12

14610270

LOCK PIN,M10 x 45, Slotted

1шт.

13

140020

WASHER,17.5mm ID x 30mm OD x 3mm Thk

1шт.

14

86402627

COVER

1шт.

15

87381823

LIFT LINK

LINK, LIFT, Lower

1шт.

16

86400412

CLEVIS PIN,15.88mm OD x 63mm L

(5/8"), Uses 87398 Cotter Pin

1шт.

17

86532826

SPRING,Extension, 60.7mm L

1шт.

17a

87398

COTTER PIN,3/16" OD x 1-1/4" OAL

2шт.

18

87381830

LIFT LINK

LINK, LIFT, L.H.

1шт.

19

87382388

LIFT LINK

LINK, TOP Includes: Ref. 20 Thru 23

1шт.

20

87382394

TURNBUCKLE

HOUSING

1шт.

21

87382396

LIFT LINK END ASSY

LINK, LIFT, R.H.

1шт.

22

87382395

TOP LINK

LINK, LIFT, L.H.

1шт.

23

87382399

JAM NUT

NUT, Jam

1шт.

24

SBA370911000

PIN

1шт.

27

87381827

LIFT LINK

LINK, LIFT Includes: Ref. 28-30

1шт.

28

87381828

LIFT LINK

GEAR

1шт.

29

87381829

ADJUSTABLE CLEVIS,M24 x 3

END ASSY, TRACK ROD

1шт.

30

86400284

LOCK

Crank

1шт.

31

87381832

LIFT LINK

STABILIZER, Male

2шт.

32

87381833

STABILIZER

STABILIZER, Female

2шт.

33

86400280

PIN

Stabilizer w/Chain

2шт.

34

140020

WASHER,17.5mm ID x 30mm OD x 3mm Thk

2шт.

35

100038

NUT,M12 x 1.75, Cl 8

4шт.

36

132757

LINCH PIN,11.11mm OD x 44.45mm L

1шт.

36a

86523778

COTTER PIN,3/8" x 2"

2шт.

37

PBF9590

PIN

2шт.

38

87015908

BOLT,Hvy Hex, M12 x 60mm, Cl 10.9

BOLT Hex Flange, HD, M12 x 60, 10.9 ZND

2шт.

40

SBA011511020

BOLT,M10 x 20

M12x25

4шт.

41

SBA370900450

PIN

2шт.

42

86505259

BOLT,Hex, M12 x 1.75 x 70mm, Cl 10.9

2шт.

43

65319

WASHER,13.1mm ID x 25.4mm OD x 3.68mm Thk

2шт.

44

86402517

KIT

Rear Counterweight Bracket, Mounts on 3-Point Hitch & Will Accept Up To (7) Front End Weights

1шт.

45

86402603

SHIELD

PTO

1шт.

46

86402580

BRACKET

1шт.

47

9804277

FLANGE NUT,Hex, M8 x 1.25, Cl 8

2шт.

48

9671714

FLANGE BOLT,Hex, M8 x 1.25 x 25mm, Cl 8.8

2шт.

49

140048

BELLEVILLE WASHER,M16 Bolt Size x 32mm OD x 2.8mm Thk

2шт.

50

86511846

BOLT,Hex, M16 x 30mm, Cl 8.8, Full Thd

2шт.

Выбрано товаров: 50