Запчасти Case IH 184 (08-08) - ELECTRICAL, STARTING AND LIGHTING, 184 TRACTOR (06) - ELECTRICAL

Схема запчастей Case IH 184 - (08-08) - ELECTRICAL, STARTING AND LIGHTING, 184 TRACTOR (06) - ELECTRICAL
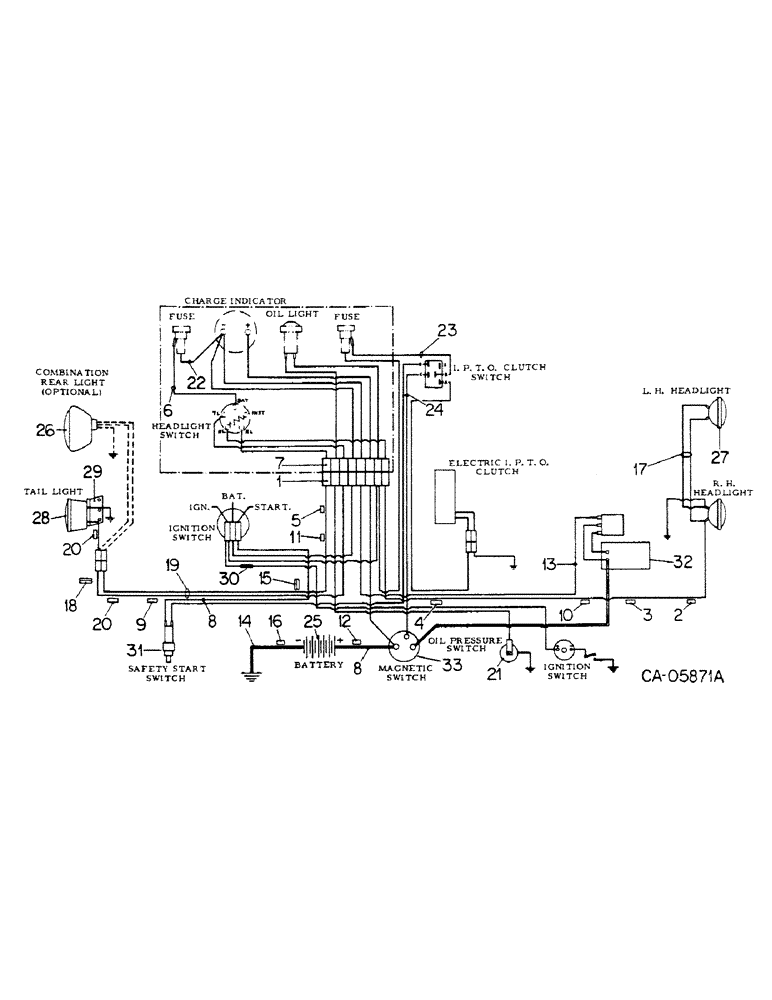
28
26
20
8
5
16
21
18
31
3
29
14
33
1
13
6
7
11
10
22
12
32
2
24
19
15
30
8
17
9
27
4
25
20
23
FIT
1:1
100%

Артикул

Название

Примечание

Количество

1

126335C1

HARNESS, main cable, tractors w/motor-generator

1шт.

1

140034C1

HARNESS

main cable, tractors w/alter-gen. & cranking motor

1шт.

2

132031C1

CLIP, rad upper RH mtg bolt

1шт.

3

384554R1

CLIP

motor gen adj bracket

1шт.

4

61813D

CLIP

throttle cable

1шт.

5

371036R1

CLIP

cable, top RH rear engine & fuel tank support

3шт.

179812

GEAR

5/16 x 1/2 pln type 5

1шт.

180056

BOLT,Hex, 5/16" - 18 x 3/8", Gr 5

5/16 x 3/8 type 5

1шт.

6

126348C1

CABLE, LT, Serial Range: switch-fuse

1шт.

7

126347C1

CABLE, instrument panel

1шт.

8

387263R91

CABLE

battery to magnetic switch

1шт.

9

370535R1

CLIP

cable LH rear frame channel

1шт.

10

384559R1

CLIP

cable water outlet

1шт.

11

545996R1

CLIP

cable firewall

1шт.

12

536034R1

CLIP, cable

2шт.

179791

BOLT,Hex, 1/4" - 20 x 1/2", Gr 5

1шт.

109084

NUT,1/4"-20, G5

1шт.

13

126343C1

CABLE, magnetic switch to generator, tractors w/motor-generator

1шт.

13

140043C1

CABLE

magnetic swithc to cranking motor, tractors w/alter-gen & cranking motor

1шт.

14

126344C1

CABLE

, Serial Range: battery-ground

1шт.

15

42731H

GROMMET

rubber to pedestal LH side

1шт.

16

384559R1

CLIP

battery cable

1шт.

17

126351C1

CABLE, headlight ground

1шт.

18

364657C1

GROMMET, rubber tail light

1шт.

19

126349C2

CABLE, tail light

1шт.

20

362121R1

CLIP

3шт.

179791

BOLT,Hex, 1/4" - 20 x 1/2", Gr 5

1шт.

109084

NUT,1/4"-20, G5

1шт.

21

365501R1

TERMINAL CONNECTOR

TERMINAL, oil pressure switch

1шт.

22

57592C1

CABLE

charge, Serial Range: indicator-fuse

1шт.

23

126346C1

CABLE, clutch switch, Serial Range: B,-fuse

1шт.

24

126390C1

CONNECTOR, cable

1шт.

25

IHPR22NF

DRY BATTERY

12 volt

1шт.

26

126470C1

LAMP

LIGHT, sealed beam head

2шт.

27

107333C1

RING

headlight

2шт.

28

121846C91

LIGHT

ASSY, tail 12 V, only serviceable items are

1шт.

124228C1

LENS

tail light, replaces 121850C1

1шт.

142450

BULB,C2R, #67, 13.5V

LAMP, no. 67

1шт.

492-11025

LOCK WASHER,1/4"

WASHER, LOCK, 1/4"

2шт.

120375

NUT,Hex, 1/4" - 20, Gr 5

2шт.

29

121848C1

BRACKET

1шт.

413-412

BOLT,Hex, 1/4" - 20 x 3/4", Gr 5

2шт.

492-11025

LOCK WASHER,1/4"

WASHER, LOCK, 1/4"

2шт.

120375

NUT,Hex, 1/4" - 20, Gr 5

2шт.

30

107558C1

RESISTOR

25 OHM, replaces 534784R1, tractor w/alter-gen & cranking motor

1шт.

180081

BOLT,Hex, 5/16"-18 x 1 1/4", G5

5/16"-18 x 1-1/4" type 5

1шт.

120393

BEARING WASHER,5/16", SAE

WASHER, .344 x .688 x .051

1шт.

31

106699C91

SWITCH

neutral starting

1шт.

32

1109352

MOTOR

ASSY, cranking, 131174C91, for components see list of parts under details of cranking motor

1шт.

NLS

NO LONGER SERVICED

2шт.

120394

WASHER,3/8", SAE

WASHER, .406 x .812 x .051

2шт.

103321

LOCK WASHER,3/8"

WASHER, LOCK, 3/8"

2шт.

179839

BOLT,Hex, 3/8" - 16 x 1", Gr 5

2шт.

120394

WASHER,3/8", SAE

WASHER, 3/8 lock

2шт.

103321

LOCK WASHER,3/8"

WASHER, LOCK, 3/8"

2шт.

33

121613C1

IGNITION SWITCH

SWITCH, magnetic, replaces 545756R2

1шт.

80681

LOCK WASHER,5/16"

WASHER, LOCK, 5/16"

2шт.

120367

NUT,Hex, 1/4" - 28, Gr 5

1/4-NF type 5

2шт.

611344R1

WASHER

11/32 x 7/8 x 16 ga

1шт.

120217

LOCK WASHER,#10

WASHER, LOCK, #10

1шт.

120614

NUT,Hex, #10 - 32

NUT, #10-32

1шт.

114604

LOCK WASHER,Ext Tooth, 1/4"

WASHER, 1/4 ext pln tooth lock

2шт.

109084

NUT,1/4"-20, G5

2шт.

Выбрано товаров: 63