Запчасти Case IH FARMALL 90V (33.220.070) - VAR - 330895 - TRAILER BRAKE VALVE, SUPPORT, ITALY, CAB (33) - BRAKES & CONTROLS

Схема запчастей Case IH FARMALL 90V - (33.220.070) - VAR - 330895 - TRAILER BRAKE VALVE, SUPPORT, ITALY, CAB (33) - BRAKES & CONTROLS
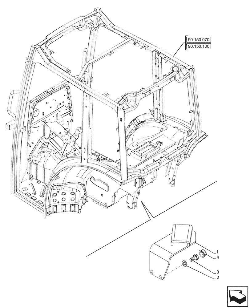
90.150.100
2
1
4
3
90.150.070
FIT
1:1
100%

Артикул

Название

Примечание

Количество

1

87307768

PLATE

1шт.

2

11190574

BELLEVILLE WASHER,M10 Bolt Size x 20mm OD x 2.3mm Thk

2шт.

3

15970524

BOLT,Hex, M10 x 1.25 x 20mm, Cl 8.8, Full Thd

2шт.

4

15811787

COVER

2шт.

Выбрано товаров: 4