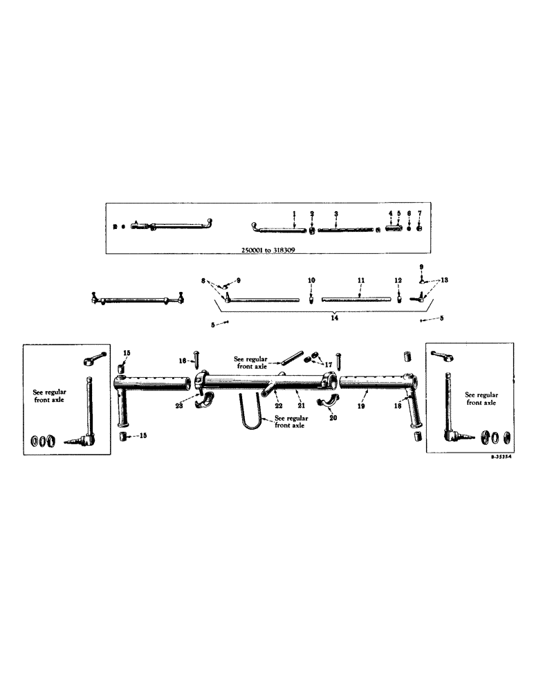
Запчасти Case IH SUPER AV (186) - CHASSIS, ADJUSTABLE FRONT AXLE ATTACHMENT, SPECIAL, SUPER A AND A-1 (12) - CHASSIS

Схема запчастей Case IH SUPER AV - (186) - CHASSIS, ADJUSTABLE FRONT AXLE ATTACHMENT, SPECIAL, SUPER A AND A-1 (12) - CHASSIS
6
9
11
17
10
4
8
2
18
15
16
12
22
20
13
5
14
1
15
7
19
23
5
5
3
21
FIT
1:1
100%

Артикул

Название

Примечание

Количество

1

57869DA

ROD,15.062" Length

TUBE, tie rod, 250001 to 318309

2шт.

2

43747D

CLAMP

tie rod, Serial Range: 250001-318309

2шт.

271505

BODY

hex., 7/16-20NF

2шт.

181403

SCREW,Hex, 7/16" - 20 x 1 3/4"

cap, hex-hd., 7/16-20NF x 1-3/4"

2шт.

103322

LOCK WASHER,7/16"

WASHER, LOCK, 7/16"

2шт.

3

57871D

ROD

TIE ROD, Serial Range: 250001-318309

2шт.

4

48280DB

END

tie rod, Serial Range: 250001-318309

2шт.

103389

SPLIT PIN/SAFETY PIN,1/8" x 2"

Pin, Split (Cotter), 1/8" x 2"

2шт.

5

109461

LUBE NIPPLE,1/8"-27 x .66 lg

NIPPLE, LUBE, (optional with 119512), 250001 to 306075 1/8"-27 x .66 lg

2шт.

5

219-36

LUBE NIPPLE,45 Degree Elbow, 1/8" - 27 NPTF

FITTING, lubrication, straight, 1/8" (optional with 109461), 250001 to 306075

2шт.

5

332040

LUBE NIPPLE,90 Degree, 1/8" NPT x .84" lg

FITTING, lubrication, straight, 1/4" (tie rod) (optional with 109454) (see note), 318310 up

4шт.

5

219-8

LUBE NIPPLE,1/4" - 28 NPTF

NIPPLE, LUBE, (Tie rod) (Optional with 110347) (See note), 318310 up 1/4"-28 NPT x .54" lg

4шт.

6

43468D

SEAT

tie rod ball, Serial Range: 250001-318309

2шт.

7

57875D

SEAT

adjusting, tie rod ball, Serial Range: 250001-318309

2шт.

8

356544R11

TIE-ROD

END, tie rod, assembly (use with 7/8" O.D. tie rod tube) (composed of - (1) cover 358209R1, (1) end 356545R1 (NSS), (1) nut 102647, (1) pin 103385, (1) tie rod 356544R1 (NSS)), 318310 up

2шт.

8

360412R11

ROD

END, tie rod, assembly (used with I" O.D. tie rod tube) (composed of - (1) cover 358209R1, (1) end 360413R91 (NSS), (1) nut 102647, (1) pin 103385, (1) tie rod 360412R1 (NSS)), 318310 up

2шт.

103385

COTTER PIN,1/8" x 1"

PIN, SPLIT (COTTER), 1/8" x 1"

2шт.

425-138

SLOTTED NUT,1/2"-20, G8

NUT, SLOTTED, 1/2"-20, G8

2шт.

9

358209R1

COVER

dust, tie rod end, 318310 up

4шт.

10

356546R1

CLAMP, tie rod (for 7/8" O.D. tie rod tube), 318310 up

2шт.

103026

NUT,3/8"-24, G5

2шт.

181376

BOLT,Hex, 3/8" - 24 x 1 5/8", Gr 5

SCREW, cap, hex-hd., 3/8-24NF x 1-5/8"

2шт.

93-41039

LOCK WASHER,Ext Tooth, 3/8"

WASHER, external-tooth, 3/8"

2шт.

10

43747D

CLAMP

tie rod (for I" O.D. tie rod tube), 318310 up

2шт.

425-117

NUT,7/16"-20, G5

hex., 7/16-20NF

2шт.

181403

SCREW,Hex, 7/16" - 20 x 1 3/4"

cap, hex-hd., 7/16-20NF x 1-3/4"

2шт.

103322

LOCK WASHER,7/16"

WASHER, LOCK, 7/16"

2шт.

11

356548R2

TUBE,0.88" OD, 16.062" Length

tie rod (7/8" O.D. x 16-1/6" long), 318310 up

2шт.

11

360411R1

TUBE,0.766" ID, 1.005" OD, 16.125" Length

tie rod (I" O.D. x 16-1/8" long), 318310 up

2шт.

12

356543R1

CLAMP

tie rod, 318310 up

2шт.

103026

NUT,3/8"-24, G5

2шт.

181376

BOLT,Hex, 3/8" - 24 x 1 5/8", Gr 5

SCREW, cap, hex-hd., 3/8-24NF x 1-5/8"

2шт.

93-41039

LOCK WASHER,Ext Tooth, 3/8"

WASHER, external-tooth, 3/8"

2шт.

13

356540R91

END

tie rod, assembly (composed of - (1) cover 358209R1, (1) end (NSS), (1) nut 102647, (1) pin 103385), 318310 up

2шт.

425-138

SLOTTED NUT,1/2"-20, G8

NUT, SLOTTED, 1/2"-20, G8

2шт.

103385

COTTER PIN,1/8" x 1"

PIN, SPLIT (COTTER), 1/8" x 1"

2шт.

14

356539R93

ROD

TIE ROD, assembly (composed of - (1) clamp 356543R1, (1) clamp 43749D, (1) end 356540R91, (1) nut 103026, (1) nut 271505, (1) screw 181376, (1) screw 181403, (1) tie rod 360412R11, (1) tube 360411R1, (1) washer 114606, (1) washer 114607), 318310 up

2шт.

15

356609R1

BUSHING,31.42mm ID x 35.89mm OD x 44.45mm L

steering knuckle post (will work for 60385DR)

4шт.

16

59280D

AXLE PIN

PIN, front axle extension clamp

2шт.

103630

PIN, cotter, 1/8 x 7/8"

2шт.

17

43455DR

BUSHING,25.07mm ID x 28.27mm OD x 63.5mm L

front axle pivot

2шт.

18

109461

LUBE NIPPLE,1/8"-27 x .66 lg

NIPPLE, LUBE, (front axle) (optional with 119512), 250001 to 327715 1/8"-27 x .66 lg

2шт.

18

219-36

LUBE NIPPLE,45 Degree Elbow, 1/8" - 27 NPTF

FITTING, lubrication, straight, 1/8" (front axle) (optional with 109461), 250001 to 327715

2шт.

18

219-8

LUBE NIPPLE,1/4" - 28 NPTF

NIPPLE, LUBE, (Front axle) (Optional with 110347), 327716 up 1/4"-28 NPT x .54" lg

2шт.

18

332040

LUBE NIPPLE,90 Degree, 1/8" NPT x .84" lg

FITTING, lubrication, straight, 1/4" (front axle) (optional with 109454), 327716 up

2шт.

19

48286DAXA

EXTENSION, front axle, horizontal, w/two bushings, 356609R1

2шт.

20

59279D

CLAMP, front axle extension

4шт.

21

354800R92

AXLE, center, front, w/two bushings, 43455DR (will work for 48285 DAX)

1шт.

22

109461

LUBE NIPPLE,1/8"-27 x .66 lg

NIPPLE, LUBE, (pivot tube) (optional with 119512), 250001 to 327715 1/8"-27 x .66 lg

1шт.

22

219-36

LUBE NIPPLE,45 Degree Elbow, 1/8" - 27 NPTF

FITTING, lubrication, straight, 1/8" (pivot tube) (optional with 109461), 250001 to 327715

1шт.

22

219-8

LUBE NIPPLE,1/4" - 28 NPTF

NIPPLE, LUBE, (Pivot tube) (Optional with 110347), 327716 up 1/4"-28 NPT x .54" lg

1шт.

22

332040

LUBE NIPPLE,90 Degree, 1/8" NPT x .84" lg

FITTING, lubrication, straight, 1/4" (pivot tube) (optional with 109454), 327716 up

1шт.

23

14-1056

BOLT,Hex, 5/8" - 18 x 3-1/2", Gr 5

SCREW, cap, hex-hd., 5/8-18NF x 3-1/2" (will work for 48628D)

4шт.

425-1110

NUT,5/8"-18, G5

4шт.

114609

LOCK WASHER,Ext Tooth, 5/8"

WASHER, LOCK, Ext Tooth, 5/8"

4шт.

48290DC

1шт.

ATTACHMENT, adjustable front axle (Super A and A-1) (composed of - (1) arm 356554R1, (1) axle 354800R92, (4) bolt 271593, (2) clamp 43747D, (4) clamp 59279D, (2) end 48280DB, (2) extension 48286DAXA, (4) fitting 109454, (1) key 124553, (1) nut 70120D, (2) nut 103027, (4) nut 103030, (2) pin 219753, (2) pin 59280D, (1) pin 103388, (2) pin 103389, (2) pin 108630, (2) rod 57139DA, (2) seat 43468D, (2) seat 57875D, (2) screw 181403, (1) shaft 356549R1, (2) tube 57869DA, (2) washer 103322, (4) washer 114609) 250

1шт.

356577R93

1шт.

ATTACHMENT, adjustable front axle (Super A and A-1) (composed of - (1) axle 354800R92, (4) bolt 271593, (4) clamp 59279D, (2) extension, (7) fitting 109454, (4) nut 103030, (2) pin 59280D, (2) pin 108630, (4) pin 103385, (2) tie rod 356539R93, (4) washer 114609), 318310 up

1шт.

355001R91

PACKAGE, field improvement, front axle pivot tube reinforcement (for Super-A tractors equipped with adjustable front axle attachment, 48290DA)

1шт.

Выбрано товаров: 60