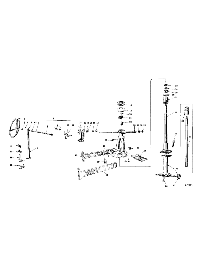
Запчасти Case IH SUPER-HV (112) - CHASSIS, STEERING MECHANISM, UPPER AND LOWER BOLSTERS AND FRONT FRAME CHANNELS (12) - CHASSIS

Схема запчастей Case IH SUPER-HV - (112) - CHASSIS, STEERING MECHANISM, UPPER AND LOWER BOLSTERS AND FRONT FRAME CHANNELS (12) - CHASSIS
51
2
49
40
35
28
23
47
46
8
14
33
27
45
15
21
10
41
16
18
38
20
22
7
5
1
17
9
19
32
43
29
42
4
2
34
31
12
3
50
48
11
26
13
30
6
39
37
36
24
25
44
FIT
1:1
100%

Артикул

Название

Примечание

Количество

1

29118DC

WHEEL

steering 18" diam. (French and Hecht 848-IH) (Optional with 60070D)

1шт.

1

60070D

STEERING WHEEL

WHEEL, steering 18" diam. (Sheller 624) (Optional with 29118DC)

1шт.

2

51444DA

COLLAR

SPACER, steering shaft rear bearing

2шт.

139042

BAR

set, hdls., cup-pt., 5/16-24NF x 5/16"

4шт.

3

109461

LUBE NIPPLE,1/8"-27 x .66 lg

NIPPLE, LUBE, (Steering shaft rear bearing) (Optional with 119512) 1/8"-27 x .66 lg

1шт.

3

219-36

LUBE NIPPLE,45 Degree Elbow, 1/8" - 27 NPTF

FITTING, lubrication, straight, 1/8" (Steering shaft rear bearing) (Optional with 109461)

1шт.

4

352962R11

BEARING, steering shaft, rear, w/Rivet, 104091

1шт.

104091

RIVET,But Hd, 1/4" x 1 3/4"

rd-hd., 1/4 x 1-3/4"

1шт.

5

352963R91

POST, steering, w/Base ) For tractors, Serial Range: 501-19233

1шт.

5

359521R91

POST, steering, w/Base (See Note B)

1шт.

179861

BOLT,Hex, 7/16" - 14 x 1 3/8", Gr 5

SCREW, cap, hex-hd., 7/16-14NC x 1-3/8"

2шт.

179929

BOLT,Hex, 5/18" - 11 x 1 3/4"

SCREW, cap, hex-hd., 5/8-11NC x 1-3/4"

1шт.

103322

LOCK WASHER,7/16"

WASHER, LOCK, 7/16"

2шт.

103325

LOCK WASHER,5/8"

WASHER, LOCK, 5/8"

1шт.

5

352964R91

POST, steering, 352963R11, w/Bearing, assembly, 352962R11) For tractors, Serial Range: 501-19233

1шт.

5

359522R91

POST, steering, 359521R91, w/Bearing, assembly, 352962R11) For Tractors 19234 up

1шт.

179861

BOLT,Hex, 7/16" - 14 x 1 3/8", Gr 5

SCREW, cap, hex-hd., 7/16-14NC x 1-3/8"

2шт.

179929

BOLT,Hex, 5/18" - 11 x 1 3/4"

SCREW, cap, hex-hd., 5/8-11NC x 1-3/4"

1шт.

103322

LOCK WASHER,7/16"

WASHER, LOCK, 7/16"

2шт.

103325

LOCK WASHER,5/8"

WASHER, LOCK, 5/8"

1шт.

6

112139

WOODRUFF KEY,#A, 1/4" x 7/8"

KEY, Woodruff, No. A, 1/4 x 7/8" (Steering wheel)

1шт.

7

350357R91

SHAFT, steering, w/Yoke, rear

1шт.

114499

NUT, jam, hex., 3/4-16NF

1шт.

8

350333R92

SHAFT, steering, 350357R91, w/Yoke, Bearing and Spider

1шт.

9

350254R91

U-JOINT SPIDER

BEARING AND SPIDER, steering universal joint (Optional with 357439R91)

1шт.

9

357439R91

BEARING AND SPIDER, steering universal joint (Optional with 350254R91)

1шт.

10

350361R2

YOKE

steering universal joint

1шт.

103026

NUT,3/8"-24, G5

1шт.

114499

NUT, jam, hex., light, 3/4-16NF

1шт.

181377

BOLT,Hex, 3/8" - 24 x 1 3/4", Gr 5

SCREW, cap, hex-hd., 3/8-24NF x 1-3/4"

1шт.

103321

LOCK WASHER,3/8"

WASHER, LOCK, 3/8"

1шт.

11

126-119

WOODRUFF KEY,#11, 3/16" x 7/8", HT

KEY, Woodruff, No. 11, 3/16 x 7/8" (Steering shaft universal joint)

1шт.

12

67854DA

STIFFENER, steering shaft center bearing support

1шт.

114773

NUT, hex., 7/16-14NC

3шт.

179856

BOLT,Hex, 7/16" - 14 x 3/4", Gr 5

SCREW, cap, hex-hd., 7/16-14NC x 3/4"

1шт.

179858

SUPPORT

SCREW, cap, hex-hd., 7/16-14NC x 1"

2шт.

103322

LOCK WASHER,7/16"

WASHER, LOCK, 7/16"

3шт.

13

51128DA

SUPPORT, steering shaft center bearing

1шт.

114773

NUT, hex., 7/16-14NC

2шт.

179856

BOLT,Hex, 7/16" - 14 x 3/4", Gr 5

SCREW, cap, hex-hd., 7/16-14NC x 3/4"

2шт.

103322

LOCK WASHER,7/16"

WASHER, LOCK, 7/16"

2шт.

14

8097D

SUPPORT

BEARING, steering shaft, center

1шт.

280136

NUT,3/8"-16, G8

2шт.

179839

BOLT,Hex, 3/8" - 16 x 1", Gr 5

2шт.

103321

LOCK WASHER,3/8"

WASHER, LOCK, 3/8"

2шт.

15

219-36

LUBE NIPPLE,45 Degree Elbow, 1/8" - 27 NPTF

FITTING, lubrication, straight, 1/8" (Steering shaft center bearing) (Optional with 109461)

1шт.

15

109461

LUBE NIPPLE,1/8"-27 x .66 lg

NIPPLE, LUBE, (Steering shaft center bearing) (Optional with 119512) 1/8"-27 x .66 lg

1шт.

16

43800DA

SEAL

OIL SEAL, steering worm shaft

1шт.

17

41096DBR

BUSHING,25.43mm ID x 32.64mm OD x 31.75mm L

steering worm

1шт.

18

43798DB

COVER, steering worm gear housing

1шт.

179835

BOLT,Hex, 3/8" - 16 x 5/8", Gr 5, Full Thd

4шт.

103321

LOCK WASHER,3/8"

WASHER, LOCK, (On rear screws) 3/8"

4шт.

19

43799D

GASKET, steering worm gear housing cover

1шт.

20

70121D

NUT

upper bolster pivot shaft

1шт.

21

50038DB

GEAR

SECTOR, steering worm gear (19 teeth)

1шт.

22

43805DR

BUSHING,31.74mm ID x 35.03mm OD

upper bolster, top

1шт.

23

50047DB

SHAFT

WORM AND SHAFT, steering

1шт.

103397

COTTER PIN,5/32" x 1 1/4"

Pin, Split (Cotter), 5/32" x 1 1/4"

1шт.

24

ST225BT

BALL BEARING

BEARING, ball steering worm (IH-C-225-Z-T00B)

1шт.

25

69442D

NUT

steering worm (Slotted hex jam nut, 3/4-16NF)

1шт.

26

6660DA

BEARING CAP

steering worm bearing

1шт.

27

68963D

WASHER

upper bolster felt washer (Super "H") (Super "HV") For Tractors 19234 up

1шт.

28

65163D

WASHER, felt upper bolster (Super "HV") For tractors, Serial Range: 501-19233

1шт.

28

350000R1

WASHER

WASHER, felt upper bolster (Super "H") (Super "HV") For Tractors 19234 up

1шт.

29

354676R91

THRUST BEARING,41.4mm ID x 65.09mm OD x 19.05mm W

thrust, upper bolster pivot shaft (Super "H") (Super "HV") For Tractors 19234 up

1шт.

30

67836D

SPACER,44.37mm ID x 65.1mm OD x 6.35mm L

SPACER, upper bolster pivot shaft thrust bearing (Super "H") (Super "HV") For Tractors 19234 up

1шт.

31

49658DAR

BUSHING,65.53mm ID x 70.42mm OD x 79.38mm L

upper bolster, bottom (Super "H") (Super "HV", see Note B)

1шт.

32

9503D

BUSHING, upper bolster pivot shaft (Super "HV") ) For tractors, Serial Range: 501-19233

1шт.

33

65165D

SHAFT, upper bolster pivot (Super "HV") () For tractors, Serial Range: 501-19233

1шт.

103398

COTTER PIN,5/32" x 1 1/2"

Pin, Split (Cotter), 5/32" x 1 1/2"

1шт.

34

69060D

SHAFT

upper bolster pivot (Super "H") (Super "HV",) For Tractors 19234 up

1шт.

352535R1

NUT, hex., 5/8-18NF

3шт.

103398

COTTER PIN,5/32" x 1 1/2"

Pin, Split (Cotter), 5/32" x 1 1/2"

1шт.

181486

SCREW, cap, hex-hd., 5/8-18NF x 2-1/2"

3шт.

103325

LOCK WASHER,5/8"

WASHER, LOCK, 5/8"

3шт.

35

48964DA

BOLT,Stop, 5/8" - 18 x 2 9/16"

steering stop (Super "H") (Not used on single front wheel attachments)

1шт.

352535R1

NUT, hex., 5/8-18NF

1шт.

103325

LOCK WASHER,5/8"

WASHER, LOCK, 5/8"

1шт.

36

6688DDX

BOLSTER, lower, w/Axle, Rivet, 14542R1 and two Shield, 48541D (Super "H")

1шт.

14542R1

RIVET, rd-hd., anld., 5/8 x 3-1/2"

1шт.

37

48541D

SHIELD

dust, front wheel (Super "H")

2шт.

38

14542R1

Follows Reference No. 36

1шт.

39

48689DD

SHIELD, dust, fan drive pulley (Used with 69063DB and 65166DC)

1шт.

39

360479R1

SHIELD, dust, fan drive pulley (Used with 69063DC and 65166DD)

1шт.

179814

SPACER

4шт.

103320

LOCK WASHER,5/16"

WASHER, LOCK, 5/16"

4шт.

40

57563DX

PLUG, upper bolster, w/two Rivet, 110638 and Spring

2шт.

110638

RIVET

rd-hd., 3/16 x 5/16"

2шт.

41

109461

LUBE NIPPLE,1/8"-27 x .66 lg

NIPPLE, LUBE, (Starting crank ratchet) (Optional with 119512) 1/8"-27 x .66 lg

1шт.

41

219-36

LUBE NIPPLE,45 Degree Elbow, 1/8" - 27 NPTF

FITTING, lubrication, straight, 1/8" (Starting crank ratchet) (Optional with 109461)

1шт.

41

109357

FITTING, lubrication, 1/8" (90 degrees) (Adjustable wide tread front axle attachment)

1шт.

42

69063DC

BOLSTER, upper, assembly (Super "H") (Super "HV") For Tractors 19234 up (Composed of -

1шт.

6706DL

BOLSTER (NSS)

1шт.

41096DBR

BUSHING,25.43mm ID x 32.64mm OD x 31.75mm L

1шт.

43805D

BUSHING (NSS)

1шт.

49658DA

BUSHING (NSS)

1шт.

42183D

OIL SEAL

1шт.

43800DA

SEAL

OIL SEAL

1шт.

57563DX

PLUG

2шт.

68963D

WASHER

1шт.

350000R1

WASHER

WASHER)

1шт.

42

65166DD

BOLSTER, upper, assembly (Super "HV") For tractors 501 to 19233 (Composed of -

1шт.

6706DL

BOLSTER (NSS)

1шт.

9503D

BUSHING

1шт.

41096DBR

BUSHING,25.43mm ID x 32.64mm OD x 31.75mm L

1шт.

43805D

BUSHING (NSS)

1шт.

42183D

OIL SEAL

1шт.

43800DA

SEAL

OIL SEAL

1шт.

57563DX

PLUG

2шт.

65163D

WASHER)

1шт.

43

63470DD

CHANNEL, front frame, w/Bracket, R.H.

1шт.

179884

BOLT,Hex, 1/2" - 13 x 1 3/8", Gr 5, Full Thd

SCREW, cap, hex-hd., 1/2-13NC x 1-3/8"

4шт.

179931

BOLT,Hex, 5/18" - 11 x 2"

SCREW, cap, hex-hd., 5/8-11NC x 2" (Super "HV" 1 used) ) For tractors, Serial Range: 501-19233

3шт.

193-12

LOCK WASHER,Ext Tooth, 0.52" ID x 0.89" OD, STL, PLN

WASHER, LOCK, Ext Tooth, 1/2"

4шт.

179929

BOLT,Hex, 5/18" - 11 x 1 3/4"

SCREW, cap, hex-hd., 5/8-11NC x 1-3/4"

1шт.

193-12

LOCK WASHER,Ext Tooth, 0.52" ID x 0.89" OD, STL, PLN

WASHER, LOCK, Ext Tooth, 1/2"

4шт.

103325

LOCK WASHER,5/8"

WASHER, LOCK, (Super "HV" 2 used), For tractors 501 to 19233 5/8"

4шт.

44

9362D

SUPPORT, engine front

2шт.

355117R1

SCREW, cap, hex-hd., 1/2NC x 4" (Special)

4шт.

103323

LOCK WASHER,1/2"

WASHER, LOCK, 1/2"

4шт.

45

63469DD

CHANNEL, front frame, w/Bracket, L.H.

1шт.

179884

BOLT,Hex, 1/2" - 13 x 1 3/8", Gr 5, Full Thd

SCREW, cap, hex-hd., 1/2-13NC x 1-3/8"

4шт.

179931

BOLT,Hex, 5/18" - 11 x 2"

SCREW, cap, hex-hd., 5/8-11NC x 2" (Super "HV" 2 used,) ) For tractors, Serial Range: 501-19233

4шт.

103325

LOCK WASHER,5/8"

WASHER, LOCK, (Super "HV" 2 used), For tractors 501 to 19233 5/8"

4шт.

46

109461

LUBE NIPPLE,1/8"-27 x .66 lg

NIPPLE, LUBE, (Upper bolster pivot shaft) (Optional with 119512) 1/8"-27 x .66 lg

1шт.

46

219-36

LUBE NIPPLE,45 Degree Elbow, 1/8" - 27 NPTF

FITTING, lubrication, straight, 1/8" (Upper bolster pivot shaft) (Optional with 109461)

1шт.

47

42183D

OIL SEAL, upper bolster pivot shaft

1шт.

48

360209R11

LEVER, actuating, starting switch rod , For Tractors 19234 up

1шт.

49

360127R11

LEVER, actuating, starting switch rod (13340 up) ) For tractors, Serial Range: 501-19233

1шт.

103373

COTTER PIN,3/32" x 3/4"

Pin, Split (Cotter), 3/32" x 3/4"

1шт.

50

351924R1

BRACKET, starting switch actuator lever (13340 up)

1шт.

425-115

NUT,5/16"-24, G5

hex., 5/16 x 24NF

1шт.

181348

BOLT,Hex, 5/16" - 24 x 2 1/4", Gr 5

SCREW, cap, hex-hd., 5/16 x 24NF x 2-1/4"

1шт.

51

360212R1

BRACKET, choke control For Tractors 19234 up

1шт.

114773

NUT, hex., 7/16-14NC

1шт.

179868

BOLT,Hex, 7/16" - 14 x 2 1/2", Gr 5

SCREW, cap, hex-hd., 7/16-14NC x 2-1/2"

1шт.

103322

LOCK WASHER,7/16"

WASHER, LOCK, 7/16"

1шт.

Выбрано товаров: 137