Запчасти Case 2050M LT BD (86.124.010) - BEAM, DOZER BLADE LT (86) - DOZER

Схема запчастей Case 2050M LT BD - (86.124.010) - BEAM, DOZER BLADE LT (86) - DOZER
6
27
22
35
24
22
29
3
15
38
26
17
19
31
4
11
41
2
13
9
28
19
32
34
8
23
9
21
18
17
23
1
28
28
24
30
14
9
30
41
32
19
26
16
7
22
20
28
34
33
20
12
22
40
23
34
17
19
36
9
1
28
37
9
33
5
17
10
39
19
31
29
2
40
25
19
19
17
18
17
9
3
FIT
1:1
100%

Артикул

Название

Примечание

Количество

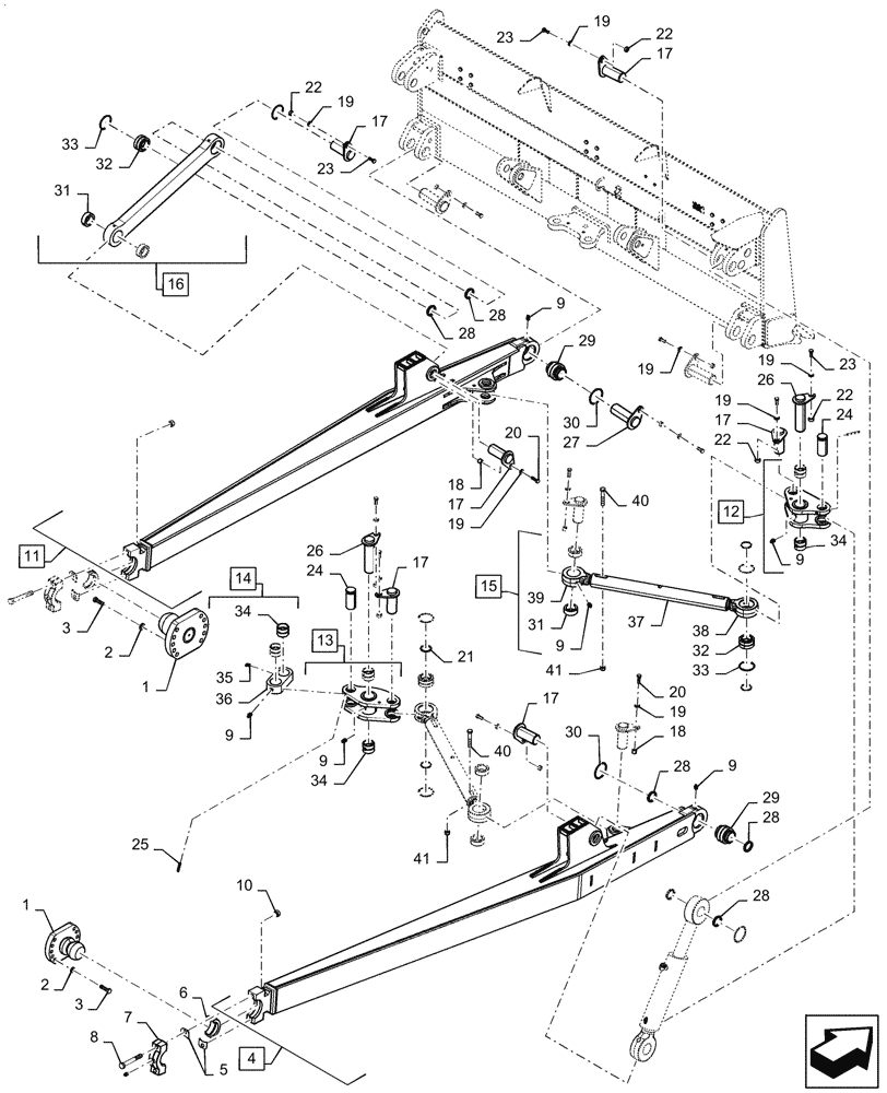
1

47775912

BALL

Frame to Push Beam Mounting Assy

2шт.

2

14497131

WASHER,21mm ID x 37mm OD x 3mm Thk

20шт.

3

47859848

LOCK BOLT

Ball, Mounting Hardware

20шт.

4

47776016

BEAM

RH, Push Beam Arm Assy, Incl 9, 28, 29

1шт.

5

84326095

WASHER

Ball Joint

4шт.

6

84566880

HALF-BUSHING

Rear Bearing Cap to Ball Assy Mounting

2шт.

7

84586518

BEARING CAP

Push Beam Arm to Ball Assy Mounting

2шт.

8

47567994

BOLT,Hex, M24 x 180mm, Cl 10.9

4шт.

9

219-1

LUBE NIPPLE,1/8" - 27 NPTF

11шт.

10

9848973

NUT,M24 x 3.0, Cl 10

4шт.

11

47775920

BEAM

Push Beam Arm Assy, Incl 9, 28, 29

1шт.

12

84550345

LINK

LH, Equistatic, Assy, Incl 9, 34

1шт.

13

84550346

LINK

RH, Equistatic, Assy, Incl 9, 34

1шт.

14

84326261

LINK

Center Blade, Assy, Incl 9, 34, 35, 36

1шт.

15

84547996

ROD

Tie, Push Beam, Assy, Incl 9, 31- 33, 38 - 41

2шт.

16

47809408

TIE-ROD

LH, Push Beam to Blade, Assy, Incl 31 - 33

1шт.

17

84549509

PIN,63.45mm OD x 173mm L

8шт.

18

84538735

SPACER,16.5mm ID x 25.5mm OD x 26mm L

4шт.

19

896-15016

WASHER,17.5mm ID x 34mm OD x 5mm Thk

12шт.

20

47552134

BOLT,Hex, M16 x 50mm, Cl 10.9

4шт.

21

84551039

SPACER,63.6mm ID x 72.5mm OD x 4.5mm L

4шт.

22

84380519

SPACER,16.5mm ID x 25.5mm OD x 12.75mm L

8шт.

23

47535146

BOLT,M16 x 40mm, Cl 10.9

8шт.

24

84327520

PIN,63.4mm OD x 142mm L

2шт.

25

13917770

ROLL PIN,M10 x 90, Coiled

2шт.

26

84550548

PIN,63.45mm OD x 264mm L

2шт.

27

84550551

PIN,69.7mm OD x 218mm L

2шт.

28

84566311

SPACER,63.6mm ID x 72.5mm OD x 11.5mm L

4шт.

29

84552473

BEARING ASSY

Push Beam to Blade Mounting

2шт.

30

87016938

SNAP RING,#433, 4.641", Int

2шт.

31

84547993

BUSHING

90mm OD

4шт.

32

84547992

BUSHING

100mm OD

2шт.

33

370026

SNAP RING,M100 x 3mm Thk, Internal

6шт.

34

84550407

BUSHING,63.5mm ID x 76.5 OD x 59.5mm L

6шт.

35

219-55

LUBE NIPPLE,90 Degree Elbow, 1/8" - 27 NPTF

1шт.

36

84392898

LINK

Center Blade Link

1шт.

37

NSS

NOT SOLD SEPARAT

Tube, Tie Rod, Incl in 15

2шт.

38

NSS

NOT SOLD SEPARAT

Tie Rod End, Spherical, Incl in 15

2шт.

39

NSS

NOT SOLD SEPARAT

Tie Rod End, Straight, Incl in 15

2шт.

40

86511674

BOLT,Hex, M20 x 120mm, Cl 10.9

4шт.

41

86536985

NUT,M20 x 2.5, Cl 10

4шт.

Выбрано товаров: 41