Запчасти Case 2050M WT/LGP (25.400.AR[03]) - SUSPENSION, WIDE, ASN: NFDC20088 (25) - FRONT AXLE SYSTEM

Схема запчастей Case 2050M WT/LGP - (25.400.AR[03]) - SUSPENSION, WIDE, ASN: NFDC20088 (25) - FRONT AXLE SYSTEM
12
13
15
1
4
2
17
6
3
16
9
10
7
8
5
14
11
FIT
1:1
100%

Артикул

Название

Примечание

Количество

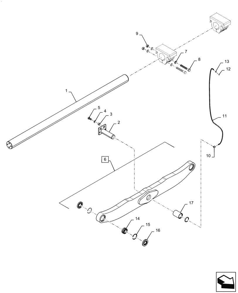
1

84555890

SHAFT

Pivot, 89 Gauge

1шт.

2

47721224

PIN

Center, Equalizer Beam Assembly

1шт.

3

87652972

BUSHING,20.6mm ID x 31.7mm OD 20.6mm H

Center Pin Mounting

2шт.

4

87655047

SPECIAL WASHER,21.25mm ID x 38.10mm OD x 4.20mm Thk

2шт.

5

87563127

BOLT,Hex, M20 x 50mm, Cl 10.9

2шт.

6

47699786

BEAM

Equalizer Beam Assembly Assembly, Incl 14 - 17

1шт.

7

87016608

WASHER,25.8mm ID x 44.5mm OD x 5mm Thk

8шт.

8

47567994

BOLT,Hex, M24 x 180mm, Cl 10.9

4шт.

9

829-1424

NUT,M24, Cl 10

4шт.

10

217-1014

ELBOW,1/8" - 27 Female x 1/8" - 27 Male

1шт.

11

84588575

HOSE ASSY.,4mm ID x 1430mm L, SAE 100R7

1шт.

12

219-8

LUBE NIPPLE,1/4" - 28 NPTF

1шт.

13

76085536

NUT,1/8-27 NPSM

1шт.

14

76041311

SPHERICAL BEARING,60mm ID x 90mm OD x 44mm W

2шт.

15

11062476

SNAP RING,M90, Int

4шт.

16

47699773

SEALING RING,57mm ID x 111mm OD x 14mm H

Equalizer Beam

4шт.

17

47705693

BUSHING,70mm ID x 90mm OD x 125mm L

1шт.

Выбрано товаров: 17