Запчасти Case 1150D (424) - NOISE REDUCTION AND ANTI-RECIRCULATION PADS (09) - CHASSIS/ATTACHMENTS

Схема запчастей Case 1150D - (424) - NOISE REDUCTION AND ANTI-RECIRCULATION PADS (09) - CHASSIS/ATTACHMENTS
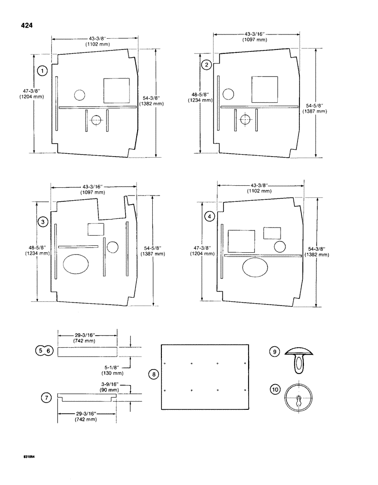
4
7
8
9
10
2
3
1
5
6
FIT
1:1
100%

Артикул

Название

Примечание

Количество

1

REF

INSTRUCTION

PAD - hood, loader models without turbocharger, cut from R30870

1шт.

2

REF

INSTRUCTION

PAD - hood, dozer and drawbar models without turbocharger, cut from R30870

1шт.

3

REF

INSTRUCTION

PAD - hood, loader models with turbocharger, cut from R30870

1шт.

4

REF

INSTRUCTION

PAD - hood, dozer and drawbar models with turbocharger, cut from R30870

1шт.

5

REF

INSTRUCTION

PAD - panel above grille, all models, cut from R30870

1шт.

6

REF

INSTRUCTION

PAD - panel below grille, radiator baffle, dozer and drawbar models, cut from R30870

1шт.

7

REF

INSTRUCTION

PAD - panel below grille, radiator baffle, loader models, cut from R30870

1шт.

8

R48860

PADDING

HEADLINER - ROPS canopy

1шт.

9

151-706

CLIP,Rd 7/8" Hd, 1/4" Hole

RETAINER - ROPS canopy headliner

8шт.

10

R37160

RETAINER

- noise reduction pads

1шт.

R30870

PAD

- bulk, 54" (1372 mm) x 72" (1829 mm) x 1" (25 mm)

1шт.

345-44

ADHESIVE

- for attaching foram pads to metal surfaces, spray can, 19-1/2 fluid ounces

1шт.

Выбрано товаров: 12