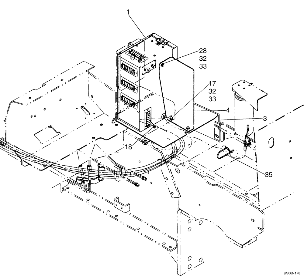
Запчасти Case 1150H (09-23) - CANOPY, ROPS - HEATER UNIT (09) - CHASSIS

Схема запчастей Case 1150H - (09-23) - CANOPY, ROPS - HEATER UNIT (09) - CHASSIS
35
28
3
17
3
33
4
32
18
1
3
FIT
1:1
100%

Артикул

Название

Примечание

Количество

1

364018A1

HEATER

ASSY; Component Parts Not Serviced Seperately

1шт.

3

393613A1

PLATE ASSY.

Floor Rops

1шт.

4

393564A1

BRACKET

Rops Heater

1шт.

17

413-620

BOLT,Hex, 3/8" - 16 x 1-1/4", Gr 5

4шт.

18

160-102

BOLT,Hex, 3/8" - 16 x 1", Gr 8, Full Thd

2шт.

28

413-612

BOLT,Hex, 3/8" - 16 x 3/4", Gr 5

1шт.

32

492-11038

LOCK WASHER,3/8"

6шт.

33

495-11041

WASHER,0.406" ID x 0.812" OD x 0.065" W

0.406 x 0.812 x .065 inch

4шт.

35

L18331

CABLE TIE,375.9mm L, Nylon

CABLE STRAP

2шт.

Выбрано товаров: 9