Запчасти Case 1150H_IND (09-27) - CAB - GLASS (09) - CHASSIS/ATTACHMENTS

Схема запчастей Case 1150H_IND - (09-27) - CAB - GLASS (09) - CHASSIS/ATTACHMENTS
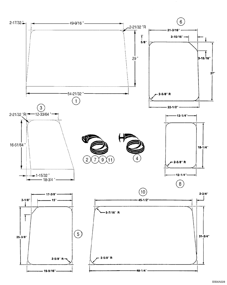
10
8
1
6
11
9
3
7
2
4
5
FIT
1:1
100%

Артикул

Название

Примечание

Количество

United States Dimensions

1шт.

1

374406A1

GLASS,CAB

Front Windshield

1шт.

2

374408A1

SEAL

5491 mm (216-3/16 inch), Front Windshield, Cut From S118468X

1шт.

3

374407A1

GLASS,CAB

Lower Front

2шт.

4

374409A1

SEAL, GLASS

443 mm (17-7/16 in), Lower Front; If Used

2шт.

4

345-158

SEALANT

ML DOW 737 RTV; If Used

1шт.

5

R53196

Upper Door Window

2шт.

6

R53198

Rear Side Window

2шт.

7

R51706

2420 mm (95-1/4 in), Upper Door Window, Rear Side Window, Cut From S118468X

4шт.

8

R53197

Lower Door Window

2шт.

9

R51707

1565 mm (61-5/8 in), Lower Door Window, Cut From S118468X

2шт.

10

R53199

Rear Window

1шт.

11

R51709

4055 mm (159-11/16 in), Rear Window, Cut From S118468X

1шт.

Выбрано товаров: 13