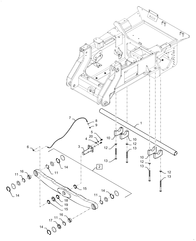
Запчасти Case 1650M WT/LGP (48.110.AA[04]) - SUSPENSION - WIDE (48) - TRACKS & TRACK SUSPENSION

Схема запчастей Case 1650M WT/LGP - (48.110.AA[04]) - SUSPENSION - WIDE (48) - TRACKS & TRACK SUSPENSION
14
14
1
12
13
5
12
13
8
16
7
3
13
12
10
17
14
16
15
15
13
6
11
2
11
10
20
19
10
12
14
11
18
4
11
9
FIT
1:1
100%

Артикул

Название

Примечание

Количество

1

84558082

SHAFT

Pivot, 86 Gauge

1шт.

2

47462028

BEAM

Equalizer, Incl 11, 14 - 19

1шт.

3

84301353

SPECIAL PIN

Center

1шт.

4

87652972

BUSHING,20.6mm ID x 31.7mm OD 20.6mm H

2шт.

5

87563127

BOLT,Hex, M20 x 50mm, Cl 10.9

Lock

2шт.

6

217-1014

ELBOW,1/8" - 27 Female x 1/8" - 27 Male

1шт.

7

84588575

HOSE ASSY.,4mm ID x 1430mm L, SAE 100R7

Grease

1шт.

8

76085536

NUT,1/8-27 NPSM

Lube Hose

1шт.

9

219-8

LUBE NIPPLE,1/4" - 28 NPTF

1шт.

10

47548945

BEARING CAP

Pivot Shaft

4шт.

11

11062476

SNAP RING,M90, Int

4шт.

12

87016610

WASHER,25.8mm ID x 44.5mm OD x 5mm Thk

8шт.

13

87316948

BOLT,Hex, M24 x 290mm, Cl 10.9

8шт.

14

11075676

SNAP RING,M115, Int

Regular

4шт.

15

87344647

SEALING RING

2шт.

16

87381270

SPHERICAL BEARING,60mm ID x 90mm OD x 44mm W

Radial Shperical

2шт.

17

47411768

BUSHING,70.22mm ID x 90mm OD x 44.5mm L

Center Pin

2шт.

18

47462151

SEAL

Center Pin Grease

2шт.

19

84340877

OIL SEAL

Equalizer Bearing

4шт.

20

87655047

SPECIAL WASHER,21.25mm ID x 38.10mm OD x 4.20mm Thk

2шт.

Выбрано товаров: 20