Запчасти Case 855D (9-064) - NOISE REDUCTION PADS (09) - CHASSIS/ATTACHMENTS

Схема запчастей Case 855D - (9-064) - NOISE REDUCTION PADS (09) - CHASSIS/ATTACHMENTS
11
12
15
14
13
17
16
FIT
1:1
100%

Артикул

Название

Примечание

Количество

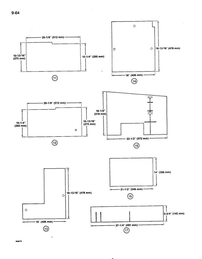
11

REF

INSTRUCTION

PAD - left-hand floor plate, cut from R30870, see below

1шт.

12

REF

INSTRUCTION

PAD - right-hand floor plate, cut from R30870, see below

1шт.

13

REF

INSTRUCTION

PAD - step plates, loader models only, cut from R30870, see below

2шт.

14

REF

INSTRUCTION

PAD - step plates, dozer and drawbar models only, cut from R30870, see below

2шт.

15

REF

INSTRUCTION

PAD - fuel tank, front, cut from R30870, see below

1шт.

16

REF

INSTRUCTION

PAD - fuel tank, right-hand side, cut from R30870, see below

1шт.

17

REF

INSTRUCTION

PAD - on plate behind instrument panel, cut from R30870, see below

1шт.

R30870

PAD

bulk, 54" (1372 mm) x 72" (1829 mm) x 1" (25 mm)

1шт.

345-44

ADHESIVE

for attaching rubber pads to metal surfaces, spray can, 19-1/2 fluid ounces

1шт.

Выбрано товаров: 9