Запчасти Case 750H (09-29) - CAB GLASS (09) - CHASSIS

Схема запчастей Case 750H - (09-29) - CAB GLASS (09) - CHASSIS
8
3
9
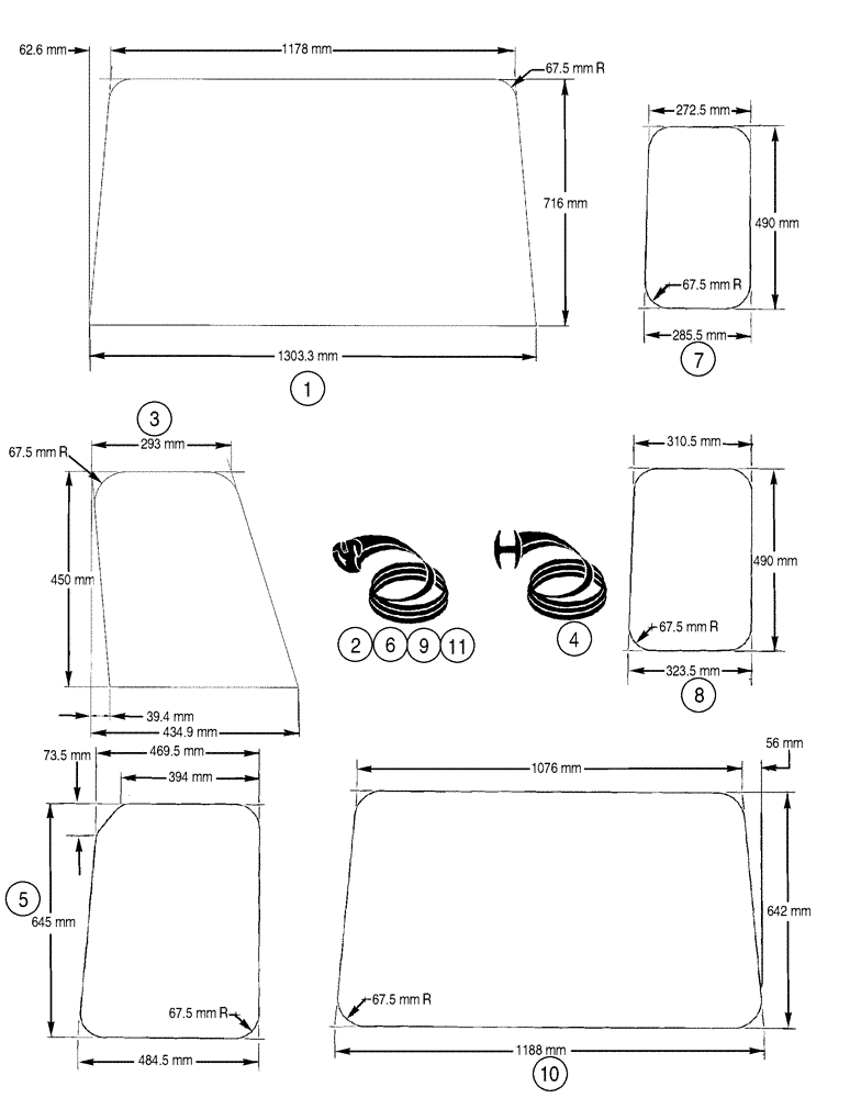
2
4
6
7
1
5
10
11
FIT
1:1
100%

Артикул

Название

Примечание

Количество

Metric Dimensions

1шт.

1

373289A1

GLASS

Front Windshield

1шт.

2

373291A1

SEAL

5380 mm (211-13/16 in), Front Windshield, Cut From, S118468X

1шт.

3

373290A1

GLASS

Lower Front

2шт.

4

373292A1

SEAL, GLASS

395 mm (15-9/16 in), Lower Front

2шт.

5

R51886

Side Windows

4шт.

6

R51889

2135 mm (84-1/16 in), Side Windows, Cut From S118468X

4шт.

7

R51884

Lower Door, Right Hand

1шт.

8

R51885

Lower Door, Left Hand

1шт.

Note:See Note pertaining to glass on the following page.

1шт.

Nota: Voir la nota se rapportant aux vitres page suivante.

1шт.

Nota: Ver la Nota relacionada con el vidrio en la siguiente página.

1шт.

Metric Dimensions

1шт.

Continued From Previous Page

1шт.

9

R51707

1565 mm (61-5/8 in), Lower Door, Cut From S118468X

2шт.

10

R51887

Rear Window

1шт.

11

R51890

3460 mm (136-1/4 in), Rear Window, Cut From S118468X

1шт.

Note:All Glass to be obtained from local source and must be 6 mm (7/32 in) thick laminated safety glass (as described in S.A.E. J674), heat absorbing and with 70 to 75 percent light transmission. Sharp edges due to cutting must be finished to a number 4

1шт.

Nota: Les vitres doivent provenir de sources locales, elle doivent avoir une épaisseur de 6 mm (7/32 in) en verre feuilleté (Selon la norme S.A.E. J674), anticalorique et 70 à 75 % transparentes. Les bords découpés tranchants doivent être ébavurés au niv

1шт.

Nota: Todo el vidrio debe obtenerse de una fuente local y debe ser de 6 mm (7/32 in.) de grosor, laminado (como se describe en S.A.E. J674), con absorción de calor y con una transmisión de luz del 70 al 75 por ciento. Los bordes afilados por cortes deben

1шт.

Выбрано товаров: 20