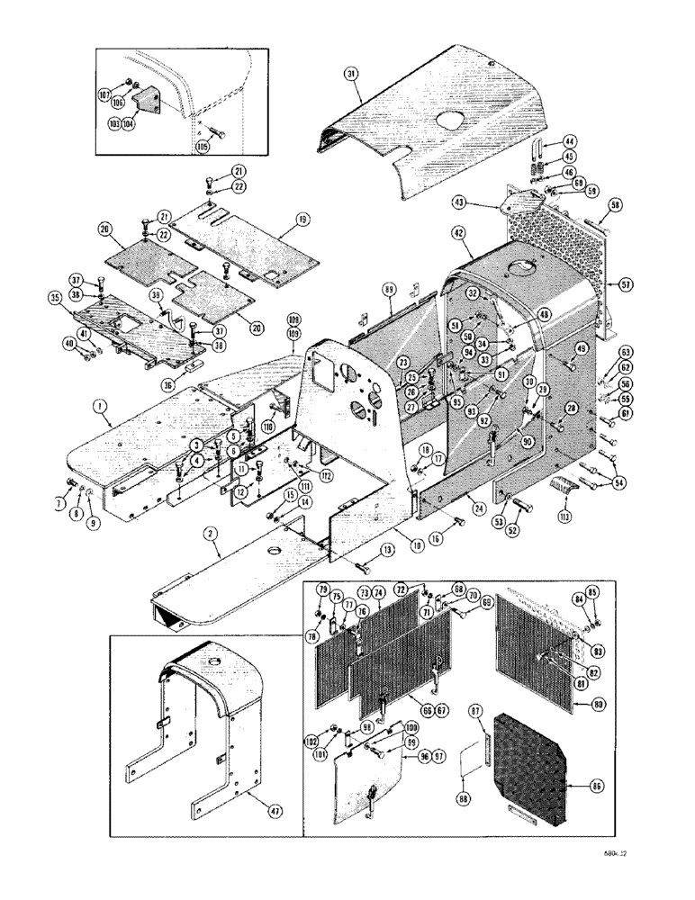
Запчасти Case 1000D (190) - HOOD, SHROUD SIDE PLATES, COWL, AND DASH (05) - UPPERSTRUCTURE CHASSIS

Схема запчастей Case 1000D - (190) - HOOD, SHROUD SIDE PLATES, COWL, AND DASH (05) - UPPERSTRUCTURE CHASSIS
FIT
1:1
100%

Артикул

Название

Примечание

Количество

1

R18196

FENDER - L.H.

1шт.

2

R18199

FENDER - R.H.

1шт.

3

14-828

BOLT,Hex, 1/2" - 20 x 1-3/4", Gr 5

HHCS - 1/2" - 20 NF x 1-3/4" (R18196 and R18199 mounting)

4шт.

4

92-8

LOCK WASHER,1/2"

4шт.

5

14-832

BOLT,Hex, 1/2" - 20 x 2", Gr 5

HHCS - 1/2" - 20 NF x 2" (R18196 and R18199 mounting)

2шт.

6

92-8

LOCK WASHER,1/2"

2шт.

7

14-1024

BOLT,Hex, 5/8" - 18 x 1-1/2", Gr 5

(R18196 and R18199 mounting) Used before tractor S/N 7104672 Hex, 5/8"-18 x 1 1/2", G5

6шт.

13-1024

BOLT,Hex, 5/8" - 11 x 1-1/2", Gr 5, Full Thd

(R18196 and R18199 mounting) Used on tractor S/N 7104672 and after Hex, 5/8"-11 x 1 1/2", G5, Full Thd

6шт.

8

92-10

LOCK WASHER,5/8"

WASHER, LOCK, 5/8"

6шт.

9

195-41

WASHER,5/8"

6шт.

10

R18651

COWL AND DASH

1шт.

11

14-832

BOLT,Hex, 1/2" - 20 x 2", Gr 5

HHCS - 1/2" - 20 NF x 2" (R18651 mounting)

4шт.

12

92-8

LOCK WASHER,1/2"

4шт.

13

14-828

BOLT,Hex, 1/2" - 20 x 1-3/4", Gr 5

HHCS - 1/2" - 20 NF x 1-3/4" (R18651 mounting)

2шт.

14

92-8

LOCK WASHER,1/2"

2шт.

15

25-118

NUT,1/2"-20, G5

- hex. (1/2" - 20 NF)

2шт.

16

14-816

BOLT,Hex, 1/2" - 20 x 1", Gr 5

HHCS - 1/2" - 20 NF x 1" (R18651 mounting)

2шт.

17

92-8

LOCK WASHER,1/2"

2шт.

18

25-118

NUT,1/2"-20, G5

- hex. (1/2" - 20 NF)

2шт.

19

R18251

PLATE - floor, front

1шт.

20

R18729

PLATE - floor, rear

2шт.

21

14-816

BOLT,Hex, 1/2" - 20 x 1", Gr 5

HHCS - 1/2" - 20 NF x 1" (R18251 and R18729 mounting)

10шт.

22

92-8

LOCK WASHER,1/2"

10шт.

23

R21893

PANEL - engine side shield, L.H.

1шт.

24

R21894

PANEL - engine side shield, R.H.

1шт.

25

14-824

BOLT,Hex, 1/2" - 20 x 1-1/2", Gr 5

HHCS - 1/2" - 20 NF x 1-1/2" (Front hole)

2шт.

14-836

BOLT,Hex, 1/2" - 20 x 2-1/4", Gr 5

HHCS - 1/2" - 20 NF x 2-1/4" (Rear hole)

2шт.

26

92-8

LOCK WASHER,1/2"

4шт.

27

95-8

WASHER,1/2"

standard wrot (9/16" I.D. x 1-3/8" O.D. x 7/64" thick) 1/2"

4шт.

28

14-828

BOLT,Hex, 1/2" - 20 x 1-3/4", Gr 5

HHCS - 1/2" - 20 NF x 1-3/4" (R21893 and R21894 mounting)

2шт.

29

92-8

LOCK WASHER,1/2"

2шт.

30

25-118

NUT,1/2"-20, G5

- hex. (1/2" - 20 NF)

2шт.

31

R20475

HOOD - engine (Used before tractor serial no. 7104820)

1шт.

D32042

HOOD - engine (Used on tractor serial no. 7104820 and after)

1шт.

32

R17778

BOLT (SPREADER)

BOLT - hood latch (Special)

4шт.

33

R17777

NUT

- cone

4шт.

34

25-146

JAM NUT,Jam, 3/8"-16, G5

- hex., jam (3/8" - 16 NC)

4шт.

35

R22279

PLATE - valve support (Used before tractor serial no. 7104771)

1шт.

D31685

PLATE - valve support (Used on tractor serial no. 7104771 and after)

1шт.

36

R14526

SPACER - plate

2шт.

37

14-832

BOLT,Hex, 1/2" - 20 x 2", Gr 5

HHCS - 1/2" - 20 NF x 2" (R22279 and R14526 mounting)

2шт.

38

92-8

LOCK WASHER,1/2"

2шт.

39

R18622

RING - safety (When stock is exhausted, use R14116 ring for service)

1шт.

40

25-118

NUT,1/2"-20, G5

- hex. (1/2" - 20 NF)

4шт.

41

92-8

LOCK WASHER,1/2"

2шт.

42

D29676

GUARD ASSEMBLY - radiator, drawbar models only (Used on tractor serial no. 7104001 and after)

1шт.

D29673

GUARD ASSEMBLY - radiator, dozer models only (Used on tractor serial no. 7104001 and after)

1шт.

D30109

GUARD ASSEMBLY - radiator, loader models only (Used on tractor serial no. 7104001 and after)

1шт.

43

D29691

LID - radiator (Used on tractor serial no. 7104001 and after)

1шт.

44

D29688

U-BOLT

"U" BOLT - radiator lid (Used on tractor serial no. 7104001 and after)

1шт.

45

23098

SPRING

- radiator lid (Used on tractor serial no. 7104001 and after)

2шт.

46

131-365

LOCK NUT

NUT - lock (5/16" - 24 NF) R19573 mounting

2шт.

47

R21900

GUARD ASSEMBLY - radiator, drawbar models only (Used before tractor serial no. 7104001)

1шт.

R20470

GUARD ASSEMBLY - radiator, dozer models only (Used before tractor serial no. 7104001)

1шт.

D30108

GUARD ASSEMBLY - radiator, loader models only (Used before tractor serial no. 7104001)

1шт.

48

R20874

ANGLE - hood latch (Used before tractor serial no. 7104820)

2шт.

49

14-1028

BOLT,Hex, 5/8" - 18 x 1-3/4", Gr 5

(R20874 mounting) Hex, 5/8"-18 x 1 3/4", G5

2шт.

50

92-10

LOCK WASHER,5/8"

WASHER, LOCK, 5/8"

2шт.

51

25-110

POSTER

NUT - hex. (5/8" - 18 NF)

2шт.

52

14-1644

BOLT,Hex, 1" - 14 x 2-3/4", Gr 5, Full Thd

HHCS - 1" - 14 NF x 2-3/4" (Radiator guard mounting)

2шт.

53

92-16

LOCK WASHER,1"

WASHER, LOCK, 1"

2шт.

54

14-1244

BOLT,Hex, 3/4" - 16 x 2-3/4", Gr 5

HHCS - 3/4" - 16 NF x 2-3/4" (Radiator guard mounting)

8шт.

55

92-12

LOCK WASHER,3/4"

WASHER, LOCK, 3/4"

8шт.

56

25-1112

NUT,3/4"-16, G5

- hex. (3/4" - 16 NF)

8шт.

57

R20461

GRILLE - radiator

1шт.

58

14-1060

BOLT,Hex, 5/8" - 18 x 3-3/4", Gr 5

HHCS - 5/8" - 18 NF x 3-3/4" (R20461 mounting)

1шт.

59

92-10

LOCK WASHER,5/8"

WASHER, LOCK, 5/8"

1шт.

60

25-1110

NUT,5/8"-18, G5

- hex. (5/8" - 18 NF)

1шт.

61

14-1032

BOLT,Hex, 5/8" - 18 x 2", Gr 5

(R20461 mounting) Hex, 5/8"-18 x 2", G5

2шт.

62

92-10

LOCK WASHER,5/8"

WASHER, LOCK, 5/8"

2шт.

63

25-1110

NUT,5/8"-18, G5

- hex. (5/8" - 18 NF)

2шт.

64

A11320

PLATE

NAME PLATE - Case (Not illustrated)

1шт.

65

A11319

X

CLIP - retainer (A11320 mounting) Not illustrated

2шт.

R3863

BRUSH SCREEN INSTALLATION - engine, dozer models only (Optional equipment) Machinery item

1шт.

66

R19583

SCREEN - brush, L.H.

1шт.

Includes either 1 or 2 P/N R12435 latches.

1шт.

67

R19584

SCREEN - brush, R.H.

1шт.

Includes either 1 or 2 P/N R12435 latches.

1шт.

68

R12427

CATCH

HOOK - screen

2шт.

69

14-612

BOLT,Hex, 3/8" - 24 x 3/4", Gr 5, Full Thd

(R12427 mounting) Hex, 3/8"-24 x 3/4", G5, Full Thd

4шт.

70

195-25

WASHER,3/8"

- plain (13/32" I.D. x 13/16" O.D. x 1/16" thick)

4шт.

71

92-6

LOCK WASHER,3/8"

4шт.

72

25-116

NUT,Hex, 3/8"-24, G5

- hex. (3/8" - 24 NF)

4шт.

R4075

BRUSH SCREEN INSTALLATION - engine, drawbar models only (Optional equipment) Machinery item

1шт.

73

R20519

SCREEN - brush, L.H.

1шт.

Includes either 1 or 2 P/N R12435 latches.

1шт.

74

R20520

SCREEN - brush, R.H.

1шт.

Includes either 1 or 2 P/N R12435 latches.

1шт.

75

R12427

CATCH

HOOK - screen

4шт.

76

14-612

BOLT,Hex, 3/8" - 24 x 3/4", Gr 5, Full Thd

(R12427 mounting) Hex, 3/8"-24 x 3/4", G5, Full Thd

4шт.

77

195-25

WASHER,3/8"

- plain (13/32" I.D. x 13/16" O.D. x 1/16" thick)

4шт.

78

92-6

LOCK WASHER,3/8"

4шт.

79

25-116

NUT,Hex, 3/8"-24, G5

- hex. (3/8" - 24 NF)

4шт.

80

R19585

SCREEN - brush

1шт.

81

14-624

BOLT,Hex, 3/8" - 24 x 1-1/2", Gr 5

HHCS - 3/8" - 24 NF x 1-1/2"

6шт.

82

195-28

WASHER,3/8"

- plain (7/16" I.D. x 1- O.D. x 5/64" thick) 3/8"

12шт.

83

R20553

WASHER

SPACER - brush screen

6шт.

84

92-6

LOCK WASHER,3/8"

6шт.

85

25-116

NUT,Hex, 3/8"-24, G5

- hex. (3/8" - 24 NF)

6шт.

86

R19573

SCREEN - radiator anti-sand blast (For use with pusher type fans)

1шт.

87

R14077

STRAP

- radiator guard

4шт.

88

R14078

ELECTRICAL WIRE

WIRE - tie (D29688 mounting)

2шт.

89

R23161

SHIELD - side, L.H. (11 degree bend) Loader models only - standard equipment (Late production)

1шт.

Includes either 1 or 2 P/N R12435 latches.

1шт.

90

R23162

SHIELD - side, R.H. (11 degree bend) Loader models only - standard equipment (Late production)

1шт.

Includes either 1 or 2 P/N R12435 latches.

1шт.

91

R12427

CATCH

HOOK - shield

4шт.

92

14-612

BOLT,Hex, 3/8" - 24 x 3/4", Gr 5, Full Thd

(R12427 mounting) Hex, 3/8"-24 x 3/4", G5, Full Thd

4шт.

93

195-25

WASHER,3/8"

- plain (13/32" I.D. x 13/16" O.D. x 1/16" thick)

4шт.

94

92-6

LOCK WASHER,3/8"

4шт.

95

25-116

NUT,Hex, 3/8"-24, G5

- hex. (3/8" - 24 NF)

4шт.

96

R18901

SHIELD - side, L.H. (5 degree bend) Loader models only - standard equipment (Early production) Order R23161 for service

1шт.

Includes either 1 or 2 P/N R12435 latches.

1шт.

97

R18902

SHIELD - side, R.H. (5 degree bend) Loader models only - standard equipment (Early production) Order R23162 for service

1шт.

Includes either 1 or 2 P/N R12435 latches.

1шт.

98

R12427

CATCH

HOOK - shield

4шт.

99

14-612

BOLT,Hex, 3/8" - 24 x 3/4", Gr 5, Full Thd

(R12427 mounting) Hex, 3/8"-24 x 3/4", G5, Full Thd

4шт.

100

195-25

WASHER,3/8"

- plain (13/32" I.D. x 13/16" O.D. x 1/16" thick)

4шт.

101

92-6

LOCK WASHER,3/8"

4шт.

102

25-116

NUT,Hex, 3/8"-24, G5

- hex. (3/8" - 24 NF)

4шт.

103

D30331

ANGLE - hood latch, R.H. (Used on tractor serial no. 7104820 and after)

1шт.

104

D30332

ANGLE

- hood latch, L.H. (Used on tractor serial no. 7104820 and after)

1шт.

105

13-828

BOLT,Hex, 1/2" - 13 x 1-3/4", Gr 5

HHCS - 1/2" - 13 NC x 1-3/4" (D30331 and D30332 mounting)

4шт.

106

92-8

LOCK WASHER,1/2"

4шт.

107

25-108

NUT,1/2"-13, G5

- hex. (1/2" - 13 NC)

4шт.

108

D32615

PLATE - step, L.H.

1шт.

109

D32616

PLATE - step, R.H.

1шт.

110

13-816

BOLT,Hex, 1/2" - 13 x 1", Gr 5, Full Thd

(D32615 and D32616 mounting) Hex, 1/2"-13 x 1", G5, Full Thd

4шт.

111

92-8

LOCK WASHER,1/2"

4шт.

112

25-108

NUT,1/2"-13, G5

- hex. (1/2" - 13 NC)

4шт.

113

R22135

STOP BLOCK - loader models only

2шт.

Выбрано товаров: 131