Запчасти Case 9007B (8-036) - HYDRAULIC CIRCUIT - PILOT, CONTROL VALVE (08) - HYDRAULICS

Схема запчастей Case 9007B - (8-036) - HYDRAULIC CIRCUIT - PILOT, CONTROL VALVE (08) - HYDRAULICS
FIT
1:1
100%

Артикул

Название

Примечание

Количество

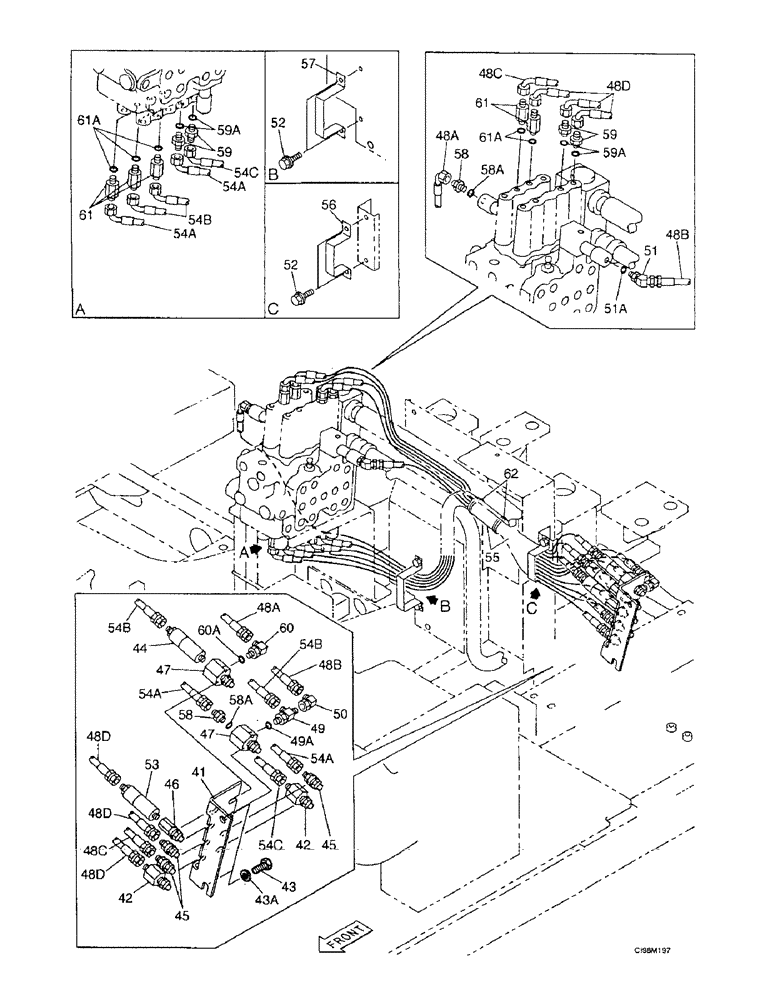
41

167702A1

BRACKET

Mount

1шт.

42

167852A1

ADAPTER

Adapter

2шт.

43

627-12025

BOLT,Hex, M12 x 1.75 x 25mm, Cl 10.9, Full Thd

2шт.

43a

896-15012

WASHER,13.5mm ID x 28mm OD x 4mm Thk

13.5 x 28 x 4 mm

2шт.

44

167886A1

VALVE, CUSHION

Poppet

1шт.

45

159481A1

ADAPTER

Connector, Bulkhead

5шт.

46

167853A1

ADAPTER

Connector, Bulkhead

1шт.

47

167662A1

FITTING

Connector, Bulkhead

2шт.

48a

167870A1

HOSE

1970 mm (77-5/8 in)

1шт.

48b

167867A1

HYDRAULIC HOSE,6.30 mm ID x 800.00 mm

1шт.

48c

167878A1

HOSE

1050 mm (41-3/8 in)

1шт.

48d

167877A1

HOSE

1000 mm (39-3/8 in)

3шт.

49

159497A1

TEE

Consists Of Ref. Number : 49A

1шт.

49a

154467A1

O-RING,10.8mm ID x 2.4mm Width

1шт.

50

163814A1

ELBOW

1шт.

51

150933A1

ELBOW

Consists Of Ref. Number : 51A

1шт.

51a

154467A1

O-RING,10.8mm ID x 2.4mm Width

4шт.

52

627-8020

BOLT,Hex, M8 x 1.25 x 20mm, Cl 10.9, Full Thd

1шт.

53

167887A1

VALVE, CUSHION

Poppet, Valve

1шт.

54a

167883A1

HOSE

1450 mm (57-1/8 in)

2шт.

54b

167879A1

HOSE

1400 mm (55-1/8 in)

2шт.

54c

167882A1

HOSE

1250 mm (49-1/4 in)

1шт.

55

163160A1

SHEET

Sleeve, Rubber

1шт.

56

159033A1

CLAMP

Clip, Mounting

1шт.

57

159040A1

CLAMP

Clip, Mounting

1шт.

58

152127A1

HYD CONNECTOR,1/4" NPT O-Ring x 1/4" NPT

Union, Consists Of Ref. Number : 58A

2шт.

58a

154467A1

O-RING,10.8mm ID x 2.4mm Width

1шт.

59

153378A1

ADAPTER

Union, Consists Of Ref. Number : 59A

4шт.

59a

154475A1

O-RING

1шт.

60

150913A1

ELBOW,90 Degree, 1/4" O-Ring x 1/4"

Consists Of Ref. Number : 60A

1шт.

60a

154467A1

O-RING,10.8mm ID x 2.4mm Width

1шт.

61

167650A1

FITTING

Adapter, Consists Of Ref. Number : 61A

5шт.

61a

154475A1

O-RING

1шт.

62

150071A1

MOUNTING CLIP

1шт.

Выбрано товаров: 34