Запчасти Case 9050B (9-028) - UPPER STRUCTURE, COVERS AND INSULATION, P.I.N. EAC0501196 AND AFTER (09) - CHASSIS/ATTACHMENTS

Схема запчастей Case 9050B - (9-028) - UPPER STRUCTURE, COVERS AND INSULATION, P.I.N. EAC0501196 AND AFTER (09) - CHASSIS/ATTACHMENTS
14
36
3
4
29
9
23
31
6
9
21
2
20
32
28
24
34
11
25
13
22
30
10
8
37
26
17
27
12
5
18
19
1
38
33
35
15
16
7
FIT
1:1
100%

Артикул

Название

Примечание

Количество

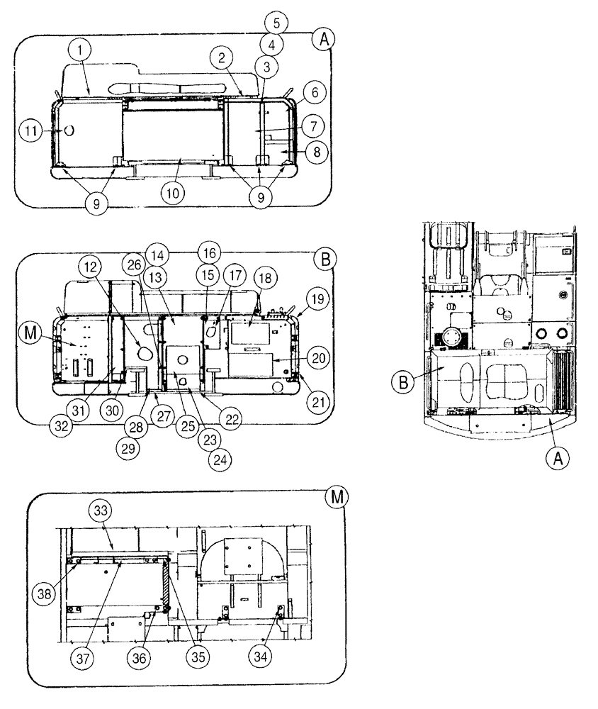
1

173148A1

FILLING STRIP

weather, rubber

1шт.

2

173149A1

FILLING STRIP

weather, rubber

1шт.

3

173791A1

FRAME

right-hand rear

1шт.

4

152718A1

BOLT,Spcl, Hex Wshr, M12 x 25mm, Cl 10.9

special

1шт.

5

173834A1

SEALING STRIP

STRIP - weather, rubber

1шт.

6

173283A1

NOISE PROTECTION

INSULATION - acoustic

1шт.

7

173285A1

NOISE PROTECTION

INSULATION - acoustic

1шт.

8

173284A1

NOISE PROTECTION

INSULATION - acoustic

1шт.

9

162278A1

BOLT

flange head, special

1шт.

10

173290A1

NOISE PROTECTION

INSULATION - acoustic

1шт.

11

173830A1

NOISE PROTECTION

INSULATION - acoustic

1шт.

12

173810A1

PANEL

metal

8шт.

13

173807A1

PANEL

metal

8шт.

14

152718A1

BOLT,Spcl, Hex Wshr, M12 x 25mm, Cl 10.9

special

8шт.

15

173811A1

NOISE PROTECTION

INSULATION - acoustic

8шт.

16

152718A1

BOLT,Spcl, Hex Wshr, M12 x 25mm, Cl 10.9

special

2шт.

17

173809A1

PANEL

metal

2шт.

18

173288A1

NOISE PROTECTION

INSULATION - acoustic

1шт.

19

170494A1

SEAL

STRIP - weather, rubber

2шт.

20

173289A1

NOISE PROTECTION

INSULATION - acoustic

2шт.

21

162278A1

BOLT

flange head, special

2шт.

22

173815A1

NOISE PROTECTION

INSULATION - acoustic

4шт.

23

173814A1

COVER

center

4шт.

24

152718A1

BOLT,Spcl, Hex Wshr, M12 x 25mm, Cl 10.9

special

4шт.

25

173813A1

NOISE PROTECTION

INSULATION - acoustic

2шт.

26

173808A1

PANEL

metal

2шт.

27

173817A1

NOISE PROTECTION

INSULATION - acoustic

4шт.

28

173812A1

NOISE PROTECTION

INSULATION - acoustic

4шт.

29

152718A1

BOLT,Spcl, Hex Wshr, M12 x 25mm, Cl 10.9

special

4шт.

30

173816A1

NOISE PROTECTION

INSULATION - acoustic

1шт.

31

173823A1

PANEL

foam

2шт.

32

152718A1

BOLT,Spcl, Hex Wshr, M12 x 25mm, Cl 10.9

special

4шт.

33

171236A1

NOISE PROTECTION

INSULATION - acoustic

4шт.

34

162278A1

BOLT

flange head, special

4шт.

35

171268A1

SEAL

STRIP - weather, rubber

2шт.

36

162278A1

BOLT

flange head, special

1шт.

37

171227A1

SEAL

STRIP - weather, rubber

1шт.

38

162278A1

BOLT

flange head, special

2шт.

Выбрано товаров: 38