Запчасти Case 9050B (2-014) - COLD START SYSTEM (02) - ENGINE

Схема запчастей Case 9050B - (2-014) - COLD START SYSTEM (02) - ENGINE
6
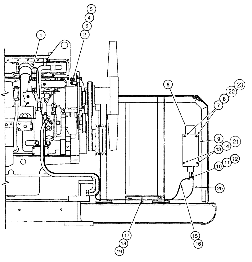
1
16
8
5
22
12
15
9
7
11
10
17
4
20
23
13
3
21
18
14
2
19
FIT
1:1
100%

Артикул

Название

Примечание

Количество

1

170934A1

TUBE

NOZZLE ASSEMBLY - cold start, component parts not serviced separately

1шт.

2

173447A1

SWITCH

temperature, circuit breaking, uses existing engine hardware

1шт.

3

173226A1

CONNECTOR, ELEC

CONNECTOR special

1шт.

4

173227A1

TERMINAL CONNECTOR

electrical

2шт.

5

170937A1

SEAL

tube

2шт.

6

170935A1

START SPRAY FLUID

CONTAINER - ether

1шт.

7

827-10040

BOLT,Hex, M10 x 1.5 x 40mm, Cl 10.9, Full Thd

2шт.

8

170909A1

WASHER

special

2шт.

9

173445A1

VALVE

ASSEMBLY - solenoid, ether start, component parts not serviced separately

1шт.

10

173226A1

CONNECTOR, ELEC

CONNECTOR special

1шт.

11

173227A1

TERMINAL CONNECTOR

electrical

2шт.

12

170937A1

SEAL

tube

2шт.

13

627-12045

BOLT,Hex, M12 x 1.75 x 45mm, Cl 10.9, Full Thd

2шт.

14

895-11012

WASHER,13.5mm ID x 24mm OD x 2.5mm Thk

Flat

3шт.

15

170933A1

HOSE,3.17 mm ID x 3657.60 mm

3657 mm (144 inch) long, valve assembly to nozzle assembly

1шт.

16

170938A1

ELBOW

90 degree, compression

1шт.

17

150860A1

COLLAR

BRACKET - support

5шт.

18

840-168

SCREW,Pan, M6 x 1 x 8mm, Cl 4.8

5шт.

19

170308A1

BAND

STRAP - tie

5шт.

20

231959A1

DIODE

electrical

1шт.

21

829-1412

NUT,M12, Cl 10.9

2шт.

23

829-1410

NUT,M10 x 1.5, Cl 10.9

2шт.

22

895-11010

WASHER,11mm ID x 20mm OD x 2mm Thk

2шт.

Выбрано товаров: 23