Запчасти Case 9060B (8-196) - DOUBLE ACTION AUXILIARY EQUIPMENT OPTION, 153296A1 HOLDING (08) - HYDRAULICS

Схема запчастей Case 9060B - (8-196) - DOUBLE ACTION AUXILIARY EQUIPMENT OPTION, 153296A1 HOLDING (08) - HYDRAULICS
30
21
6
23
5
4
22
20
9
26
10
14
28
16
29
20
7
19
11
1
13
24
12
3
18
15
8
21
25
2
17
27
FIT
1:1
100%

Артикул

Название

Примечание

Количество

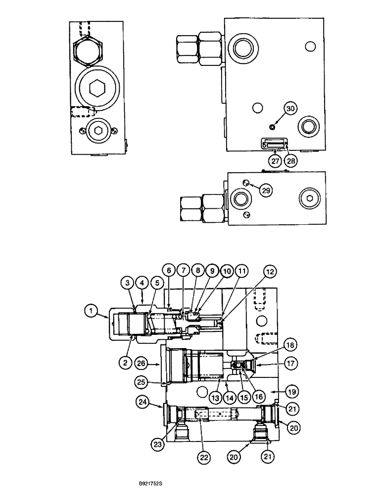
153296A1

VALVE

ASSEMBLY - holding, Includes: Ref. 1 - 30

1шт.

155849A1

VALVE

ASSEMBLY - relief, Includes: Ref. 1 - 12

1шт.

1

156205A1

NUT

CAP - valve

1шт.

2

NSS

NOT SOLD SEPARAT

FITTING - adjuster, spring tension

1шт.

3

155693A1

GASKET

GASKET - cap, to valve body

1шт.

4

NSS

NOT SOLD SEPARAT

BODY - relief

1шт.

5

NSS

NOT SOLD SEPARAT

SPRING - relief

1шт.

6

155195A1

O-RING

- relief body, outer

1шт.

7

NSS

NOT SOLD SEPARAT

POPPET - relief valve

1шт.

8

NSS

NOT SOLD SEPARAT

BODY - relief valve

1шт.

9

155227A1

BACK-UP RING

RING - backup, relief body seal, inner

1шт.

10

155226A1

O-RING

- relief body, inner

1шт.

11

NSS

NOT SOLD SEPARAT

PLUG - orifice

1шт.

12

NSS

NOT SOLD SEPARAT

FILTER - relief

1шт.

13

NSS

NOT SOLD SEPARAT

SPRING - plunger

1шт.

14

NSS

NOT SOLD SEPARAT

PLUNGER - boom hold valve

1шт.

15

NSS

NOT SOLD SEPARAT

POPPET - relief

1шт.

16

NSS

NOT SOLD SEPARAT

SPRING - poppet

1шт.

17

155510A1

PLUG

- port, orifice

1шт.

18

154455A1

O-RING

- orifice plug

1шт.

19

NSS

NOT SOLD SEPARAT

HOUSING - boom hold valve

1шт.

20

155515A1

PLUG

- port

2шт.

21

154475A1

O-RING

- plug

3шт.

22

NSS

NOT SOLD SEPARAT

SPOOL - boom hold valve

1шт.

23

NSS

NOT SOLD SEPARAT

SPRING - valve spool

1шт.

24

155514A1

PLUG

- port

1шт.

25

154523A1

O-RING

- plug

1шт.

26

155509A1

PLUG

- port, boom hold valve

1шт.

27

NSS

NOT SOLD SEPARAT

PLATE - name

1шт.

28

NSS

NOT SOLD SEPARAT

RIVET - name plate

2шт.

29

NSS

NOT SOLD SEPARAT

EXPANDER - valve

4шт.

30

NSS

NOT SOLD SEPARAT

PLUG - port

2шт.

Выбрано товаров: 32