Запчасти Case 9060B (9-022) - UPPER STRUCTURE - CONTINUED, *P.I.N. EAC0601026 ONLY (09) - CHASSIS

Схема запчастей Case 9060B - (9-022) - UPPER STRUCTURE - CONTINUED, *P.I.N. EAC0601026 ONLY (09) - CHASSIS
3
9
8
6
6
10
5
8
9
11
4
6
1
6
6
2
1
7
FIT
1:1
100%

Артикул

Название

Примечание

Количество

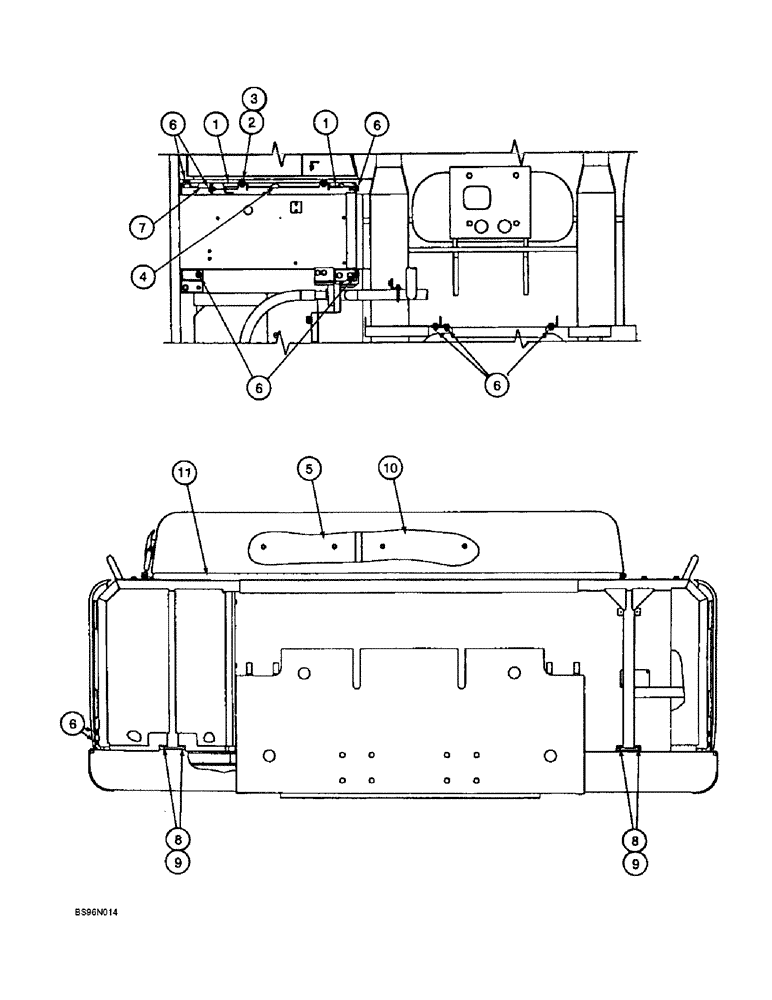
1

162368A1

SEAL

- cushion

4шт.

2

627-12025

BOLT,Hex, M12 x 1.75 x 25mm, Cl 10.9, Full Thd

- hex, full threads, 12 - 1.75 x 25 mm, class 10.9

3шт.

3

151161A1

WASHER

- special

3шт.

4

163431A1

SEAL

- cushion

1шт.

5

171063A1

NOISE PROTECTION

INSULATION - foam rubber

1шт.

6

152718A1

BOLT,Spcl, Hex Wshr, M12 x 25mm, Cl 10.9

- special

70шт.

7

162368A1

SEAL

- cushion

1шт.

8

152718A1

BOLT,Spcl, Hex Wshr, M12 x 25mm, Cl 10.9

- special

4шт.

9

162381A1

SHIM

- plate

2шт.

10

171064A1

NOISE PROTECTION

INSULATION - foam rubber

1шт.

11

171066A1

SEAL

STRIP - weather, rubber

1шт.

Выбрано товаров: 11