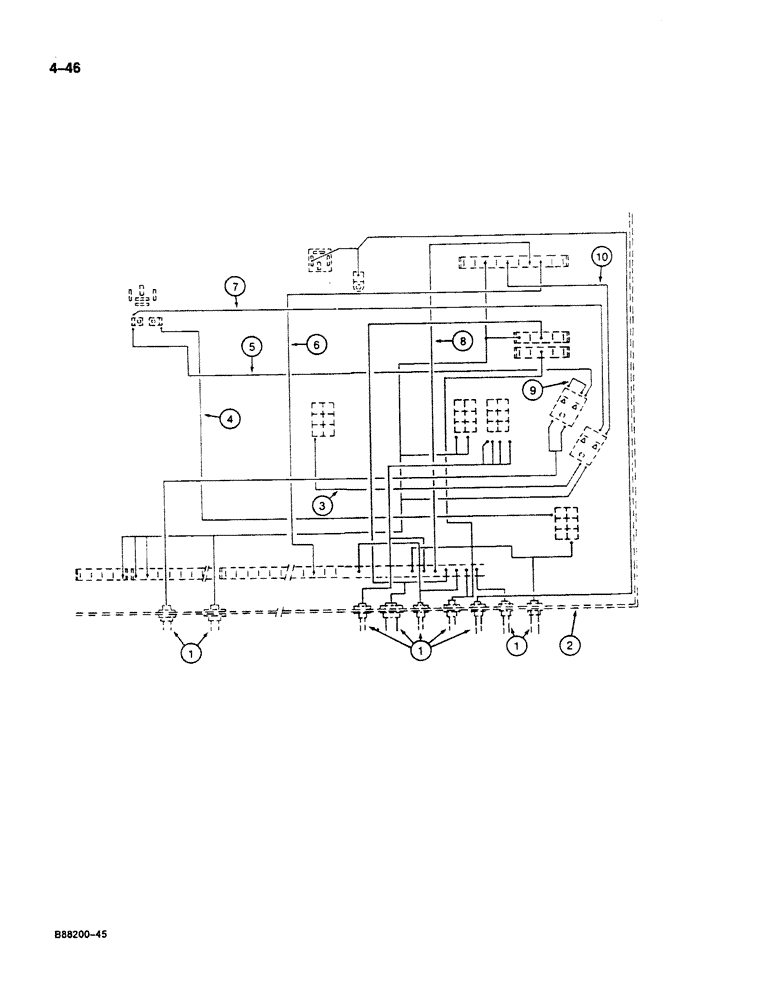
Запчасти Case 125B (4-46) - TURNTABLE ELECTRICAL HARNESS, HARNESS CONNECTIONS TO ELECTRICAL BOX (04) - ELECTRICAL SYSTEMS

Схема запчастей Case 125B - (4-46) - TURNTABLE ELECTRICAL HARNESS, HARNESS CONNECTIONS TO ELECTRICAL BOX (04) - ELECTRICAL SYSTEMS
FIT
1:1
100%

Артикул

Название

Примечание

Количество

1

REF

INSTRUCTION

HARNESS - at turntable, see Figure 4-44 for various harnesses

1шт.

2

REF

INSTRUCTION

BOX - electrical, see Figures 4-64 and 4-66

1шт.

3

P9247222

ELECTRICAL WIRE

WIRE - 13-3/4" (350 mm) long, connector, electrical box

1шт.

4

P9547220

ELECTRICAL WIRE

WIRE - 21-5/8" (550 mm) long, connector, electrical box

1шт.

5

P9547225

ELECTRICAL WIRE

WIRE - 19-5/8" (500 mm) long, connector, electrical box

1шт.

6

P8647281

ELECTRICAL WIRE

WIRE - 23-5/8" (600 mm) long, connector, electrical box

1шт.

7

P9547221

ELECTRICAL WIRE

WIRE - 21-5/8" (550 mm) long, connector, electrical box

1шт.

8

P9247220

ELECTRICAL WIRE

WIRE - 19-5/8" (500 mm) long, connector, electrical box

1шт.

9

P9547226

ELECTRICAL WIRE

WIRE - 3-15/16" (100 mm) long, connector, electrical box

1шт.

10

P9247221

ELECTRICAL WIRE

WIRE - 13-3/4" (350 mm) long, connector, electrical box

1шт.

Выбрано товаров: 10