Запчасти Case CX210 (08-21C) - PILOT CONTROL LINES, PARTITION - MODELS WITH LOAD HOLD & CONTROL SELECTOR VALVE (08) - HYDRAULICS

Схема запчастей Case CX210 - (08-21C) - PILOT CONTROL LINES, PARTITION - MODELS WITH LOAD HOLD & CONTROL SELECTOR VALVE (08) - HYDRAULICS
81
131
79
77
81
121
77
68
110
81
79
23
22
86
78
9
100
26
70
102
80
99
28
96
22
69
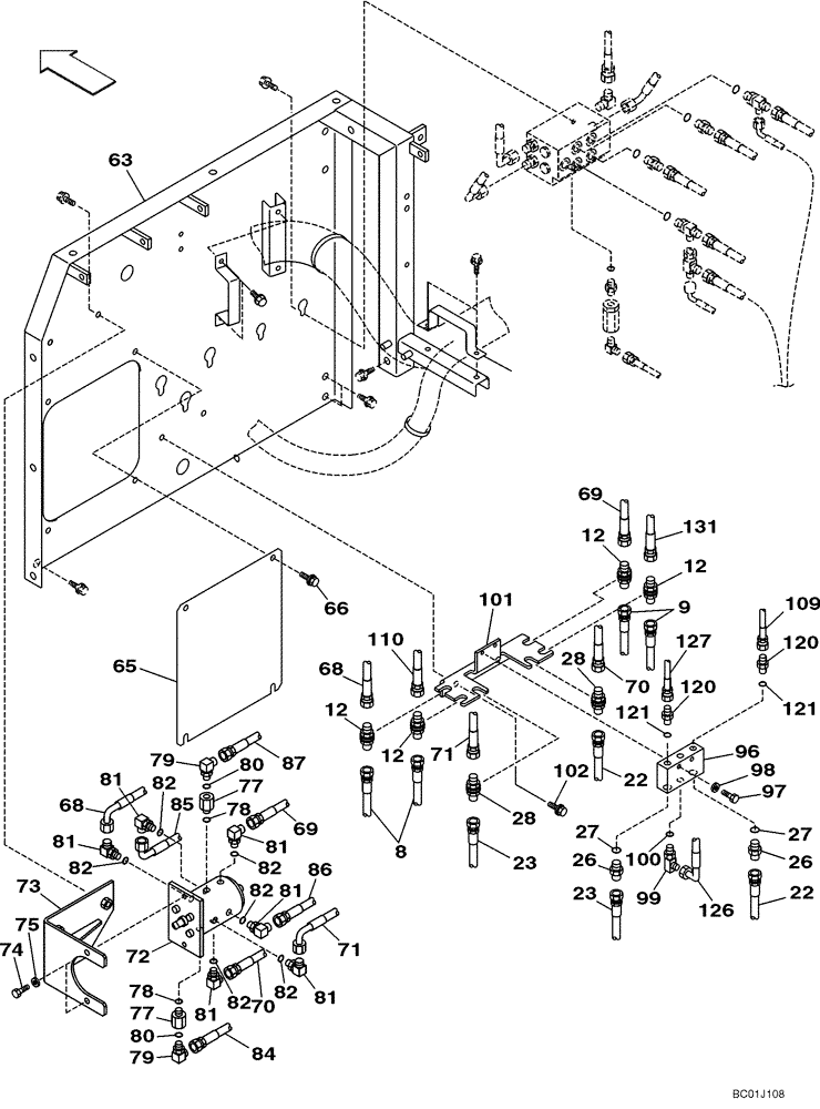
73
72
63
84
66
12
28
26
12
98
101
8
27
85
121
12
82
69
87
68
75
127
82
71
120
109
82
126
78
12
65
74
97
71
82
23
120
80
27
82
70
82
81
81
81
FIT
1:1
100%

Артикул

Название

Примечание

Количество

MODELS WITH LOAD HOLD AND ALTERNATE JOYSTICK CONTROL PATTERN

1шт.

8

KRJ4336

HYDRAULIC HOSE,9.50 mm ID x 2200.00 mm

See Figure 08-17

2шт.

9

168025A1

HYDRAULIC HOSE,9.50 mm ID x 1950.00 mm

See Figure 08-17

2шт.

12

162826A1

ADAPTER

4шт.

22

KHJ1345

HYDRAULIC HOSE,9.52 mm ID x 2150.00 mm

See Figure 08-17

2шт.

23

168025A1

HYDRAULIC HOSE,9.50 mm ID x 1950.00 mm

See Figure 08-17

2шт.

26

152747A1

ADAPTER

Incl. 27

2шт.

27

154467A1

O-RING,10.8mm ID x 2.4mm Width

1шт.

28

162826A1

ADAPTER

2шт.

63

KRJ7117

SIDE PANEL

Replaces KRJ6275

1шт.

65

KRJ6094

COVER

1шт.

66

627-10025

BOLT,Hex, M10 x 1.5 x 25mm, Cl 10.9, Full Thd

4шт.

896-11010

WASHER,11mm ID x 21mm OD x 2.5mm Thk

4шт.

68

159012A1

HOSE ASSY.

1шт.

69

162015A1

HOSE ASSY.

1шт.

70

152612A1

HOSE,95.00 mm ID x 600.00 mm

1шт.

71

168411A1

HOSE,650.00 mm

1шт.

72

KHJ2184

VALVE

Selector; See Figure 08-44

1шт.

73

KRJ6550

BRACKET

1шт.

74

167836A1

BOLT,High Strength, M10 x 25mm

2шт.

75

150409A1

WASHER

2шт.

77

KHJ1584

UNION

Incl. 78

2шт.

78

154467A1

O-RING,10.8mm ID x 2.4mm Width

1шт.

79

150916A1

ELBOW,90 Degree, 3/8" O-Ring x 3/8"

Incl. 80

2шт.

80

154475A1

O-RING

1шт.

81

153559A1

ELBOW

Incl. 82

6шт.

82

154467A1

O-RING,10.8mm ID x 2.4mm Width

1шт.

84

KBJ2349

HOSE

See Figure 08-21D

1шт.

85

159224A1

HOSE ASSY.

900 mm (35-1/2 in); See Figure 08-21D

1шт.

86

162565A1

HOSE ASSY.

1000 mm (39-3/8 in); See Figure 08-21D

1шт.

87

KRJ3893

HOSE

See Figure 08-21D

1шт.

96

KHJ17120

VALVE SECTION

; Replaces KHJ1973

1шт.

97

827-8045

BOLT,Hex, M8 x 1.25 x 45mm, Cl 10.9

2шт.

98

153081A1

WASHER

2шт.

99

KHJ2773

TEE

Incl. 100; Replaces KHJ1974

1шт.

100

154467A1

O-RING,10.8mm ID x 2.4mm Width

1шт.

101

KHJ1576

BRACKET

1шт.

102

627-10025

BOLT,Hex, M10 x 1.5 x 25mm, Cl 10.9, Full Thd

2шт.

896-11010

WASHER,11mm ID x 21mm OD x 2.5mm Thk

2шт.

109

KHJ1608

HOSE

See Figure 08-25C

1шт.

110

159071A1

HOSE

See Figure 08-25C

1шт.

120

152127A1

HYD CONNECTOR,1/4" NPT O-Ring x 1/4" NPT

Incl. 121

2шт.

121

154467A1

O-RING,10.8mm ID x 2.4mm Width

1шт.

126

162555A1

HOSE

1600 mm (63 in); See Figure 08-25D

1шт.

127

161657A1

HOSE ASSY.

1600 mm (63 in); See Figure 08-25C

1шт.

131

157963A1

HOSE

See Figure 08-25C

1шт.

Выбрано товаров: 0