Запчасти Case CX210 (08-18) - PILOT CONTROL LINES, PARTITION - MODELS WITHOUT LOAD HOLD (08) - HYDRAULICS

Схема запчастей Case CX210 - (08-18) - PILOT CONTROL LINES, PARTITION - MODELS WITHOUT LOAD HOLD (08) - HYDRAULICS
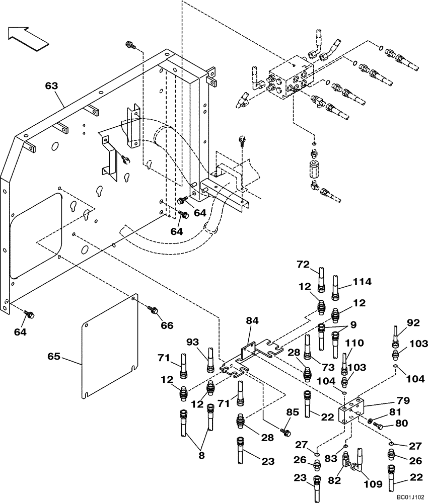
12
104
23
83
79
26
23
66
22
82
28
110
65
12
99
103
80
81
71
114
104
109
64
72
22
71
63
27
64
64
28
103
73
27
8
92
12
84
93
12
85
26
FIT
1:1
100%

Артикул

Название

Примечание

Количество

MODELS WITHOUT LOAD HOLD

1шт.

8

KRJ4336

HYDRAULIC HOSE,9.50 mm ID x 2200.00 mm

See Figure 08-17

2шт.

9

168025A1

HYDRAULIC HOSE,9.50 mm ID x 1950.00 mm

See Figure 08-17

2шт.

12

162826A1

ADAPTER

4шт.

22

KHJ1345

HYDRAULIC HOSE,9.52 mm ID x 2150.00 mm

See Figure 08-17

2шт.

23

168025A1

HYDRAULIC HOSE,9.50 mm ID x 1950.00 mm

See Figure 08-17

2шт.

26

152747A1

ADAPTER

Incl. 27

2шт.

27

154467A1

O-RING,10.8mm ID x 2.4mm Width

1шт.

28

162826A1

ADAPTER

2шт.

63

KRJ7117

SIDE PANEL

Replaces KRJ6275

1шт.

64

152718A1

BOLT,Spcl, Hex Wshr, M12 x 25mm, Cl 10.9

4шт.

65

KRJ6094

COVER

1шт.

66

166052A1

BOLT

4шт.

71

162835A1

HOSE ASSY.

See Figure 08-19

2шт.

72

KRJ3932

HOSE

See Figure 08-19

1шт.

73

KRJ3569

HOSE

See Figure 08-19

1шт.

79

KHJ17120

VALVE SECTION

; Replaces KHJ1973

1шт.

80

827-8045

BOLT,Hex, M8 x 1.25 x 45mm, Cl 10.9

2шт.

81

153081A1

WASHER

2шт.

82

KHJ2773

TEE

Incl. 83; Replaces KHJ1974

1шт.

83

154467A1

O-RING,10.8mm ID x 2.4mm Width

1шт.

84

KHJ1576

BRACKET

1шт.

85

166052A1

BOLT

2шт.

92

KHJ1608

HOSE

See Figure 08-22

1шт.

93

159071A1

HOSE

See Figure 08-22

1шт.

103

152127A1

HYD CONNECTOR,1/4" NPT O-Ring x 1/4" NPT

Incl. 104

2шт.

104

154467A1

O-RING,10.8mm ID x 2.4mm Width

1шт.

109

162555A1

HOSE

1600 mm (63 in); See Figure 08-23; Replaces 152604A1

1шт.

110

161657A1

HOSE ASSY.

1600 mm (63 in); See Figure 08-22

1шт.

114

157963A1

HOSE

See Figure 08-22

1шт.

Выбрано товаров: 30