Запчасти Case CX210LR (08-18) - PILOT CONTROL LINES, PARTITION (08) - HYDRAULICS

Схема запчастей Case CX210LR - (08-18) - PILOT CONTROL LINES, PARTITION (08) - HYDRAULICS
9
136
101
95
26
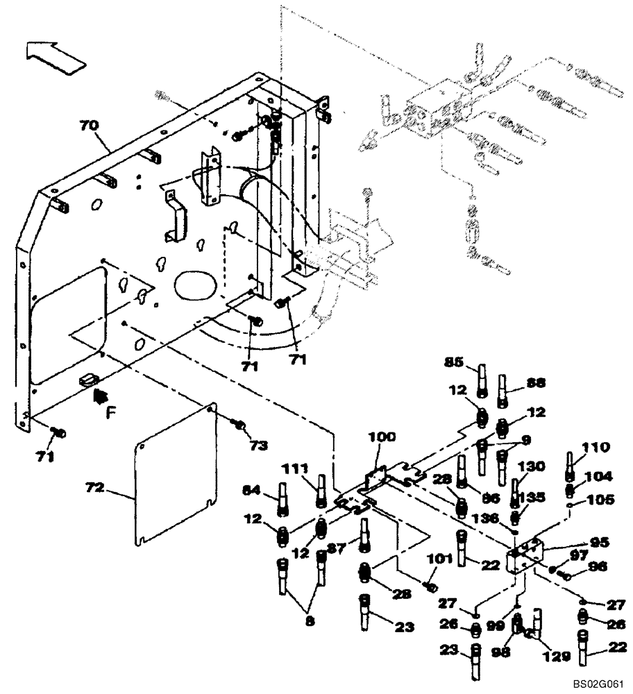
70
28
23
10
86
88
12
87
130
4
12
8
84
71
98
28
22
22
88
97
86
23
27
135
71
72
96
129
12
99
27
26
111
12
71
73
100
FIT
1:1
100%

Артикул

Название

Примечание

Количество

8

KRJ4336

HYDRAULIC HOSE,9.50 mm ID x 2200.00 mm

See Figure 08-17

2шт.

9

168025A1

HYDRAULIC HOSE,9.50 mm ID x 1950.00 mm

See Figure 08-17

2шт.

12

162826A1

ADAPTER

4шт.

22

KHJ1345

HYDRAULIC HOSE,9.52 mm ID x 2150.00 mm

See Figure 08-17

2шт.

23

168025A1

HYDRAULIC HOSE,9.50 mm ID x 1950.00 mm

See Figure 08-17

2шт.

26

152747A1

ADAPTER

Incl. 27

2шт.

27

154467A1

O-RING,10.8mm ID x 2.4mm Width

1шт.

28

162826A1

ADAPTER

2шт.

70

KRJ7117

SIDE PANEL

Replaces KRJ6275

1шт.

71

152718A1

BOLT,Spcl, Hex Wshr, M12 x 25mm, Cl 10.9

4шт.

72

KRJ6094

COVER

1шт.

73

627-10025

BOLT,Hex, M10 x 1.5 x 25mm, Cl 10.9, Full Thd

4шт.

896-11010

WASHER,11mm ID x 21mm OD x 2.5mm Thk

4шт.

84

162835A1

HOSE ASSY.

1шт.

85

KHJ1989

HOSE

1шт.

86

KRJ3569

HOSE

1шт.

87

162835A1

HOSE ASSY.

1шт.

88

KHJ1989

HOSE

1шт.

95

KHJ17120

VALVE SECTION

; Replaces KHJ1973

1шт.

96

827-8045

BOLT,Hex, M8 x 1.25 x 45mm, Cl 10.9

2шт.

97

153081A1

WASHER

2шт.

98

KHJ2773

TEE

Incl. 99; Replaces KHJ1974

1шт.

99

154467A1

O-RING,10.8mm ID x 2.4mm Width

1шт.

100

KHJ1576

BRACKET

1шт.

101

627-10025

BOLT,Hex, M10 x 1.5 x 25mm, Cl 10.9, Full Thd

2шт.

896-11010

WASHER,11mm ID x 21mm OD x 2.5mm Thk

2шт.

104

152127A1

HYD CONNECTOR,1/4" NPT O-Ring x 1/4" NPT

Incl. 105

1шт.

105

154467A1

O-RING,10.8mm ID x 2.4mm Width

1шт.

110

KHJ1608

HOSE

See Figure 08-22

1шт.

111

159071A1

HOSE

See Figure 08-22

1шт.

129

162555A1

HOSE

1600 mm (63 in); See Figure 08-23; Replaces 152604A1

1шт.

130

161657A1

HOSE ASSY.

1600 mm (63 in); See Figure 08-22

1шт.

135

152127A1

HYD CONNECTOR,1/4" NPT O-Ring x 1/4" NPT

Incl. 136

1шт.

136

154467A1

O-RING,10.8mm ID x 2.4mm Width

1шт.

Выбрано товаров: 34