Запчасти Case CX210N (08-20) - PILOT CONTROL LINES, PARTITION - MODELS WITH CONTROL SELECTOR VALVE (08) - HYDRAULICS

Схема запчастей Case CX210N - (08-20) - PILOT CONTROL LINES, PARTITION - MODELS WITH CONTROL SELECTOR VALVE (08) - HYDRAULICS
84
121
71
77
97
27
70
12
109
76
80
78
73
70
12
81
26
81
120
28
26
9
99
28
72
68
102
23
8
80
12
101
110
27
12
131
78
86
79
69
81
81
100
68
79
83
23
22
81
80
85
69
120
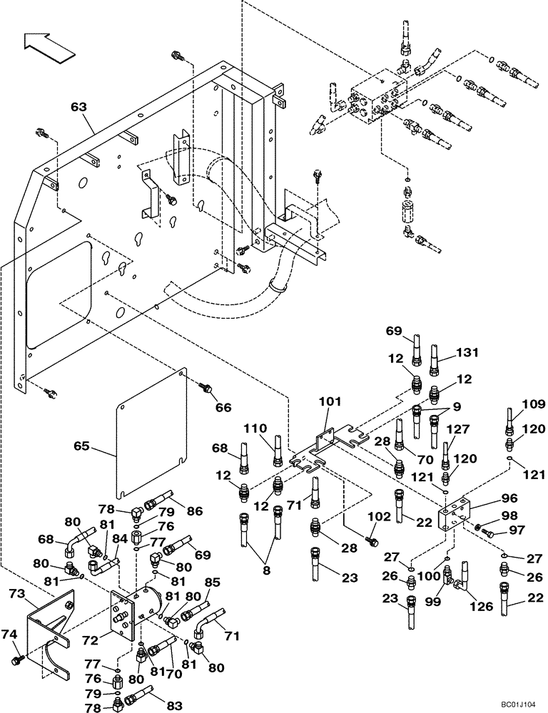
63
65
80
126
96
98
77
71
81
74
76
80
22
127
121
66
80
FIT
1:1
100%

Артикул

Название

Примечание

Количество

MODELS WITH ALTERNATE JOYSTICK CONTROL PATTERN

1шт.

8

KRJ4336

HYDRAULIC HOSE,9.50 mm ID x 2200.00 mm

See Figure 08-17

2шт.

9

168025A1

HYDRAULIC HOSE,9.50 mm ID x 1950.00 mm

See Figure 08-17

2шт.

12

162826A1

ADAPTER

4шт.

22

KHJ1345

HYDRAULIC HOSE,9.52 mm ID x 2150.00 mm

See Figure 08-17

2шт.

23

168025A1

HYDRAULIC HOSE,9.50 mm ID x 1950.00 mm

See Figure 08-17

2шт.

26

152747A1

ADAPTER

Incl. 27

2шт.

27

154467A1

O-RING,10.8mm ID x 2.4mm Width

1шт.

28

162826A1

ADAPTER

2шт.

63

KRJ7117

SIDE PANEL

Replaces KRJ6275

1шт.

64

152718A1

BOLT,Spcl, Hex Wshr, M12 x 25mm, Cl 10.9

4шт.

65

KRJ6094

COVER

1шт.

66

627-10025

BOLT,Hex, M10 x 1.5 x 25mm, Cl 10.9, Full Thd

4шт.

896-11010

WASHER,11mm ID x 21mm OD x 2.5mm Thk

4шт.

68

159012A1

HOSE ASSY.

1шт.

69

162015A1

HOSE ASSY.

1шт.

70

152612A1

HOSE,95.00 mm ID x 600.00 mm

1шт.

71

168411A1

HOSE,650.00 mm

1шт.

72

KHJ2184

VALVE

Selector; See Figure 08-44

1шт.

73

KRJ6550

BRACKET

1шт.

74

167836A1

BOLT,High Strength, M10 x 25mm

2шт.

150409A1

WASHER

2шт.

76

KHJ1584

UNION

Incl. 77

2шт.

77

154467A1

O-RING,10.8mm ID x 2.4mm Width

1шт.

78

150916A1

ELBOW,90 Degree, 3/8" O-Ring x 3/8"

Incl. 79

2шт.

79

154475A1

O-RING

1шт.

80

153559A1

ELBOW

Incl. 81

6шт.

81

154467A1

O-RING,10.8mm ID x 2.4mm Width

1шт.

83

KBJ2349

HOSE

See Figure 08-21

1шт.

84

159224A1

HOSE ASSY.

900 mm (35-1/2 in); See Figure 08-21

1шт.

85

162565A1

HOSE ASSY.

1000 mm (39-3/8 in); See Figure 08-21

1шт.

86

KRJ3893

HOSE

See Figure 08-21

1шт.

96

KHJ17120

VALVE SECTION

; Replaces KHJ1973

1шт.

97

827-8045

BOLT,Hex, M8 x 1.25 x 45mm, Cl 10.9

2шт.

98

153081A1

WASHER

2шт.

99

KHJ2773

TEE

Incl. 100; Replaces KHJ1974

1шт.

100

154467A1

O-RING,10.8mm ID x 2.4mm Width

1шт.

101

KHJ1576

BRACKET

1шт.

102

627-10025

BOLT,Hex, M10 x 1.5 x 25mm, Cl 10.9, Full Thd

2шт.

896-11010

WASHER,11mm ID x 21mm OD x 2.5mm Thk

2шт.

109

KHJ1608

HOSE

See Figure 08-24

1шт.

110

159071A1

HOSE

See Figure 08-24

1шт.

120

152127A1

HYD CONNECTOR,1/4" NPT O-Ring x 1/4" NPT

Incl. 121

2шт.

121

154467A1

O-RING,10.8mm ID x 2.4mm Width

1шт.

126

162555A1

HOSE

1600 mm (63 in); See Figure 08-25

1шт.

127

161657A1

HOSE ASSY.

1600 mm (63 in); See Figure 08-24

1шт.

131

157963A1

HOSE

See Figure 08-24

1шт.

Выбрано товаров: 47