Запчасти Case CX210N (08-21B) - PILOT CONTROL LINES, PARTITION - MODELS WITH LOAD HOLD (08) - HYDRAULICS

Схема запчастей Case CX210N - (08-21B) - PILOT CONTROL LINES, PARTITION - MODELS WITH LOAD HOLD (08) - HYDRAULICS
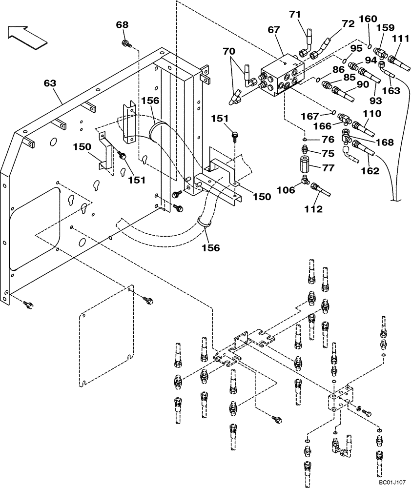
67
71
85
93
72
70
167
90
77
150
106
63
156
156
112
110
111
166
162
68
95
150
151
151
168
76
163
94
160
159
86
75
FIT
1:1
100%

Артикул

Название

Примечание

Количество

MODELS WITH LOAD HOLD

1шт.

63

KRJ6275

SIDE PANEL

1шт.

67

KRJ6501

VALVE, CUSHION

See Figure 08-43

1шт.

68

627-10025

BOLT,Hex, M10 x 1.5 x 25mm, Cl 10.9, Full Thd

2шт.

896-11010

WASHER,11mm ID x 21mm OD x 2.5mm Thk

1шт.

70

162835A1

HOSE ASSY.

See Figure 08-21A

2шт.

71

KRJ3932

HOSE

See Figure 08-21A

1шт.

72

KRJ3569

HOSE

See Figure 08-21A

1шт.

75

152899A1

HYD CONNECTOR

Incl. 76

1шт.

76

154467A1

O-RING,10.8mm ID x 2.4mm Width

1шт.

77

151552A1

FILTER

1шт.

85

152128A1

HYD CONNECTOR,3/8" NPT O-Ring x 3/8" NPT

Incl. 86

1шт.

86

154475A1

O-RING

1шт.

90

162565A1

HOSE ASSY.

1000 mm (39-3/8 in); See Figure 08-25A

1шт.

93

159224A1

HOSE ASSY.

900 mm (35-1/2 in); See Figure 08-25A

1шт.

94

152128A1

HYD CONNECTOR,3/8" NPT O-Ring x 3/8" NPT

Incl. 95

1шт.

95

154475A1

O-RING

1шт.

106

153596A1

ADAPTER

1шт.

110

161492A1

HOSE

See Figure 08-25A

1шт.

111

KHJ1606

HYDRAULIC HOSE

See Figure 08-25A

1шт.

112

162648A1

HOSE

See Figure 08-25A

1шт.

150

159036A1

CLAMP

2шт.

151

627-8020

BOLT,Hex, M8 x 1.25 x 20mm, Cl 10.9, Full Thd

4шт.

896-15008

WASHER,9mm ID x 21mm OD x 2.5mm Thk

1шт.

156

150071A1

MOUNTING CLIP

2шт.

159

164107A1

TEE,3/8" ORB x 3/8" - 19 NPT x 3/8" - 19 NPT

Incl. 160

1шт.

160

154475A1

O-RING

1шт.

162

168025A1

HYDRAULIC HOSE,9.50 mm ID x 1950.00 mm

See Figure 08-15A

1шт.

163

KHJ1571

HYDRAULIC HOSE,9.52 mm ID x 2050.00 mm

See Figure 08-15A

1шт.

166

164107A1

TEE,3/8" ORB x 3/8" - 19 NPT x 3/8" - 19 NPT

Incl. 167

1шт.

167

154475A1

O-RING

1шт.

168

KHJ1897

TEE

1шт.

Выбрано товаров: 32