Запчасти Case CX240 (08-21D) - HYDRAULICS - PILOT CONTROL LINES, PARTITION (08) - HYDRAULICS

Схема запчастей Case CX240 - (08-21D) - HYDRAULICS - PILOT CONTROL LINES, PARTITION (08) - HYDRAULICS
185
168
169
176
179
113
112
76
111
86
95
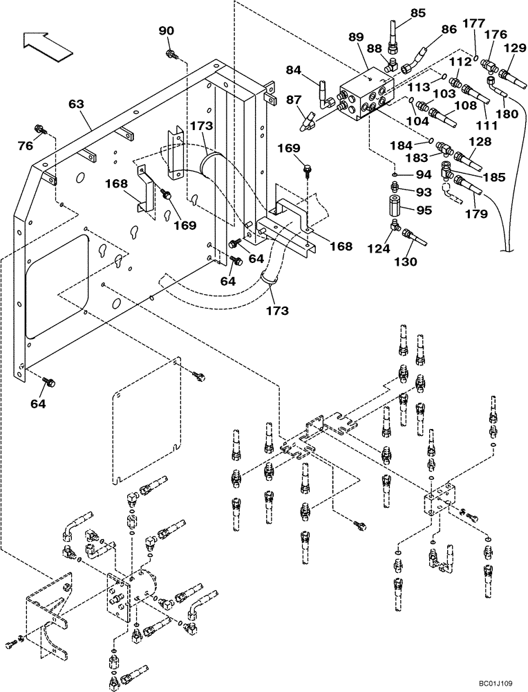
63
173
177
124
64
173
168
89
93
64
64
108
90
84
104
184
183
87
180
94
130
88
103
85
128
169
129
FIT
1:1
100%

Артикул

Название

Примечание

Количество

MODELS WITH LOAD HOLD AND ALTERNATE JOYSTICK CONTROL PATTERN

1шт.

63

KRJ7117

SIDE PANEL

Replaces KRJ6275

1шт.

64

152718A1

BOLT,Spcl, Hex Wshr, M12 x 25mm, Cl 10.9

4шт.

76

152718A1

BOLT,Spcl, Hex Wshr, M12 x 25mm, Cl 10.9

2шт.

84

KBJ2349

HOSE

See Figure 08-21C

1шт.

85

159224A1

HOSE ASSY.

See Figure 08-21C

1шт.

86

162565A1

HOSE ASSY.

See Figure 08-21C

1шт.

87

KRJ3893

HOSE

See Figure 08-21C

1шт.

88

153526A1

ELBOW

1шт.

89

KRJ6501

VALVE, CUSHION

See Figure 08-43

1шт.

90

627-10025

BOLT,Hex, M10 x 1.5 x 25mm, Cl 10.9, Full Thd

2шт.

896-11010

WASHER,11mm ID x 21mm OD x 2.5mm Thk

2шт.

93

152899A1

HYD CONNECTOR

Incl. 94

1шт.

94

154467A1

O-RING,10.8mm ID x 2.4mm Width

1шт.

95

151552A1

FILTER

1шт.

103

152128A1

HYD CONNECTOR,3/8" NPT O-Ring x 3/8" NPT

Incl. 104

1шт.

104

154475A1

O-RING

1шт.

108

162565A1

HOSE ASSY.

1000 mm (39-3/8 in); See Figure 08-25C

1шт.

111

159224A1

HOSE ASSY.

900 mm (35-1/2 in); See Figure 08-25C

1шт.

112

152128A1

HYD CONNECTOR,3/8" NPT O-Ring x 3/8" NPT

Incl. 113

1шт.

113

154475A1

O-RING

1шт.

124

153596A1

ADAPTER

1шт.

128

161492A1

HOSE

See Figure 08-25C

1шт.

129

KHJ1606

HYDRAULIC HOSE

See Figure 08-25C

1шт.

130

162648A1

HOSE

See Figure 08-25C

1шт.

168

159036A1

CLAMP

2шт.

169

627-8020

BOLT,Hex, M8 x 1.25 x 20mm, Cl 10.9, Full Thd

4шт.

896-15008

WASHER,9mm ID x 21mm OD x 2.5mm Thk

1шт.

173

150071A1

MOUNTING CLIP

2шт.

176

164107A1

TEE,3/8" ORB x 3/8" - 19 NPT x 3/8" - 19 NPT

Incl. 177

1шт.

177

154475A1

O-RING

1шт.

179

KHJ1345

HYDRAULIC HOSE,9.52 mm ID x 2150.00 mm

See Figure 08-15A, REF 162

1шт.

180

KHJ1573

HYDRAULIC HOSE,9.52 mm ID x 2200.00 mm

See Figure 08-15A, REF 163

1шт.

183

164107A1

TEE,3/8" ORB x 3/8" - 19 NPT x 3/8" - 19 NPT

Incl. 184

1шт.

184

154475A1

O-RING

1шт.

185

KHJ1897

TEE

1шт.

Выбрано товаров: 36