Качественные детали и логистика
Оригинальные и аналоговые запчасти с доставкой по России, Казахстану и Беларуси
©2022 PartSell ООО "Система" ИНН 2463123282 ОГРН 1212400004838
Центральный офис: г. Красноярск, Академика Киренского, д.87, пом.4
Телефон: 8 (800) 777-65-74 Email: zakaz@partsell.ru
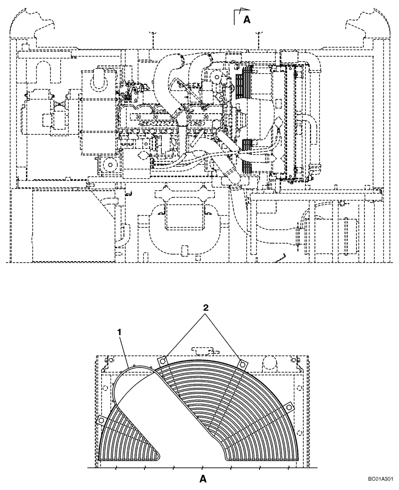
(09-34A) - FAN GUARD
№
Артикул
Название
Примечание
Количество
1
KRH1450
GUARD ASSY.
Fan; Replaces KRH1406
1шт.
2
162120A1
BOLT,Sems, Hex, M10 x 20mm, Spcl
4шт.
Выбрано товаров: 0