Запчасти Case CX290 (08-29) - HYDRAULICS - PILOT CONTROL LINES (08) - HYDRAULICS

Схема запчастей Case CX290 - (08-29) - HYDRAULICS - PILOT CONTROL LINES (08) - HYDRAULICS
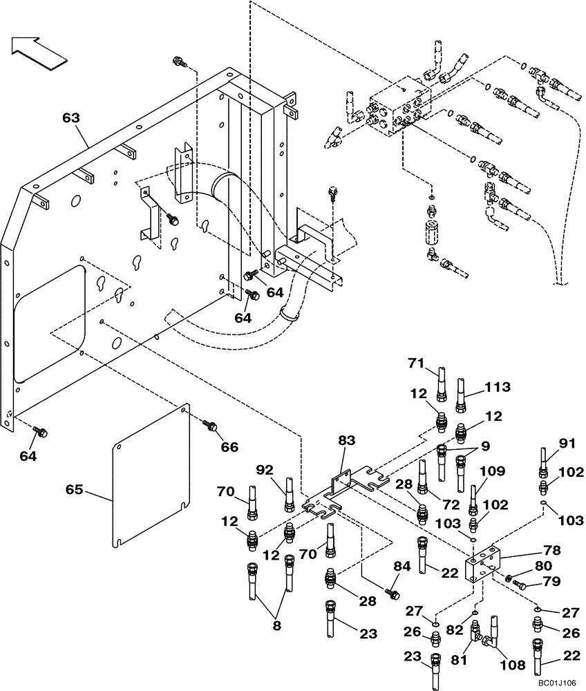
27
92
82
91
64
103
70
72
113
26
12
12
103
22
9
23
12
64
70
28
66
6
28
23
78
102
108
83
81
27
26
65
109
102
84
79
8
22
80
12
71
63
FIT
1:1
100%

Артикул

Название

Примечание

Количество

Partition

1шт.

Models With Load Hold

1шт.

8

KRJ4336

HYDRAULIC HOSE,9.50 mm ID x 2200.00 mm

See Figure 08-24

2шт.

9

168025A1

HYDRAULIC HOSE,9.50 mm ID x 1950.00 mm

See Figure 08-24

2шт.

12

162826A1

ADAPTER

4шт.

22

KHJ1345

HYDRAULIC HOSE,9.52 mm ID x 2150.00 mm

See Figure 08-24

2шт.

23

168025A1

HYDRAULIC HOSE,9.50 mm ID x 1950.00 mm

See Figure 08-24

2шт.

26

152747A1

ADAPTER

Incl. 27

2шт.

27

154467A1

O-RING,10.8mm ID x 2.4mm Width

1шт.

28

162826A1

ADAPTER

2шт.

63

KRJ6275

SIDE PANEL

1шт.

64

152718A1

BOLT,Spcl, Hex Wshr, M12 x 25mm, Cl 10.9

4шт.

65

KRJ6094

COVER

1шт.

66

166052A1

BOLT

With Attached Washer

4шт.

70

162835A1

HOSE ASSY.

See Figure 08-30

2шт.

71

KRJ3932

HOSE

See Figure 08-30

1шт.

72

KRJ3569

HOSE

See Figure 08-30

1шт.

78

KHJ17120

VALVE SECTION

; Replaces KHJ1973

1шт.

79

827-8045

BOLT,Hex, M8 x 1.25 x 45mm, Cl 10.9

2шт.

80

153081A1

WASHER

2шт.

81

KHJ1974

TEE

Incl. 82

1шт.

82

154467A1

O-RING,10.8mm ID x 2.4mm Width

1шт.

83

KHJ1576

BRACKET

1шт.

84

166052A1

BOLT

With Attached Washer

2шт.

91

KHJ1608

HOSE

See Figure 08-37

1шт.

92

159071A1

HOSE

See Figure 08-37

1шт.

102

152127A1

HYD CONNECTOR,1/4" NPT O-Ring x 1/4" NPT

Incl. 103

2шт.

103

154467A1

O-RING,10.8mm ID x 2.4mm Width

1шт.

108

162555A1

HOSE

See Figure 08-38

1шт.

109

161657A1

HOSE ASSY.

1600 mm (63 in)

1шт.

113

157963A1

HOSE

See Figure 08-37

1шт.

Выбрано товаров: 31