Запчасти Case CX290 (08-31) - HYDRAULICS - PILOT CONTROL LINES (08) - HYDRAULICS

Схема запчастей Case CX290 - (08-31) - HYDRAULICS - PILOT CONTROL LINES (08) - HYDRAULICS
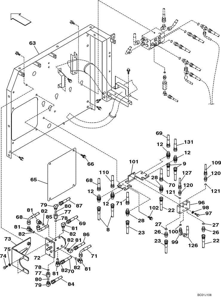
68
28
121
81
121
65
87
99
100
75
77
27
126
71
26
85
82
63
80
120
70
74
70
84
97
23
101
72
96
82
26
22
66
81
81
73
131
79
69
68
81
8
81
120
22
79
82
81
9
78
12
86
23
82
127
27
80
12
77
69
109
102
110
71
12
12
82
78
82
98
28
FIT
1:1
100%

Артикул

Название

Примечание

Количество

Partition

1шт.

Models With Load Hold And Alternate Joystick Control Pattern

1шт.

8

KRJ4336

HYDRAULIC HOSE,9.50 mm ID x 2200.00 mm

See Figure 08-24

2шт.

9

168025A1

HYDRAULIC HOSE,9.50 mm ID x 1950.00 mm

See Figure 08-24

2шт.

12

162826A1

ADAPTER

4шт.

22

KHJ1345

HYDRAULIC HOSE,9.52 mm ID x 2150.00 mm

See Figure 08-24

2шт.

23

168025A1

HYDRAULIC HOSE,9.50 mm ID x 1950.00 mm

See Figure 08-24

2шт.

26

152747A1

ADAPTER

Incl. 27

2шт.

27

154467A1

O-RING,10.8mm ID x 2.4mm Width

1шт.

28

162826A1

ADAPTER

2шт.

63

KRJ6275

SIDE PANEL

1шт.

65

KRJ6094

COVER

1шт.

66

627-10025

BOLT,Hex, M10 x 1.5 x 25mm, Cl 10.9, Full Thd

4шт.

896-11010

WASHER,11mm ID x 21mm OD x 2.5mm Thk

With Attached Washer

4шт.

68

159012A1

HOSE ASSY.

1шт.

69

162015A1

HOSE ASSY.

1шт.

70

152612A1

HOSE,95.00 mm ID x 600.00 mm

1шт.

71

168411A1

HOSE,650.00 mm

1шт.

72

KHJ2184

VALVE

See Figure 08-82

1шт.

73

KRJ6550

BRACKET

1шт.

74

167836A1

BOLT,High Strength, M10 x 25mm

2шт.

75

150409A1

WASHER

10,5 x 21 x 3,2 mm

2шт.

77

KHJ1584

UNION

Incl. 78

2шт.

78

154467A1

O-RING,10.8mm ID x 2.4mm Width

1шт.

79

150916A1

ELBOW,90 Degree, 3/8" O-Ring x 3/8"

Incl. 80

2шт.

80

154475A1

O-RING

1шт.

81

153559A1

ELBOW

Incl. 82

6шт.

82

154467A1

O-RING,10.8mm ID x 2.4mm Width

1шт.

84

KBJ2349

HOSE

See Figure 08-32

1шт.

85

159224A1

HOSE ASSY.

900 mm (35-1/2 in), See Figure 08-32

1шт.

86

162565A1

HOSE ASSY.

1000 mm (39-3/8 in), See Figure 08-32

1шт.

87

KRJ3893

HOSE

See Figure 08-32

1шт.

96

KHJ17120

VALVE SECTION

; Replaces KHJ1973

1шт.

97

827-8045

BOLT,Hex, M8 x 1.25 x 45mm, Cl 10.9

2шт.

98

153081A1

WASHER

2шт.

99

KHJ1974

TEE

Incl. 100

1шт.

100

154467A1

O-RING,10.8mm ID x 2.4mm Width

1шт.

101

KHJ1576

BRACKET

1шт.

102

627-10025

BOLT,Hex, M10 x 1.5 x 25mm, Cl 10.9, Full Thd

2шт.

896-11010

WASHER,11mm ID x 21mm OD x 2.5mm Thk

2шт.

109

KHJ1608

HOSE

See Figure 08-39

1шт.

110

159071A1

HOSE

See Figure 08-39

1шт.

120

152127A1

HYD CONNECTOR,1/4" NPT O-Ring x 1/4" NPT

Incl. 121

2шт.

121

154467A1

O-RING,10.8mm ID x 2.4mm Width

1шт.

126

162555A1

HOSE

See Figure 08-40

1шт.

127

161657A1

HOSE ASSY.

1600 mm (63 in), See Figure 08-39

1шт.

131

157963A1

HOSE

See Figure 08-39

1шт.

Выбрано товаров: 47