Запчасти Case CX290 (08-32) - HYDRAULICS - PILOT CONTROL LINES (08) - HYDRAULICS

Схема запчастей Case CX290 - (08-32) - HYDRAULICS - PILOT CONTROL LINES (08) - HYDRAULICS
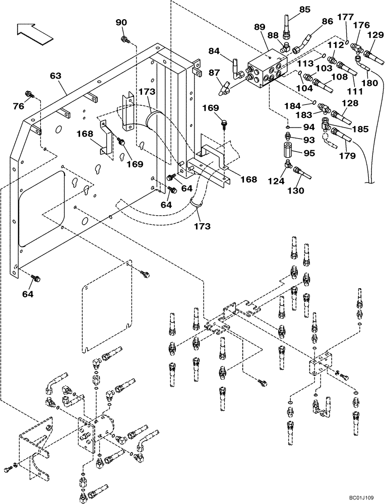
93
177
86
179
183
168
64
128
103
113
64
76
63
111
169
112
173
108
64
173
184
84
176
87
169
104
130
88
124
89
180
85
95
90
129
168
94
185
FIT
1:1
100%

Артикул

Название

Примечание

Количество

Partition

1шт.

Models With Load Hold And Alternate Joystick Control Pattern

1шт.

63

KRJ6275

SIDE PANEL

1шт.

64

152718A1

BOLT,Spcl, Hex Wshr, M12 x 25mm, Cl 10.9

4шт.

76

152718A1

BOLT,Spcl, Hex Wshr, M12 x 25mm, Cl 10.9

2шт.

84

KBJ2349

HOSE

See Figure 08-31

1шт.

85

159224A1

HOSE ASSY.

900 mm (35-1/2 in), See Figure 08-31

1шт.

86

162565A1

HOSE ASSY.

1000 mm (39-3/8 in), See Figure 08-31

1шт.

87

KRJ3893

HOSE

See Figure 08-31

1шт.

88

153526A1

ELBOW

1шт.

89

KRJ6501

VALVE, CUSHION

See Figure 08-81

1шт.

90

627-10025

BOLT,Hex, M10 x 1.5 x 25mm, Cl 10.9, Full Thd

2шт.

896-11010

WASHER,11mm ID x 21mm OD x 2.5mm Thk

2шт.

93

152899A1

HYD CONNECTOR

Incl. 94

1шт.

94

154467A1

O-RING,10.8mm ID x 2.4mm Width

1шт.

95

151552A1

FILTER

1шт.

103

152128A1

HYD CONNECTOR,3/8" NPT O-Ring x 3/8" NPT

Incl. 104

1шт.

104

154475A1

O-RING

1шт.

108

162565A1

HOSE ASSY.

1000 mm (39-3/8 in), See Figure 08-39

1шт.

111

159224A1

HOSE ASSY.

900 mm (35-1/2 in), See Figure 08-39

1шт.

112

152128A1

HYD CONNECTOR,3/8" NPT O-Ring x 3/8" NPT

Incl. 113

1шт.

113

154475A1

O-RING

1шт.

124

153596A1

ADAPTER

1шт.

128

161492A1

HOSE

See Figure 08-39

1шт.

129

KHJ1606

HYDRAULIC HOSE

See Figure 08-39

1шт.

130

162648A1

HOSE

See Figure 08-39

1шт.

168

159036A1

CLAMP

2шт.

169

627-8020

BOLT,Hex, M8 x 1.25 x 20mm, Cl 10.9, Full Thd

4шт.

896-15008

WASHER,9mm ID x 21mm OD x 2.5mm Thk

4шт.

173

150071A1

MOUNTING CLIP

2шт.

176

164107A1

TEE,3/8" ORB x 3/8" - 19 NPT x 3/8" - 19 NPT

Incl. 177

1шт.

177

154475A1

O-RING

1шт.

179

KRJ4336

HYDRAULIC HOSE,9.50 mm ID x 2200.00 mm

See Figure 08-22, Ref. 162

1шт.

180

KHJ2280

HYDRAULIC HOSE,12.70 mm ID x 2400.00 mm

See Figure 08-22, REF 163

1шт.

183

164107A1

TEE,3/8" ORB x 3/8" - 19 NPT x 3/8" - 19 NPT

Incl. 184

1шт.

184

154475A1

O-RING

1шт.

185

KHJ1897

TEE

1шт.

Выбрано товаров: 37