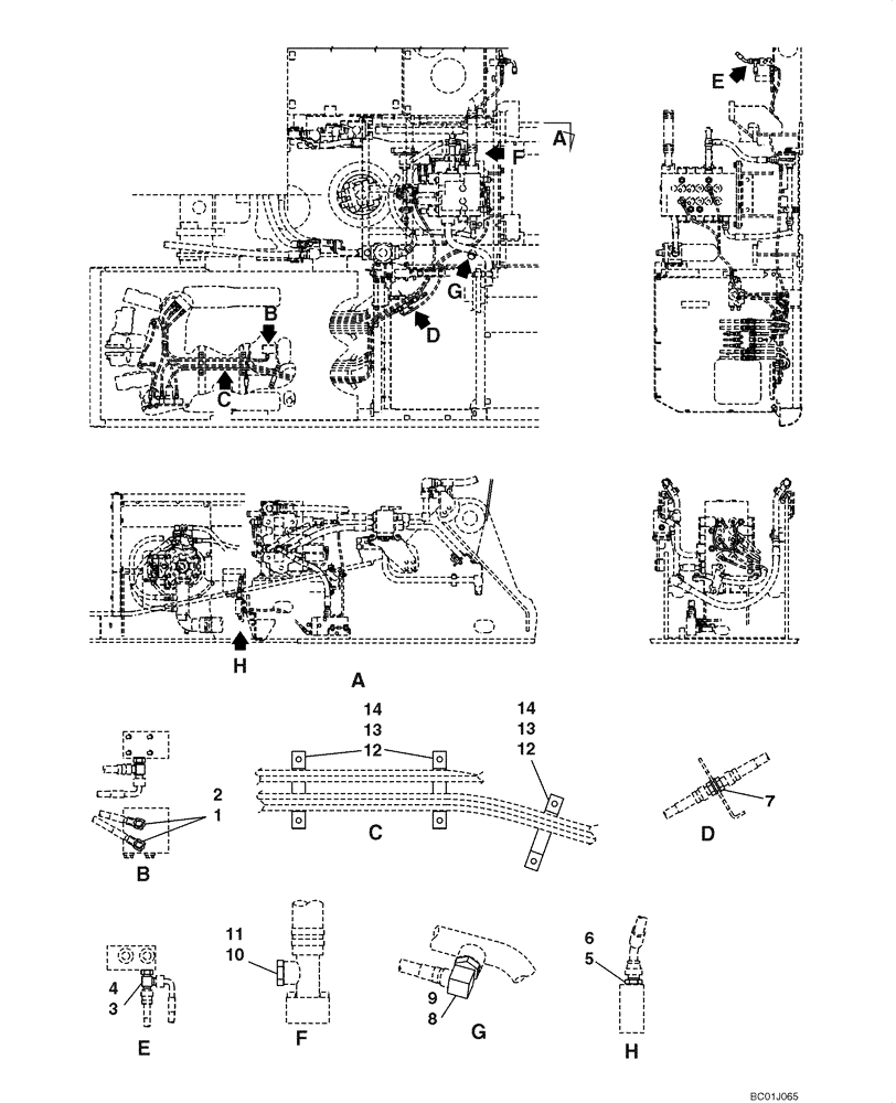
Запчасти Case CX290 (08-57) - HYDRAULICS - THUMB AUXILIARY (08) - HYDRAULICS

Схема запчастей Case CX290 - (08-57) - HYDRAULICS - THUMB AUXILIARY (08) - HYDRAULICS
7
8
6
13
14
12
11
13
2
3
5
14
1
4
10
9
12
FIT
1:1
100%

Артикул

Название

Примечание

Количество

1

159497A1

TEE

Incl. 2

2шт.

2

154467A1

O-RING,10.8mm ID x 2.4mm Width

1шт.

3

159497A1

TEE

Incl. 4

1шт.

4

154467A1

O-RING,10.8mm ID x 2.4mm Width

1шт.

5

151650A1

HYD CONNECTOR,1/2" NPT O-Ring x 1/2" NPT

Incl. 6

1шт.

6

154487A1

O-RING

1шт.

7

162826A1

ADAPTER

1шт.

8

157581A1

ELBOW,90 Degree, 1" O-Ring x 1"

Incl. 9

1шт.

9

154503A1

O-RING

1шт.

10

152924A1

PLUG

Incl. 11

2шт.

11

154503A1

O-RING

1шт.

12

KHJ1951

CLAMP

3шт.

13

627-8012

BOLT,Hex, M8 x 1.25 x 12mm, Cl 10.9, Full Thd

6шт.

14

153081A1

WASHER

6шт.

Выбрано товаров: 14